3

Casa | 9 camere | Garaj | Piscina | Teren 3.000 mp | Comision 0%

319.000 €

Giarmata, Județul Timiș

Nr. cam.:
9
Sup. utilă:
305 mp
Sup. teren:
3.000 mp
Tip prop.:
Individuală
  • • Comision 0%
  • • Exclusivitate
  • • Locație exactă

Descriere casă

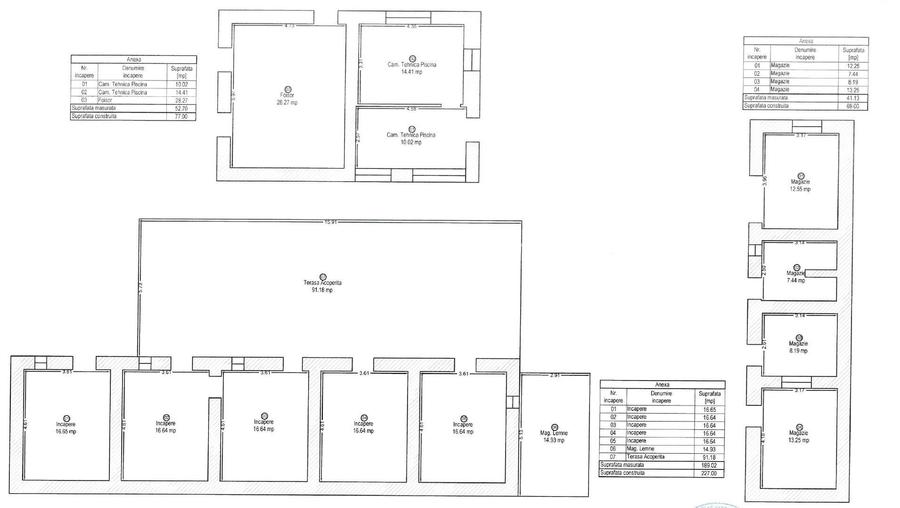
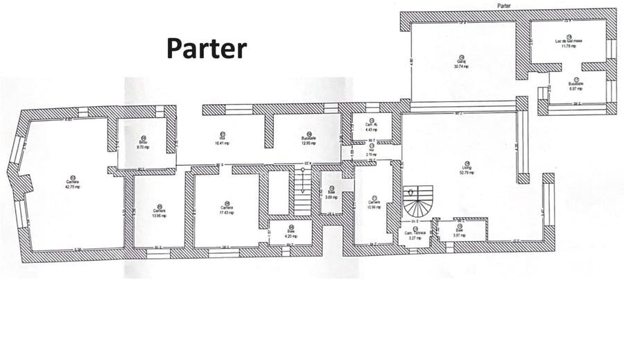
De vanzare, direct de la proprietar, comison 0% ! Casa formata din 1 casa pe parter cu posibilitate de mansardare + 1 casa P+E construita in anul 2000, situata in Giarmata. Casa dispune de 9 camere, 2 bucatari, 6 bai, 13 anexe, unele cu posibilitate de mansardare, 1 garaj, 2 pivnite, 1 piscina, 2 subsoluri, etc. este predabila atat pentru locuit cat si pentru alte activitati, Pensiune, camin batrani, etc. Detaii relevante: Suprafata Teren: 3000 mp Suprafata Utila : 304 mp Suprafata Utila totala: 360 mp Suprafata construita desfasurata: 538 Suprafata utila Anexe: 265 Suprafata construita Anexe: 374 Utilitati: gaz, apa (exista si hidrofor, fantana), curent, fosa, canalizarea este realizata si legata dar nefunctionabila momentan. 2 Centrale pe gaz, 1 pentru casa parter si una pentru casa P+ E Piscina 15 m / 5 Comision 0%
Citește mai mult Citește mai puțin
Parțial mobilat Grădină Piscină Curte Aer condiționat Calorifere Centrală proprie Beci 10 Parcări 1 Garaj Bine întreținut (Bună) Zonă rurală

Detalii casă

ID anunț: X84C1103C Copiat! 234810962 Copiat!
Actualizat în: 21 Mai 2026
Tip tranzacție: De vânzare prin agent
Suprafață construită: 538 mp
Suprafață desfășurată: 360 mp
Nr. bucătării: 2
Nr. băi: 6
Nr. terase: 2
Front stradal: 15.0 m
Învelitoare acoperiș: Țiglă
An construcție: 2000 (Finalizată)
Structură rezistență: Beton
Regim înălțime: S+P+1E
Modalitate de plată: Cash sau Credit

Utilități

Destinație
Birouri Rezidențial
Pereți
Faianță Vopsea lavabilă
Podele
Gresie Parchet
Ușă intrare
Lemn PVC
Uși interior
Lemn
Izolații termice
Exterior
Ferestre cu geam termopan
PVC
Contorizare
Apometre Contor căldură Contor gaz
Electrocasnice
Aragaz Frigider Hotă Mașină de spălat Mașină spălat vase TV
Diverse
Scară interioară Șemineu Senzor de fum Sistem de alarmă
Alte spații utile
Dressing WC Serviciu
Facilități imobil
Acoperiș Piscină exterioară Spații agrement
Utilități
Curent Apă Canalizare CATV Gaze Telefon
Internet
Cablu Wireless
Servicii imobil
Supraveghere video
Amenajare străzi
Iluminat stradal Mijloace de transport în comun Asfaltate
Comision
0%

Disponibilitate proprietate:

Imediat

Puncte de interes

Mijloace transport
bus-station
Giarmata
Stații autobuz aprox. 521 m
train-station
Gara
Stații tren aprox. 534 m
Recreere
sports-ground
Teren sportiv
Terenuri sport aprox. 471 m
park
Parcul Izvorului
Parcuri aprox. 737 m

Istoricul prețurilor

Acces la informații premium după autentificare
Login Gratuit

Detalii despre preț și costuri

Costuri cu achiziția

Fără credit
Credit ipotecar
Noua casă

i

Costuri adiționale mai puțin știute la achiziție: taxe notariale, comisioane etc.

Acces la informații premium după autentificare
Login Gratuit

Proprietăți similare

Casă individuală cu 6 camere în Giarmata
350.000 €
Județul Timiș, Giarmata
6 camere
100 mp
1.080 mp teren
Casă individuală cu 5 camere în Moșnița Nouă
325.000 €
Județul Timiș, Moșnița Nouă
5 camere
189 mp
708 mp teren
Casă individuală cu 4 camere în Dumbrăvița
339.000 €
Județul Timiș, Dumbrăvița
4 camere
123 mp
326 mp teren

Detalii de contact

ImoWest Imobiliare

Alexandru Negrescu Senior Consultant

5.00(5 review-uri)

ImoWest Imobiliare
PRO

Abonează-te la newsletter să fii primul care primește cele mai noi recomandări de proprietăți și sfaturi de la experți.

Feedback apel

CONTACT

Creează alertă

Salvează căutarea ca să primești pe email ultimele anunțuri publicate

Case individuale cu 4+ camere de vânzare în Giarmata, Județul Timiș