Casae individualea deosebita in Gilau, zona motelului, teren 800 mp!

210.000 €

Gilău, Județul Cluj

Nr. cam.:
3
Sup. utilă:
109 mp
Sup. teren:
800 mp
Tip prop.:
Casă individuală
  • • Comision 0%
  • • Locație aproximativă

Descriere casă

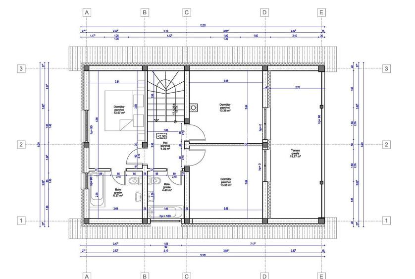
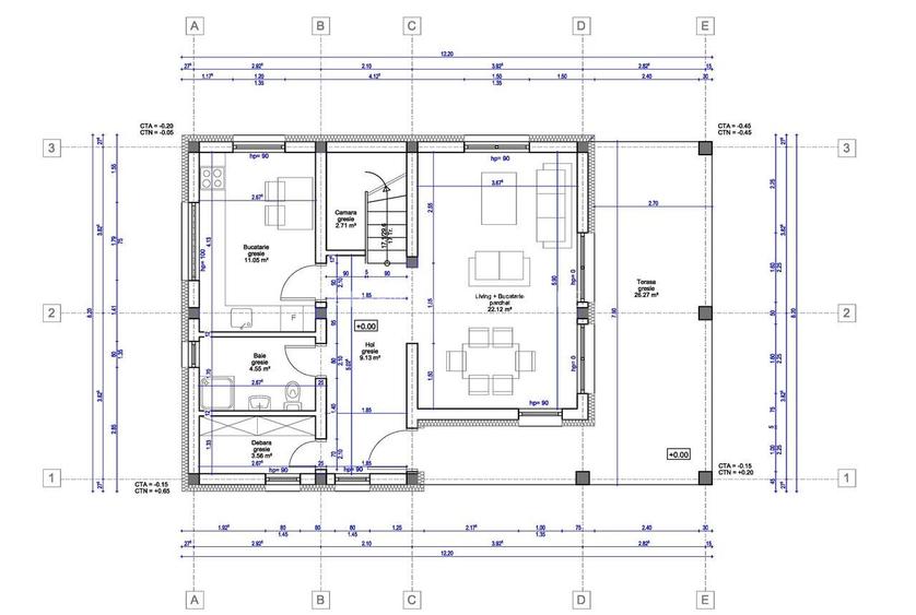
Case individuale moderne în Gilău – 109 mp + terase generoase Descoperiți un ansamblu rezidențial exclusivist format din 9 case individuale (primele două finalizate), Parter + Mansardă, într-o zonă liniștită, la doar 280 m de Lacul Gilău și aproape de Motel, cu acces facil spre Cluj și E60. Caracteristici principale: Suprafață utilă: 109 mp + 47 mp terase acoperite Teren generos: 800 mp/casă Compartimentare inteligentă: Parter: living, bucătărie, hol, baie, dressing și terasă de 27 mp Mansardă: 3 dormitoare, 2 băi, terasă de 20 mp și acces la pod Design rustic modern cu materiale premium, ferestre mari pentru lumină naturală Izolare termică excelentă: termosistem EPS 80 15 cm + tamplarie GEALAN S8000 Confort termic: centrală pe gaz în condensare + încălzire în pardoseală + horn pentru șemineu Sistem fotovoltaic individual de 6 kW Facilități: Gaz, curent, apă de la rețea Gard exterior, poartă auto și pietonală Delimitare proprietăți prin gard zincat Preț: 210.000 € TVA inclus Pentru firme plătitoare de TVA: 173.553 € net (taxare inversă) Pentru informații suplimentare și programarea unei vizionări, vă rugăm să ne contactați. ID Extern P154197
Citește mai mult Citește mai puțin
Centrală proprie Încălzire prin pardoseală Bine întreținut (Bună) Zonă de deal / munte Zonă rurală

Detalii casă

ID anunț: XFUS110H7 Copiat! 275407480 Copiat!
Actualizat în: 10 Aprilie 2026
Suprafață construită: 175 mp
Nr. bucătării: 1
Nr. băi: 3
Nr. terase: 2
Suprafață terase: 47 mp
Structură rezistență: Cărămidă

Utilități

Izolații termice
Exterior
Utilități
Curent Apă Canalizare Gaze
Comision
0%

Certificat energetic:

Clasa energetică: A

Puncte de interes

Școală
school
Scoala Gilau
Școli aprox. 1292 m
Recreere
supermarket
Profi
Supermarket aprox. 1142 m

Detalii despre preț și costuri

Costuri cu achiziția

Fără credit
Credit ipotecar
Noua casă

i

Costuri adiționale mai puțin știute la achiziție: taxe notariale, comisioane etc.

Insight premium disponibil după login

Proprietăți similare

Casă individuală cu 4 camere în Gilău
220.000 €
Județul Cluj, Gilău
4 camere
120 mp
500 mp teren
Casă individuală cu 5 camere în Gilău
207.000 €
Județul Cluj, Gilău
5 camere
160 mp
500 mp teren
Casă individuală cu 4 camere în Gilău
210.000 €
Județul Cluj, Gilău
4 camere
109 mp
800 mp teren

Detalii de contact

GREEN CASA IMOBILIARE

Andrei Cenan Junior Broker

GREEN CASA IMOBILIARE
PRO

Abonează-te la newsletter să fii primul care primește cele mai noi recomandări de proprietăți și sfaturi de la experți.

CONTACT

Creează alertă

Salvează căutarea ca să primești pe email ultimele anunțuri publicate

Case individuale cu 3 camere de vânzare în Gilău, Județul Cluj