Duplex de vanzare, 100 mp, 250 teren, semifinisat, P+E, Gilau

149.000 €

Gilău, Județul Cluj

Nr. cam.:
4
Sup. utilă:
110 mp
Sup. teren:
250 mp
Tip prop.:
Casă individuală
  • • Locație aproximativă

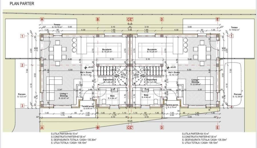
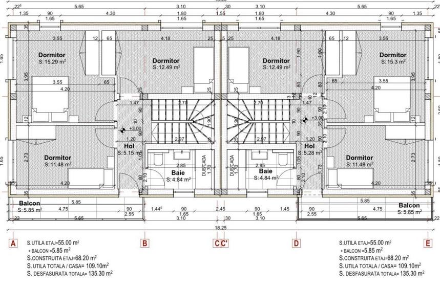
Descriere casă

Blitz vinde duplex cu 4 camere, pozitionat in Gilau, pe o strada privata. Duplexul este constructie de caramida, cu acoperis din tigla si are un regim de inaltime P+E. Suprafata utila este de 100 mp, iar suprafata aferenta de teren este de 250 mp si un front stradal de 14 ml. Compartimentarea se prezinta astfel: -parter: hol acces, bucatarie + living, hol, debara si o baie. -Etaj: trei dormitoare, hol, o baie si un balcon. Se vinde la stadiul de semifinisat, cu sapa autonivelanta si instalatii trase la pozitie, peretii gletuiti, incalzire in pardoseala la parter, calorifere la etaj, geamuri termopan cu tamplarie PVC. si centrala termica. Curtea se preda imprejmuita si delimitata cu gard din tabla si gard din scandura fata de vecini. Va fi amenajat un loc de parcare. Podul se poate utiliza ca si spatiu pentru depozitare. Termen de finalizare aprilie 2026, iar pretul este final si contine TVA. Cod ofertă / ID BLITZ: P3000
Citește mai mult Citește mai puțin
Nemobilat 1 Parcare Bine întreținut (Bună) Zonă de deal / munte Zonă rurală

Detalii casă

ID anunț: XFTI1110I Copiat! 261088648 Copiat!
Actualizat în: 16 Aprilie 2026
Nr. bucătării: 1
Nr. băi: 2
Nr. balcoane / Terase / Logii: 1
Suprafață terase: 30 mp
An construcție: 2025 (La gri)
Structură rezistență: Beton
Regim înălțime: P+1E

Utilități

Comision
2%

Certificat energetic:

Clasa energetică: B

Puncte de interes

Școală
school
Scoala Gilau
Școli aprox. 886 m
Recreere
supermarket
Profi
Supermarket aprox. 933 m

Detalii despre preț și costuri

Costuri cu achiziția

Fără credit
Credit ipotecar
Noua casă

i

Costuri adiționale mai puțin știute la achiziție: taxe notariale, comisioane etc.

Insight premium disponibil după login

Proprietăți recomandate

Detalii de contact

BLITZ

BLITZ ROMANIA

4.70(108 review-uri)

BLITZ
PRO

Abonează-te la newsletter să fii primul care primește cele mai noi recomandări de proprietăți și sfaturi de la experți.

CONTACT

Creează alertă

Salvează căutarea ca să primești pe email ultimele anunțuri publicate

Case individuale cu 4+ camere de vânzare în Gilău, Județul Cluj