1

Casa 4 camere de vanzare in Gilau

245.000 €

Gilău, Județul Cluj

Nr. cam.:
4
Sup. utilă:
100 mp
Sup. teren:
830 mp
Tip prop.:
Individuală
  • • Locație aproximativă

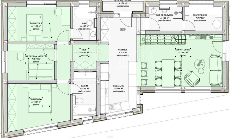
Descriere casă

Casa individuala cu teren de 830 mp, eficenta energetic! Va oferim spre vanzare o casa casa eficienta energetic, situata in Gilau, cu o suprafata utila de aproximativ 100 mp, la care se adauga o terasa si un spatiu neamenajat in pod. Proprietatea este construita pe un teren generos de 830 mp si este organizata pe un singur nivel, avand regimul de inaltime P+M. Aceasta locuinta moderna si bine gandita ofera confort, eficienta si o compartimentare practica, ideala pentru o familie. Compartimentarea interioara include 3 dormitoare, dintre care 2 dispun de bai proprii, iar o baie de serviciu este dotata cu spatiu tehnic. Zona de zi este formata dintr-un living spatios si o bucatarie deschisa, care ofera acces direct pe terasa si in curte, creand astfel un spatiu perfect pentru relaxare si socializare. La mansarda, casa dispune de un spatiu suplimentar de 30 mp, neamenajat, ce poate fi adaptat in functie de preferintele viitorilor proprietari. Casa este construita cu focus pe eficienta energetica si sustenabilitate, fiind dotata cu un sistem fotovoltaic de 11 kW cu invertor hibrid Huawei de 10 kW, asigurand economii la consumul de energie. Sistemul de ventilatie cu recuperare de aer cald contribuie la un climat interior confortabil si la reducerea consumului de energie. Structura casei este din caramida de 30 cm, iar izolatia exterioara consta in tencuiala interioara si exterioara, completata de un strat de polistiren de 15 cm. Pentru un plus de eficienta termica, mansarda si plafonul au fost izolate cu lana de lemn de 25 cm, respectiv 15 cm. Casa se vinde complet mobilata si utilata, fara sarcini, fiind pregatita pentru o tranzactie rapida. Achizitia poate fi realizata atat din surse proprii, cat si prin credit bancar, oferind flexibilitate noilor proprietari. Aceasta proprietate combina eficienta energetica cu un design modern si o amplasare intr-o zona linistita, oferind un stil de viata confortabil si sustenabil. Pentru mai multe detalii sau pentru a programa o vizionare la acest imobil, contactati-ne cu incredere! Echipa Napoca Imobiliare ID oferta: 148813
Citește mai mult Citește mai puțin
3 Parcări Zonă de deal / munte Zonă rurală

Detalii casă

ID anunț: X57Q112TS Copiat! 275378445 Copiat!
Actualizat în: 01 Aprilie 2026
Tip tranzacție: De vânzare prin agent
Suprafață desfășurată: 136 mp
Nr. bucătării: 1
Nr. băi: 3
Nr. terase: 1
Front stradal: 14.0 m
Învelitoare acoperiș: Tabla
An construcție: 2023
Regim înălțime: P+M
Modalitate de plată: Cash sau Credit

Utilități

Pereți
Vopsea lavabilă
Podele
Parchet
Ușă intrare
PVC
Uși interior
Lemn
Ferestre cu geam termopan
PVC
Bucătărie
Mobilată
Utilități
Curent Apă Canalizare CATV
Internet
Cablu Wireless
Amenajare străzi
Iluminat stradal Asfaltate
Comision
standard

Disponibilitate proprietate:

Imediata

Puncte de interes

Școală
school
Scoala Gilau
Școli aprox. 334 m
Recreere
supermarket
Profi
Supermarket aprox. 246 m

Detalii despre preț și costuri

Costuri cu achiziția

Fără credit
Credit ipotecar
Noua casă

i

Costuri adiționale mai puțin știute la achiziție: taxe notariale, comisioane etc.

Acces la informații premium după autentificare
Login Gratuit

Proprietăți similare

Casă individuală cu 4 camere în Gilău
259.000 €
Județul Cluj, Gilău
4 camere
93 mp
400 mp teren
Casă individuală cu 4 camere în Gilău
259.000 €
Județul Cluj, Gilău
4 camere
92 mp
393 mp teren
Casă individuală cu 5 camere în Gilău
262.000 €
Județul Cluj, Gilău
5 camere
200 mp
600 mp teren

Detalii de contact

Napoca Imobiliare

Napoca Imobiliare Manager Agentie

5.00(3 review-uri)

Napoca Imobiliare
PRO

Abonează-te la newsletter să fii primul care primește cele mai noi recomandări de proprietăți și sfaturi de la experți.

CONTACT

Creează alertă

Salvează căutarea ca să primești pe email ultimele anunțuri publicate

Case individuale cu 4+ camere de vânzare în Gilău, Județul Cluj