1

Casă eficientă energetic, 121 mp, teren 830 mp – Gilău

240.000 €

Gilău, Județul Cluj

Nr. cam.:
4
Sup. utilă:
121,7 mp
Sup. teren:
830 mp
Tip prop.:
Casă individuală
  • • Locație aproximativă

Descriere casă

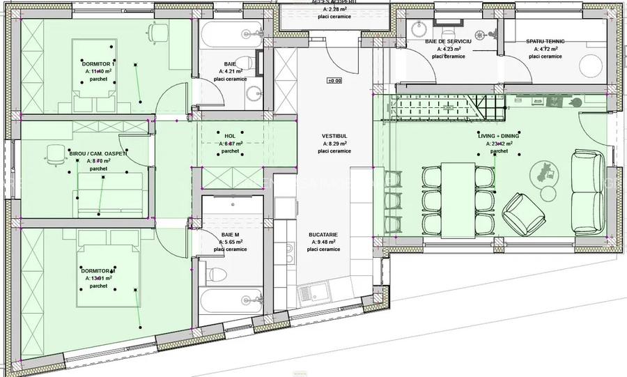
Descoperă căldura unui cămin modern, gândit pentru confortul familiei tale, situat la intrare în Gilău, într-o zonă liniștită, cu aer curat și acces rapid către Cluj-Napoca. Această proprietate nu este doar o casă, ci un spațiu în care diminețile încep cu lumină naturală, iar serile se petrec în liniște, pe terasă, alături de cei dragi. Construită în 2024 și realizată conform standardelor NZEB (consum aproape zero de energie), casa îmbină eficiența energetică cu un design modern și funcțional. Beneficiază de un sistem fotovoltaic de 11 kW cu invertor hibrid Huawei de 10 kW, pompă de căldură și sistem de ventilație cu recuperare de căldură, asigurând un consum redus și un confort constant. Izolația exterioară de 15 cm, completată de 25 cm de lână de lemn în pod, contribuie la un climat interior optim pe tot parcursul anului. Cu o suprafață utilă de 121,7 mp, locuința este compartimentată inteligent pentru viața de familie. Livingul generos și luminos devine centrul casei, ideal pentru momentele petrecute împreună, iar bucătăria separată oferă intimitate și funcționalitate. Proprietatea dispune de două dormitoare confortabile, fiecare cu baie proprie, un birou perfect pentru work from home sau cameră de oaspeți, trei băi moderne și un spațiu tehnic bine organizat. Terasa acoperită de 18,5 mp completează perfect zona de relaxare. Terenul generos de 830 mp oferă multiple posibilități de amenajare: grădină, loc de joacă pentru copii sau chiar o piscină, transformând curtea într-un spațiu ideal pentru petrecerea timpului în aer liber. Această casă este alegerea perfectă pentru o familie care își dorește liniște, siguranță și un stil de viață sustenabil, cu costuri reduse și confort ridicat, într-o locație aflată la doar 15–20 de minute de Cluj-Napoca. Pentru informații suplimentare și programarea unei vizionări, vă rugăm să ne contactați. P154968
Citește mai mult Citește mai puțin
Mobilat Ventiloconvectoare Alte metode electrice Centrală proprie Bine întreținut (Bună) Zonă de deal / munte Zonă rurală

Detalii casă

ID anunț: XFUS110HT Copiat! 275424625 Copiat!
Actualizat în: 10 Aprilie 2026
Nr. bucătării: 1
Nr. băi: 3
Nr. terase: 1
An construcție: 2024 (Finalizată)
Structură rezistență: Cărămidă

Utilități

Jaluzele
Verticale
Pereți
Vopsea lavabilă
Podele
Parchet
Ușă intrare
Metal
Uși interior
Lemn
Izolații termice
Exterior
Ferestre cu geam termopan
PVC
Bucătărie
Mobilată Utilată
Electrocasnice
Mașină de spălat Frigider TV Cuptor microunde Hotă
Utilități
Curent Apă Canalizare Gaze
Amenajare străzi
Asfaltate Iluminat stradal Mijloace de transport în comun
Comision
2.5%

Certificat energetic:

Clasa energetică: A

Puncte de interes

Școală
school
Scoala Gilau
Școli aprox. 148 m
Recreere
supermarket
Profi
Supermarket aprox. 175 m

Detalii despre preț și costuri

Costuri cu achiziția

Fără credit
Credit ipotecar
Noua casă

i

Costuri adiționale mai puțin știute la achiziție: taxe notariale, comisioane etc.

Insight premium disponibil după login

Proprietăți similare

Casă individuală cu 4 camere în Gilău
235.000 €
Județul Cluj, Gilău
4 camere
134 mp
487 mp teren
Casă individuală cu 4 camere în Gilău
235.999 €
Județul Cluj, Gilău
4 camere
169 mp
700 mp teren
Casă individuală cu 4 camere în Gilău
220.000 €
Județul Cluj, Gilău
4 camere
165 mp
650 mp teren

Detalii de contact

GREEN CASA IMOBILIARE

Danut Breha Manager

GREEN CASA IMOBILIARE
PRO

Abonează-te la newsletter să fii primul care primește cele mai noi recomandări de proprietăți și sfaturi de la experți.

CONTACT

Creează alertă

Salvează căutarea ca să primești pe email ultimele anunțuri publicate

Case individuale cu 4+ camere de vânzare în Gilău, Județul Cluj