GIROC IQ - Casa individuala - 4 Camere - 3 Bai - Locatie excelenta

285.000 €

Giroc, Județul Timiș

Nr. cam.:
4
Sup. utilă:
108,33 mp
Sup. teren:
200 mp
Tip prop.:
Individuală
  • • Locație aproximativă
  • • Vizionare prin apel video

Descriere casă

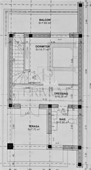
OPORTUNITATE - CASA INDIVIDUALA - ZONA HOTEL IQ - ASFALT - TOATE UTILITATILE - FINISAJE LA ALEGERE Agentia imobiliara PRIMUM are placerea de a va prezenta spre vanzare un proiect nou de case individuale, amplasat foarte bine, aproape de fiecare punct de interes al zonei! Casele vor fi dispuse pe 2 nivele (P+2E), avand 4 camere si 3 bai, compartimentate astfel: PARTER: hol de acces (antreu), living, bucatarie inchisa, baie, terasa de 7 mp si terasa de 10 mp; ETAJUL 1: hol de trecere, dormitor 1, dormitor 2, baie, balcon de 8 mp si balcon de 4 mp; ETAJUL 2: dormitor matrimonial cu dressing propriu, baie spatioasa, balcon de 8 mp si terasa de 8 mp; Casele dispun de 108 mp utili, avand o suprafata totala de 147 mp, desfasurati pe un teren de 200 mp. Acestea se vor preda "la cheie" cu posibilitatea de finisare dupa bunul plac. Casele sunt in constructie in momentul de fata. In functie de avans si de metoda de plata, pretul se poate negocia. Se accepta credit. Pentru mai multe informatii si pentru o vizionare, nu ezitati sa ne contactati!
Citește mai mult Citește mai puțin
Centrală proprie Încălzire prin pardoseală

Detalii casă

ID anunț: XCPS113IK Copiat! 268420262 Copiat!
Actualizat în: 20 Februarie 2026
Suprafață construită: 146 mp
Suprafață desfășurată: 146 mp
Nr. bucătării: 1
Nr. băi: 3
Nr. balcoane / Terase / Logii: 3
Nr. terase: 2
Suprafață terase: 18 mp
Nr. fronturi stradale: 1
Front stradal: 7 m
Învelitoare acoperiș: Tabla
An construcție: 2025 (Finalizată)
Structură rezistență: Altele
Etaj: Etaj 2 / 2
Regim înălțime: P+2E

Utilități

Destinație
Rezidențial
Pereți
Faianță Vopsea lavabilă
Podele
Parchet Gresie
Izolații termice
Exterior
Ferestre cu geam termopan
PVC
Utilități
Apă Curent Gaze Canalizare Telefon CATV
Amenajare străzi
Asfaltate Pietruite

Certificat energetic:

Clasa energetică: A

Vecinătăți:

Scoala/gradinita, Restaurant/pub, Parc, Hotel, Piata, Benzinarie, Fastfood, Supermarket, Banca, Zona comerciala, Autobuz

Puncte de interes

Mijloace transport
bus-station
Statie Apicultorilor E3
Stații autobuz aprox. 53 m
tram-station
Statie P. Pavlov Tv7
Stații tramvai aprox. 851 m
trolleybus-station
Statie Maresal C-tin Prezan T15, T19
Stații troleibuz aprox. 1155 m
train-station
Halta Giroc hc
Stații tren aprox. 1655 m
Școală
university
Institutul de Cercetari pentru Energii Regenerabile
Universități aprox. 404 m
university
CENTRU REGIONALDE PREGATIRE PROFESIONALA PENTRU MAGISTRATI, GIROC, tIMISOARA
Universități aprox. 528 m
kindergarten
Gradinita Program Prelungit Nr. 1
Gradinițe aprox. 741 m
school
Școala generală nr. 14
Școli aprox. 810 m
Recreere
park
Viitor Parc Braytim
Parcuri aprox. 728 m
supermarket
Lidl
Supermarket aprox. 809 m
sports-ground
Teren sportiv
Terenuri sport aprox. 1076 m
public-square
Piata Aron Cotrus
Piețe publice aprox. 1432 m

Detalii despre preț și costuri

Costuri cu achiziția

Fără credit
12.690 RON
Credit ipotecar
15.013 RON
Noua casă
1.593 RON+ taxe notariale

i

Costuri adiționale mai puțin știute la achiziție: taxe notariale, comisioane etc.

Proprietăți similare

Casă individuală cu 4 camere în Giroc
259.000 €
Județul Timiș, Giroc
4 camere
147 mp
278 mp teren
Casă individuală cu 8 camere în Giroc
270.000 €
Județul Timiș, Giroc
8 camere
255 mp
512 mp teren
Casă individuală cu 5 camere în Giroc
285.000 €
Județul Timiș, Giroc
5 camere
155 mp
459 mp teren

Detalii de contact

PRIMUM

Vlad Stefanescu Team Leader si Consultant Imobiliar

4.88(3 review-uri)

PRIMUM
PRO

Abonează-te la newsletter să fii primul care primește cele mai noi recomandări de proprietăți și sfaturi de la experți.

CONTACT

Creează alertă

Salvează căutarea ca să primești pe email ultimele anunțuri publicate

Case individuale cu 4+ camere de vânzare în Giroc, Județul Timiș