1

Casa individuala cu teren 520 mp in Giroc

235.000 €

Giroc, Județul Timiș

Nr. cam.:
5
Sup. utilă:
126 mp
Sup. teren:
520 mp
Tip prop.:
Individuală
  • • Locație aproximativă

Descriere casă

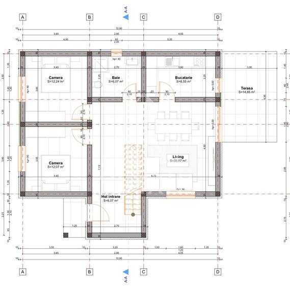
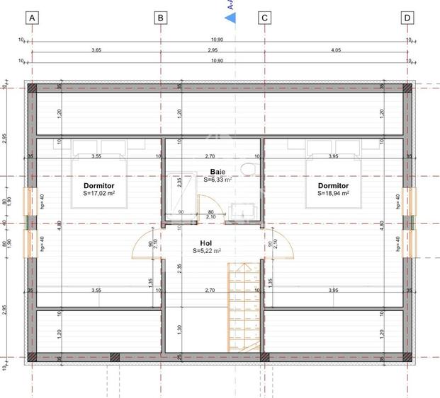
APOSTU ESTATE va ofera spre vanzare o casa individuala cu regim de inaltime P+M, situata in Giroc, la asfalt. Se intinde pe o suprafata de 126 mp utili + terasa de 15 mp, iar terenul aferent casei este de 520 mp. Dispune de 2 locuri de parcare in curtea interioara, posibilitate de garaj/carport. Confortul termic se realizeaza cu ajutorul centralei proprii pe gaz cu incalzire in pardoseala. Utilitati: apa, gaz, curent, canalizare, iluminat stradal, asfalt. Podul este izolat cu vata, iar acoperisul este din tigla. Casa se afla in renovare completa, in acest moment se pot alege finisajele dupa placul fiecaruia. In vecinatate gasim scoala din Giroc, profi non stop, magazin mixt, etc Compartimentare: parter - hol acces - living spatios cu iesire pe terasa - bucatarie inchisa - baie cu geam - 2 dormitoare etaj - hol - 2 dormitoare - baie cu geam - dressing Pretul este 235.000 euro negociabil Va asteptam cu drag la o vizionare! CP 2891987
Citește mai mult Citește mai puțin
Centrală proprie Încălzire prin pardoseală 2 Parcări

Detalii casă

ID anunț: XBAF114DV Copiat! 274589730 Copiat!
Actualizat în: 04 Martie 2026
Nr. bucătării: 1
Nr. băi: 2
Nr. terase: 1
Suprafață terase: 15 mp
Învelitoare acoperiș: Țiglă
An construcție: 2008 (La gri)
Structură rezistență: Cărămidă
Regim înălțime: P+M

Utilități

Ușă intrare
PVC
Uși interior
Lemn
Facilități imobil
Acoperiș
Utilități
Curent Apă Canalizare CATV Gaze Telefon
Internet
Cablu
Amenajare străzi
Iluminat stradal Mijloace de transport în comun Asfaltate
Comision
standard

Disponibilitate proprietate:

Imediat

Puncte de interes

Mijloace transport
bus-station
Giroceana
Stații autobuz aprox. 859 m
train-station
Halta Giroc hc
Stații tren aprox. 1445 m
bus-station
Giroc
Stații autobuz aprox. 1451 m
train-station
Halta Semenic Hm (en)
Stații tren aprox. 1909 m
Școală
school
Scoala Generala si Gradinita Giroc (en)
Școli aprox. 354 m
school
Scoala Gimnaziala Giroc
Școli aprox. 361 m
Recreere
supermarket
Jelly Market
Supermarket aprox. 448 m
sports-ground
Teren Giroc
Terenuri sport aprox. 680 m
restaurant
Complex Flonta
Restaurant aprox. 834 m
park
Parc
Parcuri aprox. 1150 m

Detalii despre preț și costuri

Costuri cu achiziția

Fără credit
10.974 RON
Credit ipotecar
13.085 RON
Noua casă
1.338 RON+ taxe notariale

i

Costuri adiționale mai puțin știute la achiziție: taxe notariale, comisioane etc.

Proprietăți similare

Casă individuală cu 5 camere în Giroc
245.000 €
Județul Timiș, Giroc
5 camere
122 mp
300 mp teren
Casă individuală cu 5 camere în Giroc
249.000 €
Județul Timiș, Giroc
5 camere
128 mp
400 mp teren
Casă individuală cu 4 camere în Giroc
218.990 €
Județul Timiș, Giroc
4 camere
93 mp
327 mp teren

Detalii de contact

APOSTU ESTATE

Claudiu Jura Senior Broker

APOSTU ESTATE
PRO

Abonează-te la newsletter să fii primul care primește cele mai noi recomandări de proprietăți și sfaturi de la experți.

CONTACT

Creează alertă

Salvează căutarea ca să primești pe email ultimele anunțuri publicate

Case individuale cu 4+ camere de vânzare în Giroc, Județul Timiș