3

Direct Dezvoltator | Stil Clasic | Utilități | Achitare Eșalonată

270.000 €

Hărman, Județul Brașov

Nr. cam.:
4
Sup. utilă:
135 mp
Sup. teren:
500 mp
Tip prop.:
Individuală
  • • Locație aproximativă

Descriere casă

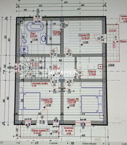
Casă individuală modernă – proiect premium în zona Rezervației Lempeș, Hǎrman. Vă propunem spre vânzare o casă individuală deosebită, situată într-o zonă exclusivistă, în apropierea Rezervației Naturale Lempeș. Proiectul are termen de predare în luna Martie 2026 și beneficiază de un design modern și finisaje premium. Prețul include TVA 21%. Există posibilitatea de achitare eșalonată, direct la dezvoltator. Detalii proprietate: - Teren: 500 mp - Suprafață construită: 171 mp - Suprafață utilă: 137 mp Compartimentare: - Parter: antreu, dressing, bucătărie, zonă de dining, living cu acces la terasa din spatele casei - Etaj: 3 dormitoare (unul cu dressing propriu și balcon), baie de serviciu, dressing suplimentar, acces la pod (spațiu de depozitare) Dotări și beneficii - Predare la cheie, cu finisaje incluse în preț (posibilitate de personalizare) - Încălzire în pardoseală atât la parter, cât și la etaj - Acoperiș din țiglă - Porți automatizate cu telecomandă - Balcon cu sticlă securizată - Utilități complete: gaz, curent, apă, canalizare, fibră optică, iluminat stradal Pentru mai multe detalii și programarea unei vizionări: – Alexandru Bolotovici
Citește mai mult Citește mai puțin
2 Parcări Zonă de deal / munte

Detalii casă

ID anunț: XF4U110AM Copiat! 271820157 Copiat!
Actualizat în: 04 Februarie 2026
Suprafață construită: 100 mp
Suprafață desfășurată: 170 mp
Nr. bucătării: 1
Nr. băi: 2
Nr. balcoane / Terase / Logii: 1
Suprafață terase: 20 mp
Învelitoare acoperiș: Țiglă
An construcție: 2024 (În construcție)
Structură rezistență: Cărămidă
Regim înălțime: P+1E

Utilități

Destinație
Rezidențial
Utilități
Curent Apă Canalizare CATV Gaze Telefon
Internet
Cablu
Amenajare străzi
Iluminat stradal Mijloace de transport în comun Asfaltate

Disponibilitate proprietate:

Imediat

Puncte de interes

Mijloace transport
bus-station
Harman
Stații autobuz aprox. 1023 m
bus-station
Gara Harman
Stații autobuz aprox. 1481 m
train-station
Gara Hărman
Stații tren aprox. 1501 m
bus-station
Harman
Stații autobuz aprox. 1501 m
Școală
school
Scoala
Școli aprox. 1189 m
Recreere
park
Parc
Parcuri aprox. 559 m
restaurant
Dinasty Club
Restaurant aprox. 887 m
supermarket
Kroner Supermarket
Supermarket aprox. 1171 m
park
Parc
Parcuri aprox. 1299 m

Detalii despre preț și costuri

Costuri cu achiziția

Fără credit
Credit ipotecar
Noua casă

i

Costuri adiționale mai puțin știute la achiziție: taxe notariale, comisioane etc.

Insight premium disponibil după login

Proprietăți similare

Casă individuală cu 5 camere în Hărman
250.000 €
Județul Brașov, Hărman
5 camere
200 mp
1.000 mp teren
Casă individuală cu 6 camere în Hărman
290.000 €
Județul Brașov, Hărman
6 camere
192 mp
400 mp teren
Casă individuală cu 4 camere în Hărman
259.000 €
Județul Brașov, Hărman
4 camere
162 mp
300 mp teren

Detalii de contact

MEGAPOLIS Brasov

Bolotovici Alexandru Manager

MEGAPOLIS Brasov
PRO

Abonează-te la newsletter să fii primul care primește cele mai noi recomandări de proprietăți și sfaturi de la experți.

CONTACT

Creează alertă

Salvează căutarea ca să primești pe email ultimele anunțuri publicate

Case individuale cu 4+ camere de vânzare în Hărman, Județul Brașov