Vista Real Estate are placerea sa va prezinte o casa moderna construita cu simt de raspundere, situata intr-un ansamblu de case noi.
Eficienta acestei case se observa din materialele premium, cum ar fii caramida Porotherm, izolatie cu vata bazaltica si tripane de ultima generatie, fundatie de 70cm din beton armat.
Fatada : Pereti exteriori din caramida cu tencuiala decorativa alb polar si negru, soclu cu tencuiala decorativa culoare maro si placate cu gresie portelanata culoare negru.
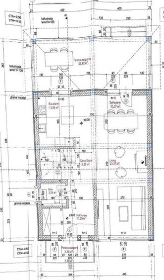
Compartimentare :
Parterul casei dispune de:
Un living spatios de 24 mp, impartit cu zona de dining.
Bucatarie spatioasa cu posibilitate de inchidere cu suprafata de 13.03 mp
De asemenea, la parter, avem si alte spatii utile, precum hol de intrare spatios, casa scarii, o baie cu dus si spatiu depozitare sub scari.
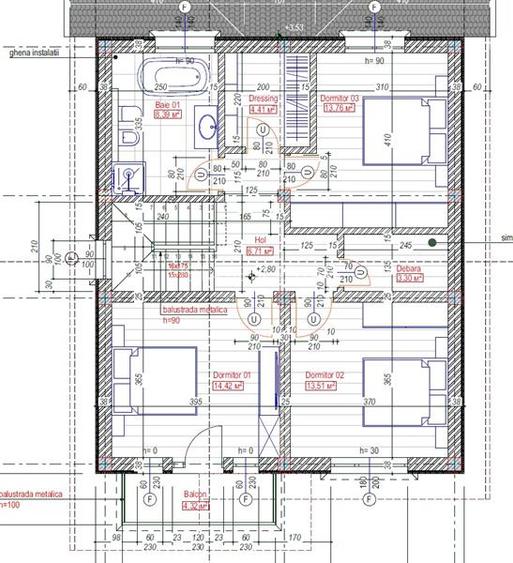
Etajul casei este format din :
Hol cu dressing de 5 mp si o debara de depozitare de 3.30mp
Dormitorul 1 - 14,42 mp cu acces pe balcon 4,32mp.
Dormitorul 2 - 13,51 mp
Dormitorul 3 - 13,76 mp
Baie principala 8,39 mp care deserveste etajului, ( cada si dus )
Detalii tehnice :
- Incalzire in pardoseala cu termostate wirelless in fiecare camera, controlabila din telefon
- Centrala termica prin condesare
- Canalizare, apa curentă, curent 220kw, gaz.
Curtea va fii amenajata cu spatii verzi, pavaj pentru parcarea interioara, gard din stalpi de beton cu fundație de 1m si aluminiu cu un design aparte si porti automatizate. Vedere spre Dealul Lempes unde se pot urmari cele mai spectaculoase apusuri de soare. Pozitionare S-E, S-V .
Pozele afisate sunt de la o alta casa finisata complet.
Predarea se face in maxim 3 luni de la semnarea unui ante-contract si va ofera timp sa va alegeti finisajele interioare cu care sa personalizati interiorul casei dupa preferintele dvs. ( parchet, gresie, faianta, sanitare bai )
Plata se face in transe sau prin credit ipotecar cu avans de 15%. Se vinde de pe persoana fizica, asadar NU exista TVA!
Va invit la o vizionare sa descoperiti mai multe atuuri ale viitorului vostru camin.
Vista Real Estate, formata dintr-o echipa de profesionisti in imobiliare, sunt gata sa te reprezinte indiferent de nevoia ta imobiliara: servicii de intermediere si consultanta, promovare, evaluarea bunurilor imobiliare, asistenta juridica, investitii imobiliare și administrarea proprietatilor.
Noi credem ca tranzactia imobiliara este incheiata atunci cand persoanele care ne trec pragul recomanda, oricand, fara ezitare, Vista Real Estate.
Conform certificatului de performanta energetica, apartamentul prezinta urmatorii indicatori de performanta: - clasa energetica A, - consum anual specific de energie 181.26 kwh mp.an, - indicele de emisie echivalent CO_2 =33.19 kgCO2 mp.an, - consum anual specific de energie din surse regenerabile 0 kwh mp.an.
Citește mai mult
Citește mai puțin
Nemobilat
Încălzire prin pardoseală
2 Parcări
Zonă de deal / munte
Sediul central - Timișoara
Bulevardul Victor Babeș nr. 2, 300230, Timișoara, România
Tel: +40.374.40.44.98 / Fax: +40.256.401.179
Email: suport@imobiliare.ro
Luni - Vineri 08:00 - 20:00
Punct de lucru - București: Iride Business Park, Bld. Dimitrie
Pompeiu 9-9A, Clădirea B2B,
020335, Sector 2, București, România
CONTACT
Sediul central - Timișoara
Bulevardul Victor Babeș nr. 2, 300230, Timișoara, România
Tel: +40.374.40.44.98 / Fax: +40.256.401.179
Email: suport@imobiliare.ro
Luni - Vineri 08:00 - 20:00
Punct de lucru - București: Iride Business Park, Bld. Dimitrie
Pompeiu 9-9A, Clădirea B2B,
020335, Sector 2, București, România
Sună acum și cere detalii sau programează o vizionare.
Cere detalii prin email
*
*
*
*
Terenuri sport
Parcuri
Farmacie
Restaurant
Teren sportiv
aprox.
1363 m
Pădure
aprox.
1675 m
Parc
aprox.
1838 m
Loc de joaca
aprox.
1990 m
Farmacie
aprox.
1868 m
Farmacie
aprox.
1922 m
Hotel Bielmann
aprox.
1388 m
Înainte să pleci...
Ești sigur că ai văzut și aceste proprietăți?
270.000 €
Județul Brașov, Hărman
4 camere
135 mp
500 mp teren
272.000 €
Județul Brașov, Hărman
5 camere
148 mp
418 mp teren
290.000 €
Județul Brașov, Hărman
5 camere
160 mp
690 mp teren
319.000 €
Județul Brașov, Hărman
4 camere
137 mp
630 mp teren
270.000 €
Județul Brașov, Hărman
4 camere
135 mp
500 mp teren
245.000 €
Județul Brașov, Hărman
5 camere
171 mp
541 mp teren
Creează alertă
Salvează căutarea ca să primești pe email ultimele anunțuri publicate
Case individuale cu 4+ camere de vânzare în Hărman, Județul Brașov
Cere detalii prin email
*
*
*
*
Detaliile tale de contact vor fi partajate cu Vista Real Estate
Preț total1.410.018 RON (276.761 €)
Costuri cu achiziția39.544 RON
Preț de achiziție1.370.474 RON
Costuri cu achiziția39.544 RON
Comision agenție 2%27.409 RON
Onorariu notarial10.079 RON
Taxă înscriere OCPI2.056 RON
Preț de achiziție1.370.474 RON
Preț locuință1.370.474 RON
TVA 0%Inclus în prețul cerut
Cost total250.521 RON (49.172 €)
Avans (15%)205.571 RON
Cost achitat în prima lună3.152 RON
Costuri cu achiziția41.798 RON
Cost achitat în prima lună3.152 RON
Comision analiză dosar
400 RON - 900 RON
Taxă evaluare imobil(până la)
900 RON
Rata lunară (variabilă)6.105 RON
Asigurare anuală imobil1.370 RON
Arhivă electronică102 RON
Poliță PAD130 RON
Asigurare de viață/lună Costul este variabil. În funcție de banca aleasă, procentul variază între 0.0259% și 0.035% din soldul creditului.
Costuri cu achiziția41.798 RON
Comision agenție 2%27.409 RON
Onorariu notarial10.079 RON
Taxă întabulare OCPI2.056 RON
Autentificare contract credit2.254 RON
Preț de achiziție1.370.474 RON
Preț locuință1.370.474 RON
TVA 0%Inclus în prețul cerut
Preț de achiziție1.370.474 RON
Preț locuință1.370.474 RON
TVA 0%
Inclus în prețul cerut
Avans minim764.205 RON
Credit pe 30 de ani606.269 RON
Cost achitat în prima lună
Taxa evaluare imobil(până la)
900 RON
Rata lunară (variabilă)4.260 RON
Depozit colateral12.780 RON
Comision de garantare FNGCIMM114 RON
Asigurare anuală imobil1.370 RON
Poliță PAD130 RON
Tarif arhivă electronică102 RON
Costuri adiționale1.510 RON + taxe notariale
Asigurare viață și complexă (opțională)Costul este variabil. În funcție de banca aleasă, procentul variază între 0.0259% și 0.035% din soldul creditului
Onorariu notarialconform tarif notarial
Taxă întabulare OCPI1.510 RON
i
Toate valorile de mai sus sunt estimative și nu reprezintă în mod obligatoriu costurile exacte pe care le veți primi de la companiile/instituțiile prin care veți încheia tranzacția.