Casa locatie minunata,,,

120.000 €

Hemeiuș, Județul Bacău

Nr. cam.:
3
Sup. utilă:
110 mp
Sup. teren:
350 mp
Tip prop.:
Individuală
  • • Comision 0%
  • • Locație exactă

Descriere casă

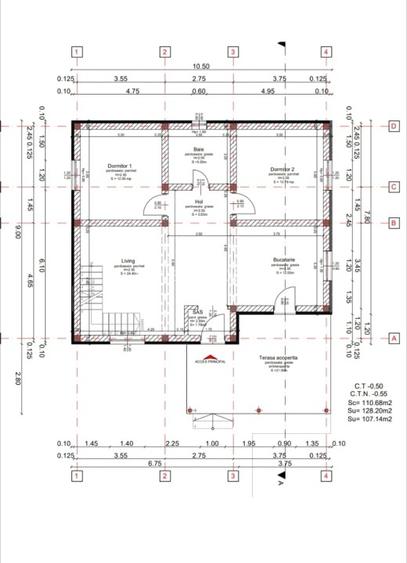
Vă propunem spre vanzare o casă(un complex de 4case aflate pe un teren inprejmuit cu acces privat) situoată in Hemeiuși in vecinatatea Primăria ,market ,restaurant și scoală Terenul pe care este amplasata find de 350mp Suprafata contructie fiind de 110mp Casă comparmimentata astfel 2dormitoare ,baie ,living,bucatarie open si o terasă generosă Casa dispune de scară interioară putanduse amenaja etajul utilitatie sunt deja trase acesta find deja un avantaj Constructie realizata din carămidă bks placa de beton peste parter izolata fonic și termic,termopan gealan gri antracit,glafuri interioare si exterioare din granit Izolatie din polistren și decorativa weber Tabla bilka Incalzire in pardoseala TECE Podul inalt de 2,80 faciliteaza amenajara lui avind un balcon si 3fereste(70mp) Casa se vinde din stadiul de roșu putănd noul propietar să poată personaliza ,,,numar de prize si amplasarea lor Model parcket ,model usi interioare ,culoare gresie si faiantă Casa dispune de toate utilitatile gaz curent canalizare și apa retea CRAB Actele se fac doar la notar pe baza unei promisiuni notariale Termen de finalizare mai 2026 Nu se percepe nici un comision sau tva
Citește mai mult Citește mai puțin
Nemobilat Centrală proprie 1 Parcare / Garaj / Parcare subterană Bine întreținut (Bună)

Detalii casă

ID anunț: XV1001569 Copiat! 275468505 Copiat!
Actualizat în: 23 Aprilie 2026
Nr. băi: 1
Nr. balcoane / Terase / Logii: 2
An construcție: 2026
Regim înălțime: P+1E

Utilități

Utilități
Canalizare
Sistem încălzire
Centrală proprie pe Gaz
Comision
0%

Puncte de interes

Mijloace transport
bus-station
Hemeius
Stații autobuz aprox. 1391 m
Școală
school
casa
Școli aprox. 1893 m

Detalii despre preț și costuri

Costuri cu achiziția

Fără credit
Credit ipotecar
Noua casă

i

Costuri adiționale mai puțin știute la achiziție: taxe notariale, comisioane etc.

Insight premium disponibil după login

Proprietăți similare

Casă individuală cu 3 camere în Hemeiuș
131.900 €
Județul Bacău, Hemeiuș
3 camere
76 mp
350 mp teren
Casă individuală cu 3 camere în Hemeiuș
115.000 €
Județul Bacău, Hemeiuș
3 camere
94 mp
400 mp teren
Casă individuală cu 3 camere în Hemeiuș
114.800 €
Județul Bacău, Hemeiuș
3 camere
81 mp
340 mp teren

Detalii de contact

Adrian Popovici

Adrian Popovici

Proprietar

Abonează-te la newsletter să fii primul care primește cele mai noi recomandări de proprietăți și sfaturi de la experți.

CONTACT

Creează alertă

Salvează căutarea ca să primești pe email ultimele anunțuri publicate

Case individuale cu 3 camere de vânzare în Hemeiuș, Județul Bacău