8

Proiect Casa + garaj in constructie – teren 553 mp, Holboca

77.900 €

Dancu, Iași

Nr. cam.:
5
Sup. utilă:
160 mp
Sup. teren:
550 mp
Tip prop.:
Individuală
  • • Locație aproximativă

Descriere casă

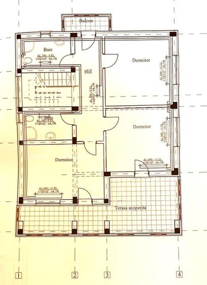
Blitz va prezinta o casa (faza proiect) + garaj in constructie – teren 553 mp, Holboca Se vinde proiect de casa si garaj, aflat in stadiu de constructie, situat pe un teren de 553 mp in centrul comunei Holboca Detalii constructie si utilitati: Proiect de casa-160 mp utili si garaj aprobat, cu toate avizele necesare Racord la canalizare si apa Energie electrica racordata in regim de santier Acoperis nou cu tabla Bilka Gard de piatra, aproape finalizat Garaj tencuit interior, conceput practic ca o a doua locuinta (dispune de baie mica si bucatarie) Gradina in curs de amenajare Avantaje: Locatie centrala, acces facil la toate punctele de interes din Holboca Constructie deja autorizata, cu avize obtinute – nu mai este nevoie de alte aprobari Investitie ideala pentru locuinta permanenta sau casa de vacanta Cod oferta / ID BLITZ: P151561
Citește mai mult Citește mai puțin
Nemobilat Centrală proprie 1 Garaj

Detalii casă

ID anunț: XFTI113F4 Copiat! 269223714 Copiat!
Actualizat în: 20 Februarie 2026
Nr. bucătării: 1
Nr. băi: 2
Nr. terase: 2
Front stradal: 15 m
An construcție: 2025 (Proiect)
Structură rezistență: Beton
Regim înălțime: P+1E

Utilități

Contorizare
Apometre Contor gaz
Utilități
Curent Apă Canalizare Gaze CATV
Amenajare străzi
Asfaltate Iluminat stradal
Izolații termice
Exterior
Comision
%

Disponibilitate proprietate:

imediat

Puncte de interes

Mijloace transport
bus-station
Statia "Boromir", linia 29
Stații autobuz aprox. 811 m
tram-station
Rond Dancu
Stații tramvai aprox. 872 m
bus-station
Statia "Caretta", linia 29
Stații autobuz aprox. 878 m
tram-station
Statia "Rond Dancu", linia 3
Stații tramvai aprox. 884 m
Școală
school
Scoala Stefan cel Mare si Sfant
Școli aprox. 1123 m
kindergarten
Gradinita cu program prelungit nr.29
Gradinițe aprox. 1912 m
Recreere
supermarket
Alisan
Supermarket aprox. 956 m

Detalii despre preț și costuri

Costuri cu achiziția

Fără credit
5.069 RON
Credit ipotecar
6.439 RON
Noua casă
537 RON+ taxe notariale

i

Costuri adiționale mai puțin știute la achiziție: taxe notariale, comisioane etc.

Proprietăți recomandate

Detalii de contact

BLITZ

BLITZ ROMANIA

4.70(105 review-uri)

BLITZ
PRO

Abonează-te la newsletter să fii primul care primește cele mai noi recomandări de proprietăți și sfaturi de la experți.

CONTACT

Creează alertă

Salvează căutarea ca să primești pe email ultimele anunțuri publicate

Case individuale cu 4+ camere de vânzare în zona Dancu, Iași