7

Casa de vanzare P+1, 120 mp, individuala, zona Dorobanti

175.000 € + TVA

Dorobanți, Iași

Nr. cam.:
4
Sup. utilă:
120 mp
Sup. teren:
500 mp
Tip prop.:
Individuală
  • • Locație aproximativă
  • • Vizionare prin apel video

Descriere casă

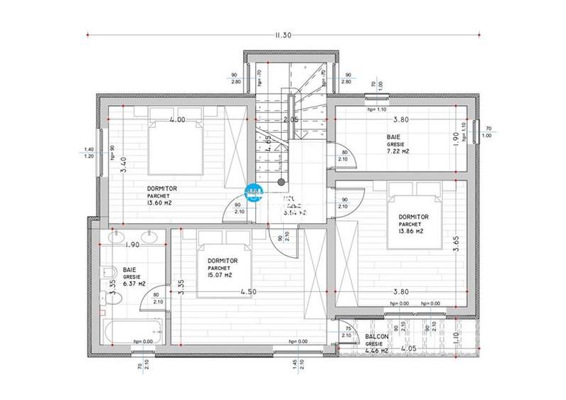
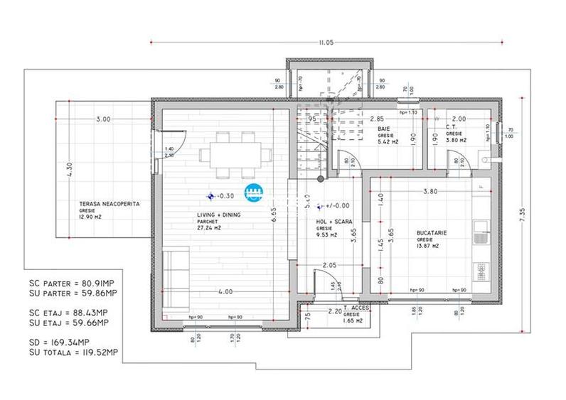
Casa smart tip individuala de vanzare, cu un regim de inaltime P + 1 in zona Dorobanti, avand 4 camere, cu o suprafata de 120 mp si teren 500 mp. Casa urmeaza sa fie construita, structura fiind din caramida, avand toate utilitatile precum gaz, energie electrica, panouri fotovoltaice, apa, canalizare Compartimentare: -Parter: Living, baie, bucatarie, terasa, hol, -Etaj: 3 dormitoare unul fiind cu baie matrimoniala, baie, hol si balcon. Preț: 175000 euro+ tva de 21%. Pentru mai multe detalii puteti contacta consilierul nostru imobiliar dl. Vlad Ababei la numarul de telefon:
0742.**** Vezi tot numărul
Cod oferta: 8801
Citește mai mult Citește mai puțin

Detalii casă

ID anunț: X3V411193 Copiat! 244834219 Copiat!
Actualizat în: 05 Februarie 2026
Suprafață construită: 170 mp
Suprafață desfășurată: 170 mp
Nr. băi: 3
Nr. balcoane / Terase / Logii: 2
Nr. terase: 1
Suprafață terase: 18 mp
An construcție: 2025 (În construcție)
Structură rezistență: Altele
Etaj: Etaj 1 / 1
Regim înălțime: P+1E+M

Utilități

Destinație
Rezidențial

Puncte de interes

Mijloace transport
bus-station
Cuza Voda
Stații autobuz aprox. 1879 m
Recreere
park
Baza Nautica Dorobant
Parcuri aprox. 1507 m

Detalii despre preț și costuri

Costuri cu achiziția

Fără credit
10.170 RON
Credit ipotecar
12.181 RON
Noua casă
1.219 RON+ taxe notariale

i

Costuri adiționale mai puțin știute la achiziție: taxe notariale, comisioane etc.

Proprietăți recomandate

Detalii de contact

Imperia Imobiliare

Vlad ABABEI CONSULTANT IMOBILIAR VANZARI PE ZONELE : Tatarasi, Copou, Bucium, Rivers Towers

Imperia Imobiliare
PRO

Abonează-te la newsletter să fii primul care primește cele mai noi recomandări de proprietăți și sfaturi de la experți.

CONTACT

Creează alertă

Salvează căutarea ca să primești pe email ultimele anunțuri publicate

Case individuale cu 4+ camere de vânzare în zona Dorobanți, Iași