2

CASA CU 3 CAMERE INDIVIDUALA , PLAN PARTER , LUNCA CETATUII

115.000 €

Lunca Cetățuii, Iași

Nr. cam.:
3
Sup. utilă:
75 mp
Sup. teren:
301 mp
Tip prop.:
Casă individuală
  • • Comision 0%
  • • Locație aproximativă

Descriere casă

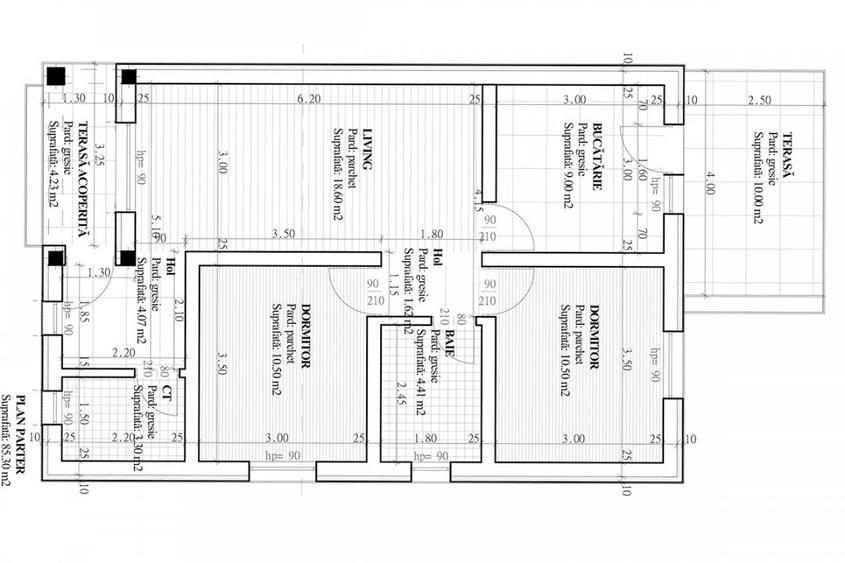
INVEST IMOBILIARE vă oferă spre vânzare o proprietate situată într-un complex rezidențial din zona Lunca Cetățuii. Imobilul are termen de predare inceputul anului 2026 și va beneficia de toate utilitățile necesare: apă, curent electric, gaz și canalizare. Suprafata utila a casei este de 75 mp si este construita pe un teren aferent de 301 mp . Casa, construită pe un singur nivel, este compartimentată astfel: hol, două dormitoare, baie, living și bucătărie open-space cu acces direct pe terasă. Podul oferă un spațiu generos pentru depozitare, iar izolația este realizată cu spumă poliuretanică de înaltă calitate. Proprietatea include parcare auto și alei betonate. PRETUL AFISAT ESTE PROMOTIONAL DOAR ACEASTA LUNA SI ESTE VALABIL DOAR PENTRU PLATA INTEGRALA CASH LA ANTECONTRACT !! Pentru mai multe informații sau pentru a programa o vizionare, vă rugăm să ne contactați: Andrei Huțanu -
Citește mai mult Citește mai puțin
Calorifere Centrală proprie 2 Parcări Bine întreținut (Bună)

Detalii casă

ID anunț: XB8811115 Copiat! 273191630 Copiat!
Actualizat în: 15 Martie 2026
Nr. bucătării: 1
Nr. băi: 1
Nr. terase: 1
An construcție: 2025 (În construcție)
Structură rezistență: data_properties.building_structure.BCA

Utilități

Pereți
Vopsea lavabilă Var Faianță
Podele
Parchet Gresie
Izolații termice
Exterior
Utilități
Curent Apă Canalizare Gaze
Comision
0%

Certificat energetic:

Clasa energetică: B

Puncte de interes

Mijloace transport
bus-station
Blocuri Ciurea
Stații autobuz aprox. 80 m
bus-station
Statia "Blocuri Ciurea", linia 14b,44,41b
Stații autobuz aprox. 86 m
bus-station
Statie Piata Lunca Cetatuii
Stații autobuz aprox. 174 m
bus-station
Statia ""Blocuri Ciurea", linia 41b,44
Stații autobuz aprox. 174 m
Școală
school
Sc Lunca Cetatuiei
Școli aprox. 42 m
Recreere
restaurant
Capitol
Restaurant aprox. 1961 m

Detalii despre preț și costuri

Costuri cu achiziția

Fără credit
6.815 RON
Credit ipotecar
8.416 RON
Noua casă
726 RON+ taxe notariale

i

Costuri adiționale mai puțin știute la achiziție: taxe notariale, comisioane etc.

Proprietăți recomandate

Detalii de contact

Invest Imobiliare

Andrei Hutanu Agent Imobiliar

Invest Imobiliare
PRO

Abonează-te la newsletter să fii primul care primește cele mai noi recomandări de proprietăți și sfaturi de la experți.

CONTACT

Creează alertă

Salvează căutarea ca să primești pe email ultimele anunțuri publicate

Case individuale cu 3 camere de vânzare în zona Lunca Cetățuii, Iași