URGENT! Casa single 120mp + teren de 360 mp – Lunca Cetatuii

159.000 €

Lunca Cetățuii, Iași

Nr. cam.:
3
Sup. utilă:
120 mp
Sup. teren:
360 mp
Tip prop.:
Individuală
  • • Locație exactă

Descriere casă

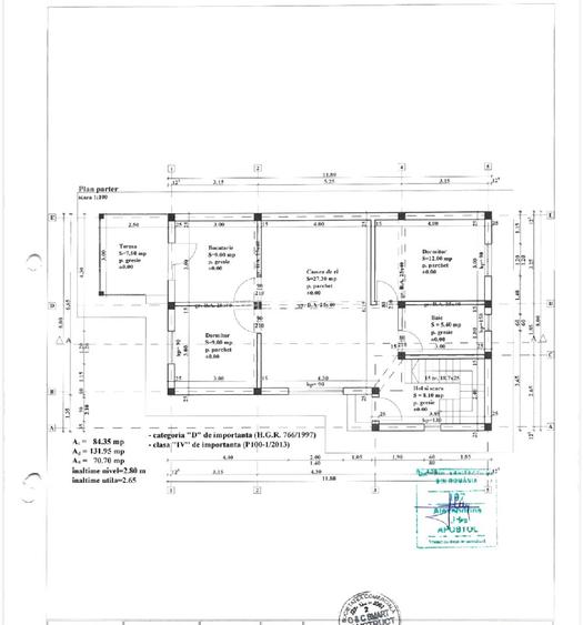
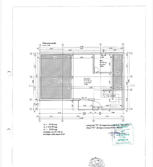
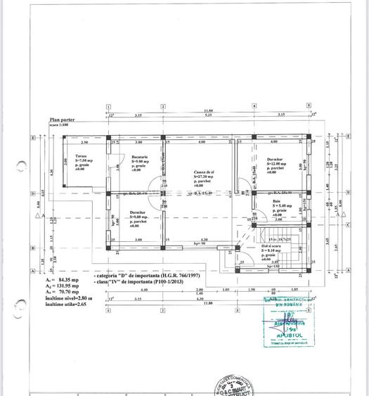
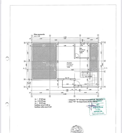
Agentia Viva Imobiliare va propune spre vanzare o casa cu 3 camere, 2 bai si terasa, cu un regim de inaltime P M, situata intr-un cartier de case din Lunca Cetatuii, pe Strada Editurii, la 750 m de strada principala. Imobilul dispune de o suprafata totala de 120 mp, iar terenul aferent constructiei are o suprafata totala de aproximativ 360 mp si este prevazut cu 1 loc de parcare. IMPORTANT: Casa este amplasata pe partea laterala a terenului, rezultand o curte generoasa. Casa se vinde mobilata si utilata complet! Compartimentare: – Parter: hol, baie, living, dormitor, zona de dinning si bucatarie cu iesire pe o terasa spatioasa acoperita – Etaj: hol, dormitor, baie si balcon Dotari si utilitati: Centrala termica pe gaz, tamplarie PVC cu geam termopan, termoizolatie cu polistiren, sistem de irigatie, gaz, apa, curent, etc. Pentru mai multe detalii contactați consilierul imobiliar Cozma Tudor la numărul de telefon . Vă invităm la vizionare!
Citește mai mult Citește mai puțin
Mobilat Curte Aer condiționat Calorifere Centrală proprie 1 Parcare 1 Parcare / Garaj / Parcare subterană Bine întreținut (Bună)

Detalii casă

ID anunț: X9PD010FQ Copiat! 271172812 Copiat!
Actualizat în: 03 Aprilie 2026
Nr. bucătării: 1
Nr. băi: 2
Nr. balcoane / Terase / Logii: 1
An construcție: 2016
Structură rezistență: Beton
Regim înălțime: P+1E

Utilități

Destinație
Rezidențial
Pereți
Vopsea lavabilă Var
Podele
Parchet Gresie
Ușă intrare
Metal
Uși interior
Lemn
Ferestre cu geam termopan
PVC
Contorizare
Apometre Contor gaz
Bucătărie
Mobilată Utilată
Utilități
Curent Curent trifazic Apă Canalizare Gaze CATV Telefon Telefon internațional Centrală telefonică
Internet
Cablu Fibră optică Wireless Dial-up
Amenajare străzi
Asfaltate Mijloace de transport în comun Iluminat stradal

Puncte de interes

Mijloace transport
bus-station
Statia Fabrica de caramida
Stații autobuz aprox. 8 m
bus-station
Statia "Fabrica de Caramida", linia 14b
Stații autobuz aprox. 90 m
bus-station
Ciurea
Stații autobuz aprox. 437 m
bus-station
Blocuri Ciurea
Stații autobuz aprox. 499 m
Școală
school
Sc Lunca Cetatuiei
Școli aprox. 446 m

Detalii despre preț și costuri

Costuri cu achiziția

Fără credit
Credit ipotecar
Noua casă

i

Costuri adiționale mai puțin știute la achiziție: taxe notariale, comisioane etc.

Insight premium disponibil după login

Proprietăți recomandate

Detalii de contact

Abonează-te la newsletter să fii primul care primește cele mai noi recomandări de proprietăți și sfaturi de la experți.

CONTACT

Creează alertă

Salvează căutarea ca să primești pe email ultimele anunțuri publicate

Case individuale cu 3 camere de vânzare în zona Lunca Cetățuii, Iași