🏡 Casă Premium Individuală – Uricani (Miroslava)
📍 Ideală pentru familie | Construcție solidă | Materiale de top
Se oferă spre vânzare casă individuală P+1+Pod, construită inițial pentru uz propriu, nu pentru vânzare – un detaliu care se vede și se simte în fiecare colț.
Proprietatea este amplasată pe un teren plan de 600 mp, într-o zonă excelentă pentru familii, cu școală, grădiniță și parc de joacă chiar lângă casă.
📐 Suprafețe
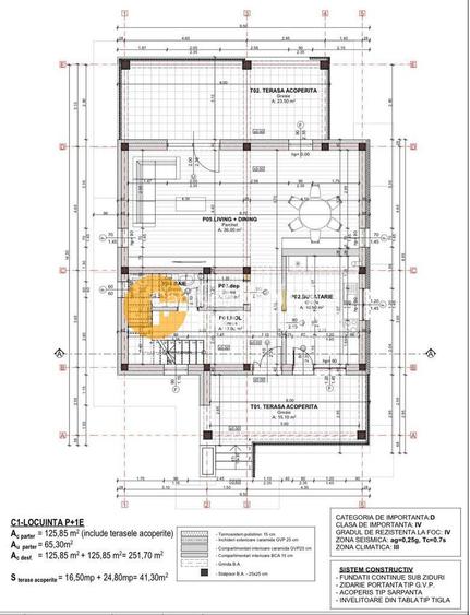
Suprafață construită: 250 mp
Suprafață utilă totală: 210 mp
128 mp interior
82 mp terase (2 la parter + 2 la etaj, toate acoperite)
🛋️ Compartimentare:
-Parter
Living foarte spațios, cu 2 ieșiri către terasa din spate și grădină
Bucătărie separată, cu ieșire pe terasa din față
Hol generos
Cameră tehnică / depozitare
Baie de serviciu cu spațiu pentru mașină de spălat
2 terase acoperite din beton: 17 mp (față) și 24 mp (spate)
-Etaj
Hol spațios
3 dormitoare, fiecare cu acces pe terasă
2 băi
Dormitor matrimonial cu:
baie proprie (duș walk-in)
dressing mare cu geam
-Terase:
24 mp (spate)
17 mp (față)
Balustrade din sticlă securizată laminată fumurie – 10 mm
Pod
Acces pe scară
Înălțime: 2,2 m
Placă de beton între etaj și pod, izolată fonic și termic cu vată bazaltică
Posibilitate amenajare 2 camere suplimentare
Urmează a fi izolat cu spumă poliuretanică
🔥 Dotări & finisaje premium
Încălzire în pardoseală Uponor, pe ambele niveluri
Calorifere port-prosop în băi
Centrală Viessmann Vitodens în condensare, cu Wi-Fi
Sistem smart Salus – control individual pe 8 zone, termostate în fiecare cameră, control de pe telefon
Instalație electrică Schneider
Tâmplărie Salamander tripan, interior–exterior în două culori, geamuri opace
Parchet SPC la etaj (compatibil încălzire în pardoseală)
Gresie și finisaje atent alese
Glafuri din marmură la interior și granit la exterior
Trepte și balustrade din lemn masiv de fag
🚿 Băi complet echipate
3 băi hidroizolate integral + bandă de etanșare
Cadă freestanding
Dușuri walk-in
WC-uri suspendate Roca cu rezervor încastrat
Duș intim
Benzi LED încastrate în tencuială
🧱 Exterior & structură
Fundație adâncă, izolată cu XPS + hidroizolație
Cărămidă portantă Brikston
Termosistem EPS 80 grafitat, ignifugat – 10 cm, montat pe chenare
Terase hidroizolate integral
Gard tip jaluzele orizontale, fundație și stâlpi din beton
Poartă automatizată cu telecomandă + aplicație mobilă
Alei și trotuare betonate și pavate (pavele combi – 3 dimensiuni)
Rigole pluviale pe toată proprietatea
Racorduri complete: apă, gaz, canalizare, electricitate, fibră optică
✅ Avantaje cheie
Teren drept, plan
Toate etapele construcției documentate (peste 1200 poze și filmări)
Casă solidă, eficientă energetic
Pregătită pentru mutare imediată
💰 Preț: 240.000 € (TVA inclus) - se accepta orice modalitate de plata
📞 Pentru detalii sau vizionare, această casă merită văzută pe viu – calitatea se simte de la primul pas.
Sediul central - Timișoara
Bulevardul Victor Babeș nr. 2, 300230, Timișoara, România
Tel: +40.374.40.44.98 / Fax: +40.256.401.179
Email: suport@imobiliare.ro
Luni - Vineri 08:00 - 20:00
Punct de lucru - București: Iride Business Park, Bld. Dimitrie
Pompeiu 9-9A, Clădirea B2B,
020335, Sector 2, București, România
CONTACT
Sediul central - Timișoara
Bulevardul Victor Babeș nr. 2, 300230, Timișoara, România
Tel: +40.374.40.44.98 / Fax: +40.256.401.179
Email: suport@imobiliare.ro
Luni - Vineri 08:00 - 20:00
Punct de lucru - București: Iride Business Park, Bld. Dimitrie
Pompeiu 9-9A, Clădirea B2B,
020335, Sector 2, București, România
Sună acum și cere detalii sau programează o vizionare.
Cere detalii prin email
*
*
*
*
Terenuri sport
stadion
aprox.
771 m
Înainte să pleci...
Ești sigur că ai văzut și aceste proprietăți?
244.000 € + TVA
Iași, Miroslava
5 camere
135 mp
470 mp teren
239.999 €
Iași, Miroslava
4 camere
122 mp
600 mp teren
235.000 €
Iași, Miroslava
5 camere
186 mp
700 mp teren
215.000 €
Iași, Popas Păcurari
4 camere
200 mp
300 mp teren
235.000 €
Iași, Miroslava
4 camere
120 mp
420 mp teren
237.000 €
Iași, Valea Adâncă
4 camere
115 mp
270 mp teren
Creează alertă
Salvează căutarea ca să primești pe email ultimele anunțuri publicate
Case individuale cu 4+ camere de vânzare în zona Miroslava, Iași
Cere detalii prin email
*
*
*
*
Detaliile tale de contact vor fi partajate cu Cabinet Imobiliar
Preț total1.234.883 RON (242.186 €)
Costuri cu achiziția11.147 RON
Preț de achiziție1.223.736 RON
Costuri cu achiziția11.147 RON
Comision agenție Întreabă agenţia
Onorariu notarial9.311 RON
Taxă înscriere OCPI1.836 RON
Preț de achiziție1.223.736 RON
Preț locuință1.223.736 RON
TVA 0%Inclus în prețul cerut
Cost total199.845 RON (39.193 €)
Avans (15%)183.560 RON
Cost achitat în prima lună3.006 RON
Costuri cu achiziția13.279 RON
Cost achitat în prima lună3.006 RON
Comision analiză dosar
400 RON - 900 RON
Taxă evaluare imobil(până la)
900 RON
Rata lunară (variabilă)5.451 RON
Asigurare anuală imobil1.224 RON
Arhivă electronică102 RON
Poliță PAD130 RON
Asigurare de viață/lună Costul este variabil. În funcție de banca aleasă, procentul variază între 0.0259% și 0.035% din soldul creditului.
Costuri cu achiziția13.279 RON
Comision agenție Întreabă agenţia
Onorariu notarial9.311 RON
Taxă întabulare OCPI1.836 RON
Autentificare contract credit2.132 RON
Preț de achiziție1.223.736 RON
Preț locuință1.223.736 RON
TVA 0%Inclus în prețul cerut
Preț de achiziție1.223.736 RON
Preț locuință1.223.736 RON
TVA 0%
Inclus în prețul cerut
Avans minim616.967 RON
Credit pe 30 de ani606.769 RON
Cost achitat în prima lună
Taxa evaluare imobil(până la)
900 RON
Rata lunară (variabilă)4.263 RON
Depozit colateral12.789 RON
Comision de garantare FNGCIMM102 RON
Asigurare anuală imobil1.224 RON
Poliță PAD130 RON
Tarif arhivă electronică102 RON
Costuri adiționale1.364 RON + taxe notariale
Asigurare viață și complexă (opțională)Costul este variabil. În funcție de banca aleasă, procentul variază între 0.0259% și 0.035% din soldul creditului
Onorariu notarialconform tarif notarial
Taxă întabulare OCPI1.364 RON
i
Toate valorile de mai sus sunt estimative și nu reprezintă în mod obligatoriu costurile exacte pe care le veți primi de la companiile/instituțiile prin care veți încheia tranzacția.