1

COMISION 0%, Miroslava , Casa P+1, clasa A, 269.900 Euro

269.900 €

Miroslava, Iași

Nr. cam.:
4
Sup. utilă:
120 mp
Sup. teren:
394 mp
Tip prop.:
Casă individuală
  • • Locație aproximativă

Descriere casă

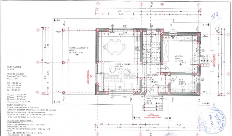
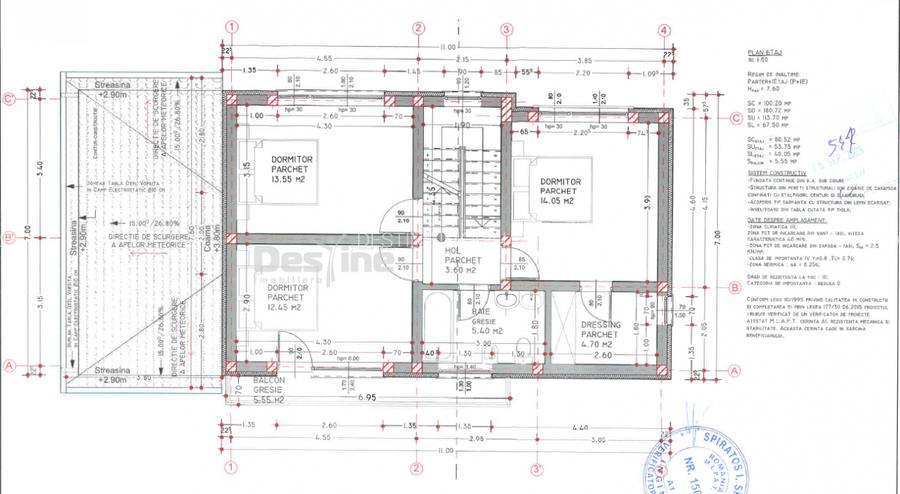
Destine Imobiliare va prezinta spre vanzare o CASĂ INDIVIDUALĂ situata in Miroslava, cu regim de inaltim P+1 , realizata la standarde moderne de eficienta energetica. PARTER inaltime 2.90 m -Hol de intrare -Living 28 mp -Bucatarie inchisa 12 mp -Baie cu duș -Terasa acoperita 32 mp ETAJ inaltime 2.85 m -Hol cu acces in pod -dormitor 1: 16 mp cu dresing 4mp -dormitor 2 :13 mp -dormitor 3 :14 mp -Baie cu cada , vas WC Villeroy & Boch ( dus igienic,colac incalzit,functie ventilare, dezinfectare) , lavoar -Balcon Este situata intr-o zona linistita de case la strada Principala. Imobilul se preda la cheie avand poze din toate fazele constructiei Caracteristici si beneficii: - Suprafata totala: 164,2 mp - Suprafata utila 120 mp - Teren aferent: 394 mp - Regim de inaltime: P + 1 - 4 camere - 2 bai cu geam - Incalzire in pardoseala - Pompa de caldura - Panouri FOTOVOLTAICE - Centrala pe sistem verde - Toate utilitatile disponibile, situata la strada asfaltata - Izolație vata minerala de 15 cm + vata minerala pe POD - Fundatie izolata si hidroizolata - Clasa energetica A - Constructie noua Disponibilitate: 2 unitati disponibile Finalizare: iunie 2026 Pret: 269.900 euro (TVA inclus) COMISION O% !! Imobilul este ideal pentru o familie care cauta confort modern, costuri reduse si un standard ridicat de locui… ❗️❗️❗️IMPORTANT❗️❗️❗️ 🎯Această proprietate poate fi achiziționată și prin intermediul unui CREDIT, iar noi suntem aici să vă facilităm acest proces. ✅Datorită parteneriatelor noastre strânse cu cele mai importante instituții bancare, vă putem oferi asistență în obținerea finanțării potrivite pentru dumneavoastră: CREDIT IPOTECAR, PRIMA CASĂ sau de NEVOI PERSONALE. 🚫ZERO COSTURI SUPLIMENTARE ! ZERO COMISIOANE !🚫 ℹ️Pentru informații suplimentare, nu ezitați să ne contactați !
Citește mai mult Citește mai puțin
Alte metode electrice Încălzire prin pardoseală 2 Parcări

Detalii casă

ID anunț: XBCG11101 Copiat! 274994134 Copiat!
Actualizat în: 21 Mai 2026
Tip tranzacție: De vânzare prin agent
Suprafață construită: 164.2 mp
Nr. bucătării: 1
Nr. băi: 2
Nr. balcoane / Terase / Logii: 1
Nr. terase: 1
Suprafață terase: 33 mp
An construcție: 2026 (În construcție)
Structură rezistență: Cărămidă
Regim înălțime: P+1E
Modalitate de plată: Cash sau Credit

Utilități

Pereți
Vopsea lavabilă Var Faianță
Podele
Parchet Gresie
Ușă intrare
PVC
Uși interior
Celulare
Izolații termice
Exterior
Ferestre cu geam termopan
PVC PVC
Contorizare
Apometre Contor gaz
Utilități
Curent Apă Canalizare Gaze
Amenajare străzi
Asfaltate Betonate Iluminat stradal Mijloace de transport în comun
Comision
Standard

Certificat energetic:

Clasa energetică: A

Puncte de interes

Școală
school
Sc Ctin Langa
Școli aprox. 823 m
school
Sc.gen. Miroslava
Școli aprox. 834 m
school
Gr Sc Agricol M Kogalniceanu
Școli aprox. 1310 m
school
LICEUL TEHNOLOGIC AGRICOL "M. Kogalniceanu"-Miroslava- Iași
Școli aprox. 1461 m

Istoricul prețurilor

Acces la informații premium după autentificare
Login Gratuit

Detalii despre preț și costuri

Costuri cu achiziția

Fără credit
Credit ipotecar
Noua casă

i

Costuri adiționale mai puțin știute la achiziție: taxe notariale, comisioane etc.

Acces la informații premium după autentificare
Login Gratuit

Proprietăți similare

Casă individuală cu 6 camere în Miroslava
265.000 €
Iași, Miroslava
6 camere
228 mp
500 mp teren
Casă individuală cu 5 camere în Miroslava
260.000 €
Iași, Miroslava
5 camere
226 mp
983 mp teren
Casă individuală cu 5 camere în Miroslava
250.000 €
Iași, Miroslava
5 camere
147 mp
983 mp teren

Detalii de contact

DESTINE IMOBILIARE

Ilie Loghin Broker imobiliar

DESTINE IMOBILIARE

Abonează-te la newsletter să fii primul care primește cele mai noi recomandări de proprietăți și sfaturi de la experți.

CONTACT

Creează alertă

Salvează căutarea ca să primești pe email ultimele anunțuri publicate

Case individuale cu 4+ camere de vânzare în zona Miroslava, Iași