21

Vila 4 cam,115 mp, 450 teren, 800 m de Primaria Miroslava

220.000 €

Miroslava, Iași

Nr. cam.:
4
Sup. utilă:
115 mp
Sup. teren:
450 mp
Tip prop.:
Individuală
  • • Locație aproximativă
  • • Vizionare prin apel video

Descriere casă

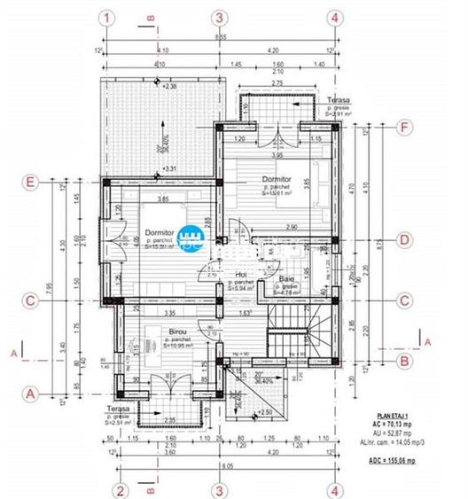
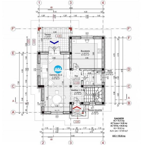
Vila de vanzare, cu un regim de inaltime P+1E, in zona Miroslava - la 800 m fata de primarie, spre Balciu, avand 4 camere si 2 bai, cu o suprafata de 115 mp si teren total 450 mp. Casa are structura mixta pe cadre din beton si caramida porotherm, beton armat intre etaje. Imobilul este situat in apropiere de drum asfaltat, unde avem si canalizarea. Compartimentare: Living , Bucătărie închisă, 3 Dormitoare, 2 Bai. Casa se vinde la cheie, racordata la utilitati gaz, curent, apa, fiind in construcție cu predare vara 2026. Modalitati de plata: Cash, pretul fiind negociabil Pentru mai multe detalii ma puteti contacta Alexandru Coptu la numarul de telefon: . ID intern: 6697
Citește mai mult Citește mai puțin
Centrală proprie Încălzire prin pardoseală 2 Parcări

Detalii casă

ID anunț: X3V4110PT Copiat! 957473 Copiat!
Actualizat în: 27 Aprilie 2026
Tip tranzacție: De vânzare prin agent
Suprafață construită: 150 mp
Suprafață desfășurată: 150 mp
Nr. bucătării: 1
Nr. băi: 2
Nr. balcoane / Terase / Logii: 1
Nr. terase: 2
Nr. fronturi stradale: 2
Învelitoare acoperiș: Țiglă
An construcție: 2026 (Finalizată)
Structură rezistență: Altele
Etaj: Etaj 1 / 1
Regim înălțime: P+1E+M
Modalitate de plată: Cash sau Credit

Utilități

Destinație
Rezidențial
Pereți
Faianță Vopsea lavabilă
Podele
Parchet Gresie
Izolații termice
Exterior Interior
Ferestre cu geam termopan
PVC
Utilități
Apă Curent Gaze Canalizare
Internet
Cablu Fibră optică
Amenajare străzi
Asfaltate Pietruite

Certificat energetic:

Clasa energetică: B

Vecinătăți:

Terenuri, Scoala/gradinita, Restaurant/pub, Supermarket, Autobuz

Puncte de interes

Școală
school
Sc Ctin Langa
Școli aprox. 330 m
school
Sc.gen. Miroslava
Școli aprox. 339 m
school
Gr Sc Agricol M Kogalniceanu
Școli aprox. 731 m
school
LICEUL TEHNOLOGIC AGRICOL "M. Kogalniceanu"-Miroslava- Iași
Școli aprox. 882 m

Istoricul prețurilor

Acces la informații premium după autentificare
Login Gratuit

Detalii despre preț și costuri

Costuri cu achiziția

Fără credit
Credit ipotecar
Noua casă

i

Costuri adiționale mai puțin știute la achiziție: taxe notariale, comisioane etc.

Acces la informații premium după autentificare
Login Gratuit

Proprietăți similare

Casă individuală cu 4 camere în Miroslava
225.000 €
Iași, Miroslava
4 camere
110 mp
400 mp teren
Casă individuală cu 5 camere în Miroslava
238.000 €
Iași, Miroslava
5 camere
122,7 mp
684 mp teren
Casă individuală cu 4 camere în Miroslava
210.000 €
Iași, Miroslava
4 camere
120 mp
400 mp teren

Detalii de contact

Imperia Imobiliare

Alexandru COPTU CONSULTANT IMOBILIAR VANZARI CASE PE ZONELE: VALEA ADANCA,LUNCA CETATUII, HORPAZ MIROSLAVA

Imperia Imobiliare
PRO

Abonează-te la newsletter să fii primul care primește cele mai noi recomandări de proprietăți și sfaturi de la experți.

CONTACT

Creează alertă

Salvează căutarea ca să primești pe email ultimele anunțuri publicate

Case individuale cu 4+ camere de vânzare în zona Miroslava, Iași