Casă P+1 cu PADURE Valea Lupului-Iași

222.000 €

Popas Păcurari, Iași

Nr. cam.:
3
Sup. utilă:
155 mp
Sup. teren:
1.550 mp
Tip prop.:
Casă individuală
  • • Locație aproximativă

Descriere casă

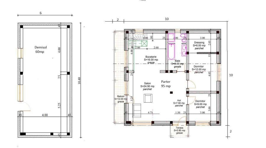
Vă propunem spre vânzare o casă inedită, în apropiere de Popas Păcurari Suprafata utila 155mp. (95 mp etaj, 60mp demisol) Constructie finalizata in Mai 2018 cu toate materialele conf. proiectului. -fundatie hidroizolata -pereti caramida -stalpi beton cu fier de 10 -izolatie exterioara din polistiren de 10 cm cu tencuiala intre perete si polistiren Parter de 60 mp cu acces separat, baie proprie, posibilitate de acces la etaj cu scara interioara Etaj de 95mp, 2 dormitoare, baie, bucatarie open space din care se poate coborî la demisol sau urca in pod, balcon 12mp. Acoperis mansardabil, legaturile la apa, curent trase. Placa beton intre demisol si etaj, tavan pe structura din barne de 12x12 cm intre etaj si pod cu izolatie din vată minerală si podea din scândură. Incalzire cu centrala prin condensare cu 10 calorifere mari, repartitoare si instalatie ingropata din PEX. Terasa betonata de aprox. 30 mp, cu camin pt apa, robinet aditional de exterior, regulator presiune apa, clapeta de sens pt evacuare WC-uri. Tamplarie tripan, suprafata vitrata foarte mare, usa acces de 1m latime, casa este foarte bine luminata natural, geamurile principale pozitionate catre apus, vedere deschisa. In zilele senine se vede Ceahlăul. Teren de 1550 mp din care 400 mp intravilan, 600 mp teren curte, 550 mp padure. utilate. Pentru mai multe detalii, vizionări sau alte oferte vă așteptăm cu drag la numărul de telefon afișat
Citește mai mult Citește mai puțin
Nemobilat Curte Centrală proprie Bine întreținut (Bună)

Detalii casă

ID anunț: XB8811126 Copiat! 274378091 Copiat!
Actualizat în: 23 Aprilie 2026
Suprafață construită: 160 mp
Nr. bucătării: 1
Nr. băi: 2
Nr. balcoane / Terase / Logii: 1
Suprafață terase: 30 mp
An construcție: 2018 (Finalizată)
Structură rezistență: Cărămidă
Regim înălțime: P+1E

Utilități

Izolații termice
Exterior Interior
Ferestre cu geam termopan
PVC
Contorizare
Apometre Contor căldură Contor gaz
Diverse
Scară interioară
Utilități
Curent Apă Canalizare Gaze CATV Telefon
Internet
Fibră optică

Puncte de interes

Școală
school
Sc Golaiesti
Școli aprox. 645 m

Detalii despre preț și costuri

Costuri cu achiziția

Fără credit
Credit ipotecar
Noua casă

i

Costuri adiționale mai puțin știute la achiziție: taxe notariale, comisioane etc.

Insight premium disponibil după login

Proprietăți recomandate

Detalii de contact

Invest Imobiliare

Rares Bucovineanu Agent Imobiliar

Invest Imobiliare
PRO

Abonează-te la newsletter să fii primul care primește cele mai noi recomandări de proprietăți și sfaturi de la experți.

CONTACT

Creează alertă

Salvează căutarea ca să primești pe email ultimele anunțuri publicate

Case individuale cu 3 camere de vânzare în zona Popas Păcurari, Iași