Casă INDIVIDUALĂ 4c Valea Lupului-Iași COMISION 0%

200.000 €

Popas Păcurari, Iași

Nr. cam.:
4
Sup. utilă:
100 mp
Sup. teren:
500 mp
Tip prop.:
Casă individuală
  • • Locație aproximativă

Descriere casă

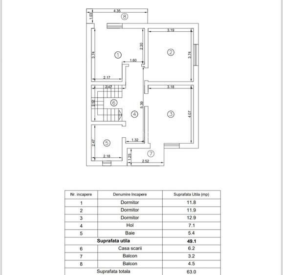
Vă propunem spre vânzare o casă individuală, într-un complex modern, în Valea Lupului, Iași, la prețul de 200.000 EURO, cu COMISION 0% PENTRU CUMPĂRĂTOR! Casele au 100mp utili impartiti in 3 dormitoare, 2 bai, o bucatarie spatioasa si un living generos Fiecare casa dispune de teren de peste 500mp2 parterul placat cu gresie 120x 60 scara interioara din lemn-stejar incalzire prin pardoseala cu 2 distribuitoare fiecare cu pompa proprie si teava Rehau tamplarie PVC marca Salamander cu 3 randuri de sticla si 9 camere spatii vitrate de dimensiuni mari parcarea si trotuarele placate cu pavele gard din stalpi de beton placati cu marmura poarta la parcare este automatizata terasa de 21 mp acoperita cu iesire din living si bucatarie racordata la toate utilitatile, inclusiv canalizare Poze cu titlu de prezentare de la alte imobile realizate de același dezvoltator Pentru mai multe detalii, vizionări sau alte variante vă așteptăm cu drag la numărul de telefon afișat
Citește mai mult Citește mai puțin
Curte Centrală proprie Încălzire prin pardoseală 2 Parcări

Detalii casă

ID anunț: XB881114T Copiat! 275259944 Copiat!
Actualizat în: 13 Martie 2026
Suprafață construită: 130 mp
Nr. bucătării: 1
Nr. băi: 3
Nr. balcoane / Terase / Logii: 1
Nr. terase: 1
Structură rezistență: Cărămidă
Regim înălțime: P+1E

Utilități

Podele
Parchet Gresie
Utilități
Curent Apă Canalizare Gaze
Amenajare străzi
Betonate

Puncte de interes

Mijloace transport
bus-station
Statia "Antibiotice", linia 20
Stații autobuz aprox. 744 m
bus-station
Statia "Dedeman", linia 20
Stații autobuz aprox. 927 m
bus-station
Statia "Metro", linia 20
Stații autobuz aprox. 1222 m
bus-station
Metro
Stații autobuz aprox. 1278 m
Școală
school
Scoala Noua
Școli aprox. 1060 m
school
Scoala
Școli aprox. 1305 m
Recreere
restaurant
Crystal
Restaurant aprox. 29 m
sports-ground
Teren sportiv
Terenuri sport aprox. 856 m
supermarket
Metro Iasi
Supermarket aprox. 1288 m
sports-ground
Teren sportiv
Terenuri sport aprox. 1508 m

Detalii despre preț și costuri

Costuri cu achiziția

Fără credit
9.766 RON
Credit ipotecar
11.727 RON
Noua casă
1.159 RON+ taxe notariale

i

Costuri adiționale mai puțin știute la achiziție: taxe notariale, comisioane etc.

Proprietăți similare

Casă individuală cu 4 camere în Popas Păcurari
182.000 €
Iași, Popas Păcurari
4 camere
110 mp
351 mp teren
Casă individuală cu 4 camere în Popas Păcurari
210.000 €
Iași, Popas Păcurari
4 camere
87 mp
600 mp teren
Casă individuală cu 4 camere în Popas Păcurari
190.000 €
Iași, Popas Păcurari
4 camere
130 mp
576 mp teren

Detalii de contact

Invest Imobiliare

Rares Bucovineanu Agent Imobiliar

Invest Imobiliare
PRO

Abonează-te la newsletter să fii primul care primește cele mai noi recomandări de proprietăți și sfaturi de la experți.

CONTACT

Creează alertă

Salvează căutarea ca să primești pe email ultimele anunțuri publicate

Case individuale cu 4+ camere de vânzare în zona Popas Păcurari, Iași