Casă Single 4C Valea Lupului-Iași

150.000 €

Popas Păcurari, Iași

Nr. cam.:
4
Sup. utilă:
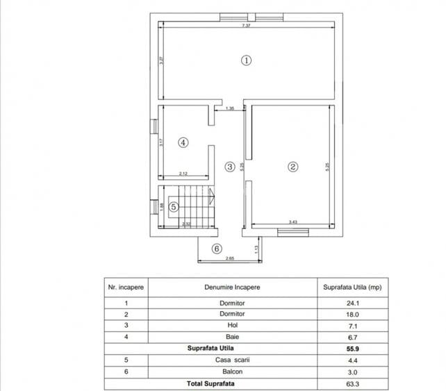
120 mp
Sup. teren:
600 mp
Tip prop.:
Casă individuală
  • • Comision 0%
  • • Locație aproximativă

Descriere casă

Vă propunem spre vânzare o casă deosebită, situată într-o zonă liniștită, doar de case, la prețul de doar 150,000 EURO Imobilul dispune de o suprafață generoasă de 120mp2, dar și de o curte pe măsură, DE 600MP2 Compartimentare avantajoasă, modernă dar și practică Bucătărie separată, 3 dormitoare generoase, 2 băi, living luminos Structură rezistentă, finisaje premium, gata de mutare Zonă foarte bună, cu acces facil către principalele puncte de interes precum Mall Moldova, stații de autobuz, grădinițe Priveliște superbă Pentru mai multe detalii, vizionări sau alte variante vă așteptăm cu drag la numărul de telefon afișat
Citește mai mult Citește mai puțin
Nemobilat Curte Centrală proprie 1 Parcare Bine întreținut (Bună)

Detalii casă

ID anunț: XB881115D Copiat! 275337162 Copiat!
Actualizat în: 24 Martie 2026
Suprafață construită: 131 mp
Nr. bucătării: 1
Nr. băi: 2
Nr. balcoane / Terase / Logii: 1
Nr. terase: 1
Suprafață terase: 20 mp
An construcție: 2025 (Finalizată)
Structură rezistență: Cărămidă
Regim înălțime: P+1E

Utilități

Podele
Parchet Gresie
Izolații termice
Exterior Interior
Ferestre cu geam termopan
PVC
Contorizare
Apometre Contor căldură Contor gaz
Utilități
Curent Apă Canalizare Gaze CATV Telefon
Internet
Fibră optică
Comision
0%

Certificat energetic:

Clasa energetică: B

Puncte de interes

Mijloace transport
tram-station
Statia "Podu de Fier", linia 1,13
Stații tramvai aprox. 306 m
bus-station
Statia "Podu de Fier", linia 18
Stații autobuz aprox. 307 m
bus-station
Podul de Fier
Stații autobuz aprox. 327 m
tram-station
Padurii
Stații tramvai aprox. 499 m
Școală
kindergarten
GRĂDINIȚA PENILLA, Iași
Gradinițe aprox. 174 m
school
Liceul UCECOM ( Spiru Haret ) IASI
Școli aprox. 374 m
kindergarten
Gradinita cu program prelungit nr. 4
Gradinițe aprox. 696 m
university
Universitatea Petre Andrei
Universități aprox. 862 m
Recreere
park
Parc
Parcuri aprox. 140 m
sports-ground
Teren sportiv
Terenuri sport aprox. 412 m
supermarket
Hala Centrala
Supermarket aprox. 916 m
mall
Galeriile Ștefan cel Mare
Mall aprox. 1391 m

Detalii despre preț și costuri

Costuri cu achiziția

Fără credit
8.053 RON
Credit ipotecar
9.802 RON
Noua casă
904 RON+ taxe notariale

i

Costuri adiționale mai puțin știute la achiziție: taxe notariale, comisioane etc.

Proprietăți similare

Casă individuală cu 4 camere în Popas Păcurari
155.000 €
Iași, Popas Păcurari
4 camere
97 mp
387 mp teren
Casă individuală cu 3 camere în Popas Păcurari
160.000 €
Iași, Popas Păcurari
3 camere
70 mp
260 mp teren
Casă individuală cu 4 camere în Popas Păcurari
159.000 €
Iași, Popas Păcurari
4 camere
110 mp
250 mp teren

Detalii de contact

Invest Imobiliare

Rares Bucovineanu Agent Imobiliar

Invest Imobiliare
PRO

Abonează-te la newsletter să fii primul care primește cele mai noi recomandări de proprietăți și sfaturi de la experți.

CONTACT

Creează alertă

Salvează căutarea ca să primești pe email ultimele anunțuri publicate

Case individuale cu 4+ camere de vânzare în zona Popas Păcurari, Iași