7

Casa cu 3 camere, 450mp teren, de vanzare in Valea Adanca

140.000 €

Valea Adâncă, Iași

Nr. cam.:
3
Sup. utilă:
72 mp
Sup. teren:
450 mp
Tip prop.:
Individuală
  • • Locație aproximativă
  • • Vizionare prin apel video

Descriere casă

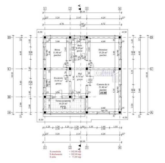
Casa individuala, noua, de vanzare in Miroslava - Valea Adanca Compania Imobiliara Fidelia Casa va propune spre vanzare o casa individuala noua cu regimul de inaltime Parter+Mansarda, situata in Iasi, comuna Miroslava, zona Valea Adanca. Imobilul are o suprafata construita de 102 mp, din care 72 mp utili, si o terasa complet amenajata de 10 mp. Casa este amplasata pe un teren de 450 mp. Caracteristici: Compartimentare: Hol, 2 dormitoare, living room, bucatarie, baie, terasa si cu posibilitatea de compartimentare ulterioara a mansardei. Suprafata utila: 72 mp Suprafata construita: 102 mp Suprafata terasa: 10 mp Suprafata teren: 450 mp Nr. bai: 1 Bucatarie: 1 Structura: Caramida BKS 250 Incalzire: Incalzire in pardoseala Acoperis: Tabla tip tigla, grosime 0.5 mm Parcare: In curte (2 locuri) An constructie: Termen Septembrie 2026 Deschidere: 15 metri Fronturi: 1 Materiale si finisaje: Fundatie din beton si structura armata Tamplarie PVC, 7 camere de izolatie, geam tripan Termosistem EPS 80, grosime 100 mm Instalatii sanitare cu distribuitor metalic Sape si tencuieli mecanizate, tencuiala decorativa siliconata Instalatii electrice cap-scara Gard cu stalpi si fundatie de beton
Citește mai mult Citește mai puțin
Centrală proprie 2 Parcări

Detalii casă

ID anunț: XF810101M Copiat! 275343707 Copiat!
Actualizat în: 31 Martie 2026
Tip tranzacție: De vânzare prin agent
Suprafață construită: 102 mp
Suprafață desfășurată: 102 mp
Nr. bucătării: 1
Nr. băi: 1
Nr. terase: 1
Suprafață terase: 10 mp
Nr. fronturi stradale: 1
Front stradal: 15 m
Învelitoare acoperiș: Tabla
An construcție: 2026 (Finalizată)
Structură rezistență: Altele
Regim înălțime: P+1E+M
Modalitate de plată: Cash sau Credit

Utilități

Destinație
Rezidențial
Izolații termice
Exterior
Contorizare
Apometre Contor gaz
Utilități
Apă Curent Gaze Telefon Fosa septică CATV
Internet
Fibră optică
Amenajare străzi
Asfaltate Pietruite

Certificat energetic:

Clasa energetică: B

Vecinătăți:

Scoala/gradinita, Supermarket

Puncte de interes

Mijloace transport
bus-station
Statia ""Baza naut", linia 41b,44
Stații autobuz aprox. 1841 m
bus-station
Baza naut
Stații autobuz aprox. 1841 m
bus-station
statia "Otelarie", linia 44,41b
Stații autobuz aprox. 1882 m
bus-station
Statia ""Horpaz", linia 41b,44
Stații autobuz aprox. 1925 m
Recreere
restaurant
La Debarcader
Restaurant aprox. 574 m
sports-ground
Teren sportiv
Terenuri sport aprox. 1647 m
sports-ground
Teren sportiv
Terenuri sport aprox. 1672 m
park
Parc
Parcuri aprox. 1679 m

Detalii despre preț și costuri

Costuri cu achiziția

Fără credit
Credit ipotecar
Noua casă

i

Costuri adiționale mai puțin știute la achiziție: taxe notariale, comisioane etc.

Acces la informații premium după autentificare
Login Gratuit

Proprietăți similare

Casă individuală cu 3 camere în Vișani
145.000 €
Iași, Vișani
3 camere
90 mp
400 mp teren
Casă individuală cu 3 camere în Bucium
150.000 €
Iași, Bucium
3 camere
76 mp
1.500 mp teren
Casă individuală cu 4 camere în Miroslava
145.000 €
Iași, Miroslava
4 camere
90 mp
400 mp teren

Detalii de contact

FIDELIA CASA ALEXANDRU

Mircea Andrei Burescu Consilier Imobiliar

FIDELIA CASA ALEXANDRU

Abonează-te la newsletter să fii primul care primește cele mai noi recomandări de proprietăți și sfaturi de la experți.

CONTACT

Creează alertă

Salvează căutarea ca să primești pe email ultimele anunțuri publicate

Case individuale cu 3 camere de vânzare în zona Valea Adâncă, Iași