Casa speciala cu istorie de vanzare Jimbor | Fosta scoala

80.000 €

Jimbor, Județul Brașov

Nr. cam.:
7
Sup. utilă:
265,3 mp
Sup. teren:
1.036 mp
Tip prop.:
Individuală
  • • Exclusivitate
  • • Locație exactă
  • • Vizionare prin apel video

Descriere casă

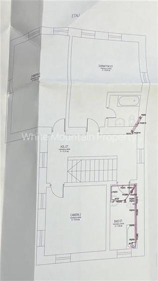
Casa cu istorie si potential – Jimbor, jud. Brasov, 0 % comision pentru cumparator In inima localitatii Jimbor, localitate atestata documentar inca din 1385, va propunem o proprietate unica, incarcata de traditie si de posibilitati. Aceasta casa solida, cu o suprafata de 276 mp desfasurati pe trei niveluri, compusa din 7 camere, 4 bai, 3 holuri si o camera tehnica, imbina armonios respectul pentru trecut cu confortul modern. Initial gandita ca resedinta de vacanta pentru o familie, casa a fost renovata incepand cu anul 2007, cu grija si atentie la detalii, conform proiectelor tehnice care pot fi puse la dispozitie la cerere. Parter : Living 54 mp, Bucatarie de 16.19 mp, Camera Tehnica 7.38 mp, Hol 8 mp Etaj : Hol 1.72 mp, Dormitor 1 - 23 mp, Baie 4.10 mp, Dormitor 2 - 16.19 mp, Baie 7.38 mp, Dormitor 3- 24.84 mp Mansarda : Hol 7.75 mp, baie 5.71 mp, Dormitor 1 - 24,54 mp, Dormitor 2- 23 mp, baie 4.10 mp, Dormitor - 3 24,50 mp Structura solida: zidarie noua de 60 cm, pereti exteriori si interiori izolati (15 cm), constructie durabila. Modernizare completa: instalatii electrice si sanitare refacute, cu proiect tehnic. Grad de finalizare: 80-90%, cu materiale de calitate, lasand loc noilor proprietari sa adauge propria viziune. Utilitati: electricitate, gaz, apa, canalizare – toate disponibile. Curte generoasa: peste 1000 mp, ideala pentru gradina, zona de relaxare sau extinderi. Renovarea a pastrat caracterul si farmecul arhitectural al zonei, aducand in acelasi timp facilitati moderne pentru un trai confortabil. Locatie: La doar 70 km de Brasov, in apropierea unor repere turistice de mare valoare: pitorestile sate sasesti Viscri si Saschiz, care fac parte din patrimoniul UNESCO, Mesendorf, Cetatea Jimbor, Cetatea Rupea, Biserica Fortificata din Homorod, Lacul de Smarald de la Racos. O casa cu multiple destinatii: Resedinta de vacanta, Casa de oaspeti sau pensiune, Proiect de turism rural si cultural. Proprietatea se vinde mobilata cu piese din lemn masiv, adaugand un plus de autenticitate si eleganta. O oportunitate rara de a detine o proprietate cu poveste, intr-un sat plin de istorie si traditie. Pentru detalii suplimentare sau vizionari, va rog nu ezitati sa ma contactati la numarul de telefon , sau prin e-mail, la adresa . Colegii mei si cu mine va vom ajuta cu mare placere.
Citește mai mult Citește mai puțin
Parțial mobilat Centrală proprie 3 Parcări

Detalii casă

ID anunț: XC4S11085 Copiat! 270541053 Copiat!
Actualizat în: 08 Aprilie 2026
Suprafață construită: 270 mp
Suprafață desfășurată: 270 mp
Nr. bucătării: 1
Nr. băi: 3
Nr. balcoane / Terase / Logii: 1
Nr. terase: 1
Suprafață terase: 4.6 mp
Învelitoare acoperiș: Țiglă
An construcție: 1920 (Finalizată)
Structură rezistență: Altele
Etaj: Etaj 1 / 1
Regim înălțime: P+1E+M

Utilități

Destinație
Comercial
Podele
Parchet
Ușă intrare
Lemn
Izolații termice
Exterior Interior
Ferestre cu geam termopan
Lemn
Contorizare
Apometre Contor gaz
Bucătărie
Mobilată
Diverse
Scară interioară
Utilități
Apă Curent Gaze Canalizare
Internet
Fibră optică
Amenajare străzi
Asfaltate

Detalii despre preț și costuri

Costuri cu achiziția

Fără credit
Credit ipotecar
Noua casă

i

Costuri adiționale mai puțin știute la achiziție: taxe notariale, comisioane etc.

Insight premium disponibil după login

Proprietăți recomandate

Detalii de contact

White Mountain Property

Raluca Macarie Property Consultant Brasov

5.00(3 review-uri)

White Mountain Property
PRO

Abonează-te la newsletter să fii primul care primește cele mai noi recomandări de proprietăți și sfaturi de la experți.

CONTACT

Creează alertă

Salvează căutarea ca să primești pe email ultimele anunțuri publicate

Case individuale cu 4+ camere de vânzare în Județul Brașov