Casa visurilor tale in Joita – Oportunitate unica, comision 0% pentru cumparator!
Daca iti doresti un loc linistit, aproape de Bucuresti, unde sa te simti acasa in fiecare zi, aceasta casa din Joita este exact ce cauti. Imobilul este situat intr-o locatie centrala, in apropierea tuturor facilitatilor de care ai nevoie – scoala, gradinita, magazine, restaurante si mijloace de transport in comun. Iar internetul prin fibra optica este deja disponibil, pentru ca tu sa fii mereu conectat, zona cu acces rapid catre A0, A1 si Soseaua de Centura.
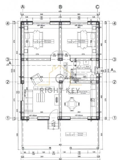
Casa, cu o suprafata utila de 85 mp si o suprafata construita de 105 mp, este pregatita sa devina caminul tau. Cu un teren de 300 mp si o deschidere generoasa de 17 m, iti vei putea amenaja gradina asa cum ai visat. Camerele sunt spatioase si luminoase, iar compartimentarea iti va oferi confortul de care ai nevoie.
In interior vei gasi doua dormitoare confortabile (12,78 mp si 12,60 mp), un living generos (21,35 mp) in care te vei relaxa dupa o zi lunga, o bucatarie de 12,60 mp unde sa pregatesti mese delicioase si o baie moderna (5,14 mp). Nu in ultimul rand, terasa de 20 mp iti va oferi locul perfect pentru a petrece timpul liber, iar podul de depozitare poate fi transformat intr-un spatiu suplimentar, daca iti doresti.
Casa beneficiaza de toate utilitatile necesare: gaz, curent, apa (put propriu) si fosa septica, iar izolatia cu polistiren de 10 cm EPS 80 iti va asigura confortul termic pe tot parcursul anului. Acoperisul din tabla Wetterbest si tamplaria Tripan Salamander aduc un plus de calitate si durabilitate.
Iar daca iti doresti o locuinta economica si eficienta energetic, vei fi placut surprins – casa are clasa energetica A!
Poti alege finisajele interioare, in limita unui buget stabilit, astfel incat sa personalizezi fiecare colt al casei tale dupa stilul si gusturile tale. Fie ca preferi un look modern, rustic sau clasic, vei avea libertatea de a crea spatiul care ti se potriveste cel mai bine.
Pozele de prezentare provin de la o casa deja vanduta, casa este in constructie.
Pret: 105.000 € si comision 0% pentru cumparator!
Nu rata aceasta oportunitate! Fie ca iti doresti un loc in care sa te relaxezi sau sa te bucuri de timp de calitate alaturi de familie, aceasta casa este locul perfect pentru tine. Contacteaza-ne pentru mai multe detalii si pentru a programa o vizionare!
Citește mai mult
Citește mai puțin
Grădină
Curte
Calorifere
Centrală proprie
Zonă rurală
Sediul central - Timișoara
Bulevardul Victor Babeș nr. 2, 300230, Timișoara, România
Tel: +40.374.40.44.98 / Fax: +40.256.401.179
Email: suport@imobiliare.ro
Luni - Vineri 08:00 - 20:00
Punct de lucru - București: Iride Business Park, Bld. Dimitrie
Pompeiu 9-9A, Clădirea B2B,
020335, Sector 2, București, România
CONTACT
Sediul central - Timișoara
Bulevardul Victor Babeș nr. 2, 300230, Timișoara, România
Tel: +40.374.40.44.98 / Fax: +40.256.401.179
Email: suport@imobiliare.ro
Luni - Vineri 08:00 - 20:00
Punct de lucru - București: Iride Business Park, Bld. Dimitrie
Pompeiu 9-9A, Clădirea B2B,
020335, Sector 2, București, România
Sună acum și cere detalii sau programează o vizionare.
Cere detalii prin email
*
*
*
*
Înainte să pleci...
Ești sigur că ai văzut și aceste proprietăți?
107.500 €
Județul Giurgiu, Joița
3 camere
89,8 mp
358 mp teren
136.000 €
Județul Giurgiu, Joița
4 camere
85 mp
340 mp teren
123.000 €
Județul Giurgiu, Joița
3 camere
84,1 mp
300 mp teren
105.000 €
Județul Giurgiu, Joița
3 camere
70 mp
450 mp teren
98.000 €
Județul Giurgiu, Joița
3 camere
85 mp
358 mp teren
105.000 €
Județul Giurgiu, Joița
3 camere
90 mp
300 mp teren
Creează alertă
Salvează căutarea ca să primești pe email ultimele anunțuri publicate
Case individuale cu 3 camere de vânzare în Joița, Județul Giurgiu
Cere detalii prin email
*
*
*
*
Detaliile tale de contact vor fi partajate cu Right Key
Preț total541.690 RON (106.245 €)
Costuri cu achiziția6.348 RON
Preț de achiziție535.342 RON
Costuri cu achiziția6.348 RON
Comision agenție Întreabă agenţia
Onorariu notarial5.545 RON
Taxă înscriere OCPI803 RON
Preț de achiziție535.342 RON
Preț locuință535.342 RON
TVA 0%Inclus în prețul cerut
Cost total90.525 RON (17.755 €)
Avans (15%)80.301 RON
Cost achitat în prima lună2.317 RON
Costuri cu achiziția7.907 RON
Cost achitat în prima lună2.317 RON
Comision analiză dosar
400 RON - 900 RON
Taxă evaluare imobil(până la)
900 RON
Rata lunară (variabilă)2.385 RON
Asigurare anuală imobil535 RON
Arhivă electronică102 RON
Poliță PAD130 RON
Asigurare de viață/lună Costul este variabil. În funcție de banca aleasă, procentul variază între 0.0259% și 0.035% din soldul creditului.
Costuri cu achiziția7.907 RON
Comision agenție Întreabă agenţia
Onorariu notarial5.545 RON
Taxă întabulare OCPI803 RON
Autentificare contract credit1.559 RON
Preț de achiziție535.342 RON
Preț locuință535.342 RON
TVA 0%Inclus în prețul cerut
Preț de achiziție535.342 RON
Preț locuință535.342 RON
TVA 0%
Inclus în prețul cerut
Avans minim80.301 RON
Credit pe 30 de ani455.042 RON
Cost achitat în prima lună
Taxa evaluare imobil(până la)
900 RON
Rata lunară (variabilă)3.197 RON
Depozit colateral9.591 RON
Comision de garantare FNGCIMM45 RON
Asigurare anuală imobil535 RON
Poliță PAD130 RON
Tarif arhivă electronică102 RON
Costuri adiționale675 RON + taxe notariale
Asigurare viață și complexă (opțională)Costul este variabil. În funcție de banca aleasă, procentul variază între 0.0259% și 0.035% din soldul creditului
Onorariu notarialconform tarif notarial
Taxă întabulare OCPI675 RON
i
Toate valorile de mai sus sunt estimative și nu reprezintă în mod obligatoriu costurile exacte pe care le veți primi de la companiile/instituțiile prin care veți încheia tranzacția.