Casa eleganta 4 camere in zona Hanul Piratilor – 236 mp, teren 350 mp, mobilata

550.000 €

Mamaia, Județul Constanța

Nr. cam.:
5
Sup. utilă:
194,7 mp
Sup. teren:
350 mp
Tip prop.:
Individuală
  • • Comision 0%
  • • Exclusivitate
  • • Locație exactă

Descriere casă

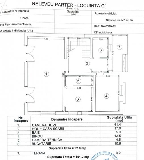
Casa - Vila de vanzare – Mamaia Sat / Mamaia Nord – Zona Hanul Piratilor - Zona asfaltata recent! Locatie excelenta – intre Hanul Piratilor si Hanul cu Peste, aproape de Profi si Mega Image, intr-o zona linistita si usor accesibila. Suprafata teren: 350 mp Suprafata construita desfasurata: 236 mp Compartimentare: La parter: Living spatios, bucatarie, camera tehnica(camera provizii), baie, dormitor sau birou, terasa, hol si casa scarii de acces catre etaj. La etaj: 3 dormitoare( unul matrimonial cu baie proprie,dressing si balcon), baie, hol Dotari si finisaje: Mobilata complet cu mobilier import Spania si Italia, utilata cu electrocasnice premium SMEG, finisaje interioare cu piatra naturala, ceramica de calitate superioara, usi de interior import Spania, tencuiala decorativa exterioara de calitate, izolatie exterioara eficienta, acoperis din tigla ceramica. Sisteme si echipamente moderne: Sistem de racire cu aer conditionat pe fiecare etaj. Sistem de detectie si protectie la incendiu Sistem automat de irigare pentru gradina Sistem de supraveghere video Structura de rezistenta cu fundatie pe perna de piatra, stalpi si grinzi cu zidarie pe cadre, placa peste parter si peste etaj! Posibilitate de extindere pe inaltime. Casa ideala pentru locuire permanenta sau investitie turistica, intr-o zona aflata in continua dezvoltare, la cateva minute de mers pe jos de plaja si restaurante. Pentru mai multe detalii sau programarea unei vizionari, va stam la dispozitie!
Citește mai mult Citește mai puțin
Mobilat Lux Grădină Curte Aer condiționat Centrală proprie 4 Parcări Zonă de litoral

Detalii casă

ID anunț: X4K0110DF Copiat! 272855877 Copiat!
Actualizat în: 05 Decembrie 2025
Suprafață construită: 236 mp
Nr. bucătării: 1
Nr. băi: 3
Nr. balcoane / Terase / Logii: 2
Nr. terase: 2
Front stradal: 13.4 m
An construcție: 2021 (Finalizată)
Structură rezistență: Beton
Regim înălțime: P+1E

Utilități

Pereți
Vopsea lavabilă Var
Podele
Parchet Gresie
Ușă intrare
Metal
Uși interior
Lemn
Izolații termice
Exterior
Ferestre cu geam termopan
PVC
Contorizare
Apometre Contor gaz
Bucătărie
Mobilată Utilată
Electrocasnice
Frigider Aragaz Mașină spălat vase TV Cuptor microunde Hotă
Diverse
Senzor de fum Sistem de alarmă
Alte spații utile
Anexe Dependințe
Facilități imobil
Interfon
Utilități
Curent Apă Canalizare Gaze CATV
Amenajare străzi
Asfaltate

Certificat energetic:

Clasa energetică: A

Vecinătăți:

profi, mega image, Hanul cu Peste

Disponibilitate proprietate:

imediat

Puncte de interes

Recreere
park
Parc
Parcuri aprox. 508 m
restaurant
Terasa Merlin
Restaurant aprox. 516 m
supermarket
Max supermarket
Supermarket aprox. 1175 m
sports-ground
Teren sportiv
Terenuri sport aprox. 1987 m

Detalii despre preț și costuri

Costuri cu achiziția

Fără credit
21.791 RON
Credit ipotecar
25.239 RON
Noua casă
2.944 RON+ taxe notariale

i

Costuri adiționale mai puțin știute la achiziție: taxe notariale, comisioane etc.

Proprietăți recomandate

Detalii de contact

Abonează-te la newsletter să fii primul care primește cele mai noi recomandări de proprietăți și sfaturi de la experți.

CONTACT

Creează alertă

Salvează căutarea ca să primești pe email ultimele anunțuri publicate

Case individuale cu 4+ camere de vânzare în Mamaia, Județul Constanța