🏡 Casă Premium Individuală – Uricani (Miroslava)
📍 Ideală pentru familie | Construcție solidă | Materiale de top
Se oferă spre vânzare casă individuală P+1+Pod, construită inițial pentru uz propriu, nu pentru vânzare – un detaliu care se vede și se simte în fiecare colț.
Proprietatea este amplasată pe un teren plan de 600 mp, într-o zonă excelentă pentru familii, cu școală, grădiniță și parc de joacă chiar lângă casă.
📐 Suprafețe
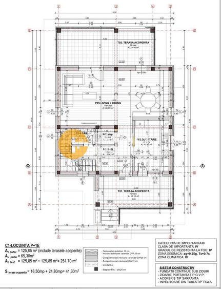
Suprafață construită: 250 mp
Suprafață utilă totală: 210 mp
128 mp interior
82 mp terase (2 la parter + 2 la etaj, toate acoperite)
🛋️ Compartimentare:
-Parter
Living foarte spațios, cu 2 ieșiri către terasa din spate și grădină
Bucătărie separată, cu ieșire pe terasa din față
Hol generos
Cameră tehnică / depozitare
Baie de serviciu cu spațiu pentru mașină de spălat
2 terase acoperite din beton: 17 mp (față) și 24 mp (spate)
-Etaj
Hol spațios
3 dormitoare, fiecare cu acces pe terasă
2 băi
Dormitor matrimonial cu:
baie proprie (duș walk-in)
dressing mare cu geam
-Terase:
24 mp (spate)
17 mp (față)
Balustrade din sticlă securizată laminată fumurie – 10 mm
Pod
Acces pe scară
Înălțime: 2,2 m
Placă de beton între etaj și pod, izolată fonic și termic cu vată bazaltică
Posibilitate amenajare 2 camere suplimentare
Urmează a fi izolat cu spumă poliuretanică
🔥 Dotări & finisaje premium
Încălzire în pardoseală Uponor, pe ambele niveluri
Calorifere port-prosop în băi
Centrală Viessmann Vitodens în condensare, cu Wi-Fi
Sistem smart Salus – control individual pe 8 zone, termostate în fiecare cameră, control de pe telefon
Instalație electrică Schneider
Tâmplărie Salamander tripan, interior–exterior în două culori, geamuri opace
Parchet SPC la etaj (compatibil încălzire în pardoseală)
Gresie și finisaje atent alese
Glafuri din marmură la interior și granit la exterior
Trepte și balustrade din lemn masiv de fag
🚿 Băi complet echipate
3 băi hidroizolate integral + bandă de etanșare
Cadă freestanding
Dușuri walk-in
WC-uri suspendate Roca cu rezervor încastrat
Duș intim
Benzi LED încastrate în tencuială
🧱 Exterior & structură
Fundație adâncă, izolată cu XPS + hidroizolație
Cărămidă portantă Brikston
Termosistem EPS 80 grafitat, ignifugat – 10 cm, montat pe chenare
Terase hidroizolate integral
Gard tip jaluzele orizontale, fundație și stâlpi din beton
Poartă automatizată cu telecomandă + aplicație mobilă
Alei și trotuare betonate și pavate (pavele combi – 3 dimensiuni)
Rigole pluviale pe toată proprietatea
Racorduri complete: apă, gaz, canalizare, electricitate, fibră optică
✅ Avantaje cheie
Teren drept, plan
Toate etapele construcției documentate (peste 1200 poze și filmări)
Casă solidă, eficientă energetic
Pregătită pentru mutare imediată
💰 Preț: 240.000 € (TVA inclus) - se accepta orice modalitate de plata
📞 Pentru detalii sau vizionare, această casă merită văzută pe viu – calitatea se simte de la primul pas.
Sediul central - Timișoara
Bulevardul Victor Babeș nr. 2, 300230, Timișoara, România
Tel: +40.374.40.44.98 / Fax: +40.256.401.179
Email: suport@imobiliare.ro
Luni - Vineri 08:00 - 20:00
Punct de lucru - București: Iride Business Park, Bld. Dimitrie
Pompeiu 9-9A, Clădirea B2B,
020335, Sector 2, București, România
CONTACT
Sediul central - Timișoara
Bulevardul Victor Babeș nr. 2, 300230, Timișoara, România
Tel: +40.374.40.44.98 / Fax: +40.256.401.179
Email: suport@imobiliare.ro
Luni - Vineri 08:00 - 20:00
Punct de lucru - București: Iride Business Park, Bld. Dimitrie
Pompeiu 9-9A, Clădirea B2B,
020335, Sector 2, București, România
Sună acum și cere detalii sau programează o vizionare.
Cere detalii prin email
*
*
*
*
Terenuri sport
stadion
aprox.
482 m
Înainte să pleci...
Ești sigur că ai văzut și aceste proprietăți?
215.000 €
Județul Iași, Miroslava
4 camere
118 mp
440 mp teren
230.000 €
Județul Iași, Miroslava
4 camere
150 mp
731 mp teren
195.000 € + TVA
Județul Iași, Miroslava
4 camere
132 mp
430 mp teren
244.000 € + TVA
Iași, Miroslava
5 camere
135 mp
470 mp teren
235.000 €
Județul Iași, Miroslava
4 camere
130 mp
450 mp teren
263.000 €
Județul Iași, Miroslava
4 camere
183 mp
500 mp teren
Creează alertă
Salvează căutarea ca să primești pe email ultimele anunțuri publicate
Case individuale cu 4+ camere de vânzare în Miroslava, Județul Iași
Cere detalii prin email
*
*
*
*
Detaliile tale de contact vor fi partajate cu Cabinet Imobiliar
Preț total1.233.723 RON (242.186 €)
Costuri cu achiziția11.139 RON
Preț de achiziție1.222.584 RON
Costuri cu achiziția11.139 RON
Comision agenție Întreabă agenţia
Onorariu notarial9.305 RON
Taxă înscriere OCPI1.834 RON
Preț de achiziție1.222.584 RON
Preț locuință1.222.584 RON
TVA 0%Inclus în prețul cerut
Cost total199.663 RON (39.194 €)
Avans (15%)183.388 RON
Cost achitat în prima lună3.005 RON
Costuri cu achiziția13.270 RON
Cost achitat în prima lună3.005 RON
Comision analiză dosar
400 RON - 900 RON
Taxă evaluare imobil(până la)
900 RON
Rata lunară (variabilă)5.446 RON
Asigurare anuală imobil1.223 RON
Arhivă electronică102 RON
Poliță PAD130 RON
Asigurare de viață/lună Costul este variabil. În funcție de banca aleasă, procentul variază între 0.0259% și 0.035% din soldul creditului.
Costuri cu achiziția13.270 RON
Comision agenție Întreabă agenţia
Onorariu notarial9.305 RON
Taxă întabulare OCPI1.834 RON
Autentificare contract credit2.131 RON
Preț de achiziție1.222.584 RON
Preț locuință1.222.584 RON
TVA 0%Inclus în prețul cerut
Preț de achiziție1.222.584 RON
Preț locuință1.222.584 RON
TVA 0%
Inclus în prețul cerut
Avans minim616.386 RON
Credit pe 30 de ani606.198 RON
Cost achitat în prima lună
Taxa evaluare imobil(până la)
900 RON
Rata lunară (variabilă)4.259 RON
Depozit colateral12.777 RON
Comision de garantare FNGCIMM102 RON
Asigurare anuală imobil1.223 RON
Poliță PAD130 RON
Tarif arhivă electronică102 RON
Costuri adiționale1.363 RON + taxe notariale
Asigurare viață și complexă (opțională)Costul este variabil. În funcție de banca aleasă, procentul variază între 0.0259% și 0.035% din soldul creditului
Onorariu notarialconform tarif notarial
Taxă întabulare OCPI1.363 RON
i
Toate valorile de mai sus sunt estimative și nu reprezintă în mod obligatoriu costurile exacte pe care le veți primi de la companiile/instituțiile prin care veți încheia tranzacția.