9

VILA INDIVIDUALA 2026 P+1+M 283 MP,6CAM, MOGOSOAIA STR ARMENEASCA ,PROPRIETAR

399.000 €

Mogoșoaia, Județul Ilfov

Nr. cam.:
6
Sup. utilă:
283 mp
Sup. teren:
460 mp
Tip prop.:
Individuală
  • • Comision 0%
  • • Locație exactă
  • • Proprietate nelocuită
  • • Vizionare prin apel video

Descriere casă

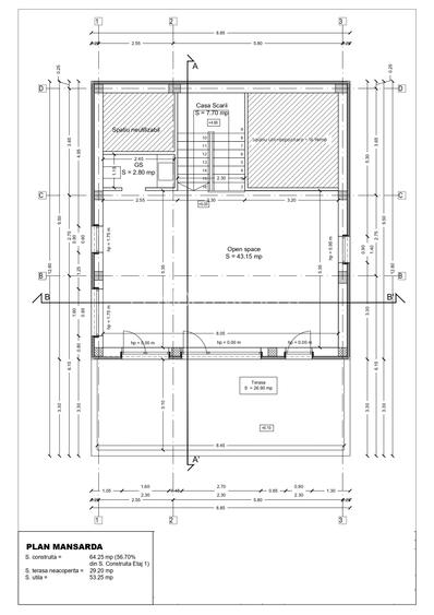
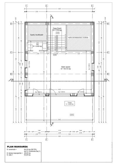
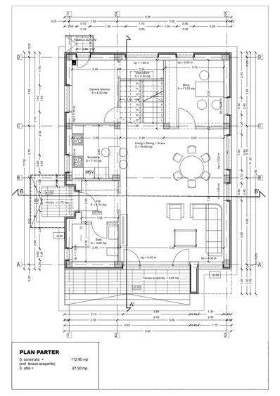
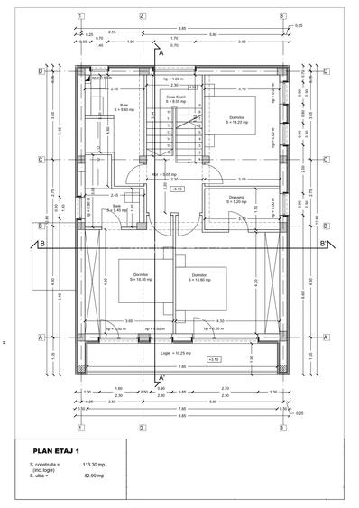
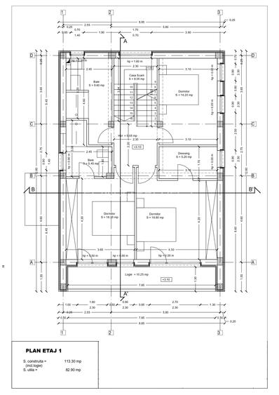
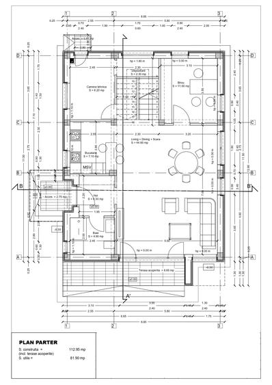
PROPRIETAR O reședință individuala0pentru cele mai rafinate gusturi, situată într-un cartier de excepție, unde arhitectura modernă îmbină perfect funcționalitatea cu luxul. Proiectată după cele mai înalte standarde arhitecturale și tehnice, casa beneficiază de un sistem de climatizare profesional, conform celor mai riguroase norme internaționale. Semnată de dr. arh. Amina Aladhami, în colaborare cu grupul de proiectanți Tieme Italia, această locuință reprezintă rezultatul unei sinergii internaționale între excelență tehnică și viziune estetică. Designul interior poartă semnătura Ioanei Oprescu, absolventă a prestigioasei Bartlett School of Architecture (Londra), al cărei portofoliu amplu reflectă o sensibilitate rafinată și o abordare contemporană a spațiului domestic. Împreună, această echipă internațională a creat un proiect high-end, unde fiecare detaliu transmite eleganță, confort și exclusivitate. Vila este amplasata in Mogosoaia, in apropierea Lacului Mogosoaia, zona Martha Bibescu si Eugen Barbu, pe strada Armeneasca, si beneficiaza de o pozitie privilegiata atat a terenului cat si a casei, din punct de vedere al orientarii fata de punctele cardinale, a dispunerii in cadrul arhitecturii stradale si a pozitionarii fata de casele vecine. Suprafata totala a terenului este de 460mp iar suprafata totala construita a casei este de 320mp. Suprafetele utile ale casei sunt urmatoarele: Parter, 92mp utili, impartiti in: - 2 zone de acces, hol, baie, living + dining + bucatarie, birou, camera tehnica, terasa acoperita Etaj 1, 92.96mp utili, impartiti in: - hol, 3 dormitoare, 2 bai, dressing, loggie Mansarda, 97.52mp utili, impartiti in: - open space cu posibilitate de compartimentare multipla, grup sanitar, terasa Casa beneficiaza de o structura de beton armat (fundatie, plansee, grinzi si stalpi), zidarie exterioara de 30cm executata din caramida marca Porotherm, izolatie termica din polistieren cu o grosime de 15cm, acoperis din material lemnos, izolat cu spuma poliuretanica, folie anticondens si acoperit cu tigla metalica. La interior casa este in totalitate tencuita. Beneficaza de incalzire in pardoselala cu sistem de distributie si pompe de recirculare a agentului termic pe fiecare etaj in parte, marca Tiemme Italia. Tamplaria este de calitate ridicata, marca Salamander Blue Evolution cu geam tripan. Cele doua bunuri imobile (casa si teren) au toate actele necesare si obligatorii din punct de vedere al documentelor de proprietate ale terenului, precum si toate autorizatiile si avizele pentru construire si receptie la finalizarea lucrarilor. Casa este propusa pentru vanzare in doua variante/stadii: Varianta 1, casa nefinisata interior, ce include urmatoarele : - Casa ridicata si finisata complet la exterior, acoperis montat, izolatie acoperis executata, tamplaria cu geam tripan montata, toate instalatiile: electrica, sanitara, scurgeri, termica executate, tencuieli interioare executate. PRET 331800Euro + TVA Varianta 2, casa finisata complet conform unei solutii de amenajare interioara propusa de arhitectii acestei case. Solutia de amenajare interioara se gaseste in acest LINK ; https:// /watch?v=z9IvPxsk33E Tel:
Citește mai mult Citește mai puțin
2 Parcări

Detalii casă

ID anunț: X7P40100C Copiat! 271413160 Copiat!
Actualizat în: 21 Mai 2026
Tip tranzacție: De vânzare prin agent
Suprafață construită: 320 mp
Suprafață desfășurată: 283 mp
Nr. bucătării: 1
Nr. băi: 5
Nr. balcoane / Terase / Logii: 1
Nr. terase: 2
Nr. fronturi stradale: 3
Învelitoare acoperiș: Tabla
An construcție: 2025 (La gri)
Structură rezistență: Beton
Regim înălțime: P+2E+M
Modalitate de plată: Cash sau Credit

Utilități

Destinație
Rezidențial
Comision
0%

Vecinătăți:

Vile Noi, Parcul Mogosoaia, Super market.

Puncte de interes

Școală
school
Scoala generala
Școli aprox. 1267 m
school
Scoala Mogosoaia
Școli aprox. 1275 m
Recreere
sports-ground
Teren sportiv
Terenuri sport aprox. 864 m
park
Domeniul Mogosoaia
Parcuri aprox. 1004 m
restaurant
Restaurant Casa Vanatoreasca
Restaurant aprox. 1377 m
supermarket
MegaImage
Supermarket aprox. 1814 m

Istoricul prețurilor

Acces la informații premium după autentificare
Login Gratuit

Detalii despre preț și costuri

Costuri cu achiziția

Fără credit
Credit ipotecar
Noua casă

i

Costuri adiționale mai puțin știute la achiziție: taxe notariale, comisioane etc.

Acces la informații premium după autentificare
Login Gratuit

Proprietăți similare

Casă individuală cu 6 camere în Mogoșoaia
420.000 €
Județul Ilfov, Mogoșoaia
6 camere
200 mp
500 mp teren
Casă individuală cu 4 camere în Mogoșoaia
369.000 €
Județul Ilfov, Mogoșoaia
4 camere
242 mp
710 mp teren
Casă individuală cu 5 camere în Mogoșoaia
380.000 €
Județul Ilfov, Mogoșoaia
5 camere
120 mp
400 mp teren

Detalii de contact

EL NIDO PROJECT

Administrator

3.67(3 review-uri)

EL NIDO PROJECT

Abonează-te la newsletter să fii primul care primește cele mai noi recomandări de proprietăți și sfaturi de la experți.

CONTACT

Creează alertă

Salvează căutarea ca să primești pe email ultimele anunțuri publicate

Case individuale cu 4+ camere de vânzare în Mogoșoaia, Județul Ilfov