Spațiu medical – laborator analize medicale funcțional – Năvodari

120.000 €

Năvodari, Județul Constanța

Nr. cam.:
5
Sup. utilă:
77 mp
Sup. teren:
200 mp
Tip prop.:
Individuală
  • • Comision 0%
  • • Locație aproximativă

Descriere casă

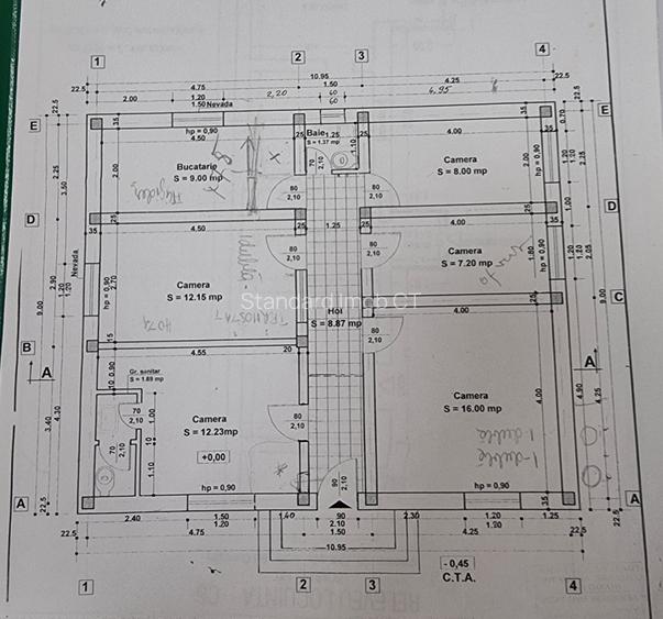
Agenția noastră vă propune spre vânzare un spațiu medical situat în Năvodari, în prezent funcționând ca laborator de analize medicale. Imobilul reprezintă o oportunitate de investiție, existând posibilitatea preluării spațiului împreună cu chiriașul actual, oferind astfel venit imediat din chirie. Compartimentarea și configurația imobilului permit utilizarea acestuia ca locuință personală / spatii comerciale. Detalii proprietate Suprafață utilă: 77 mp, SC 98.50, teren 195 mp compartimentare funcțională pentru activitate medicală/birouri 5 camere: camera 1: 12.23 mp, camera 2: 15.15 mp, camera 3: 8 mp, camera 4: 7.20 mp, camera 5 16 mp 2 grupuri sanitare bucătărie / spațiu tehnic: 9 mp hol central: 8.87 mp curte împrejmuită acces facil din stradă locuri de parcare in zona Compartimentarea permite organizarea optimă pentru activități medicale/birouri: recepție, cabinete, sală de recoltare și spații administrative. Avantaje ✔ spațiu deja utilizat ca laborator de analize medicale ✔ posibilitate preluare cu chiriaș ✔ investiție cu randament imediat ✔ potrivit pentru clinică medicală, laborator analize, spatiu comercial sau locuinta personala. Pentru mai multe detalii și programarea unei vizionări, vă stăm la dispoziție! Vizionarea se poate face doar in weekend!
Citește mai mult Citește mai puțin
Aer condiționat Centrală proprie Renovat Zonă de litoral

Detalii casă

ID anunț: XFLL01000 Copiat! 275293137 Copiat!
Actualizat în: 18 Martie 2026
Suprafață construită: 98.5 mp
Nr. bucătării: 1
Nr. băi: 2
Nr. fronturi stradale: 1
Front stradal: 1406 m
Învelitoare acoperiș: Țiglă
An construcție: Între 1978 și 1990
Structură rezistență: Cărămidă
Regim înălțime: P

Utilități

Destinație
Rezidențial Comercial Birouri
Podele
Linoleum
Ușă intrare
Metal
Uși interior
Celulare
Ferestre cu geam termopan
PVC
Alte spații utile
WC Serviciu
Utilități
Gaze Curent Canalizare Apă
Internet
Cablu
Amenajare străzi
Asfaltate Iluminat stradal Mijloace de transport în comun
Comision
0%

Certificat energetic:

Clasa energetică: A

Puncte de interes

Mijloace transport
train-station
fosta gară Năvodari
Stații tren aprox. 1007 m
bus-station
Navodari
Stații autobuz aprox. 1213 m
train-station
Statia CFR Năvodari
Stații tren aprox. 1251 m
Școală
school
Gr. sc. Lazar Edeleanu
Școli aprox. 144 m
school
Scoala nr1, Navodari
Școli aprox. 174 m
school
Scoala Gimnaziala Tudor Arghezi
Școli aprox. 292 m
school
Scoala Nr. 3
Școli aprox. 308 m
Recreere
restaurant
pizzeria ciresica
Restaurant aprox. 185 m
sports-ground
Teren sportiv
Terenuri sport aprox. 333 m
park
Parc Politie
Parcuri aprox. 384 m
supermarket
Kaufland
Supermarket aprox. 433 m

Detalii despre preț și costuri

Costuri cu achiziția

Fără credit
7.022 RON
Credit ipotecar
8.644 RON
Noua casă
751 RON+ taxe notariale

i

Costuri adiționale mai puțin știute la achiziție: taxe notariale, comisioane etc.

Proprietăți similare

Casă individuală cu 4 camere în Năvodari
120.000 €
Județul Constanța, Năvodari
4 camere
78,6 mp
253 mp teren
Casă individuală cu 5 camere în Năvodari
130.000 €
Județul Constanța, Năvodari
5 camere
102 mp
224 mp teren
Casă individuală cu 4 camere în Năvodari
120.000 €
Județul Constanța, Năvodari
4 camere
78,6 mp
269 mp teren

Detalii de contact

Standard Imob CT

Standard Imob CT Manager

Standard Imob CT

Abonează-te la newsletter să fii primul care primește cele mai noi recomandări de proprietăți și sfaturi de la experți.

CONTACT

Creează alertă

Salvează căutarea ca să primești pe email ultimele anunțuri publicate

Case individuale cu 4+ camere de vânzare în Năvodari, Județul Constanța