1

Vila de vanzare P+2E Navodari , strada Muzicii

280.000 €

Năvodari, Județul Constanța

Nr. cam.:
6
Sup. utilă:
227 mp
Sup. teren:
524 mp
Tip prop.:
Casă individuală
  • • Comision 0%
  • • Locație aproximativă

Descriere casă

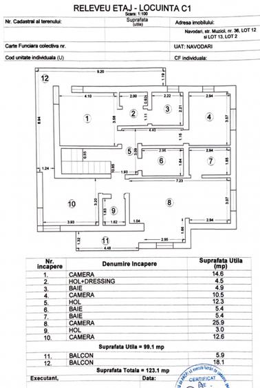
Vila P+2E de vanzare in Navodari, situata aproape de centru, intr-o zona rezidentiala linistita si bine cotata. Proprietatea impresioneaza prin suprafetele generoase si prin potentialul excelent de personalizare, fiind ideala atat pentru o familie numeroasa, cat si pentru investitie. Vila are o suprafata utila de 227 mp, la care se adauga 24 mp pentru 2 balcoane si o terasa spectaculoasa de 136 mp la ultimul nivel, perfecta pentru amenajarea unei zone de relaxare, barbeque sau chiar jacuzzi. Compartimentarea camerelor este decomandata,echilibrata si functionala, incluzand 5 camere, un living spatios, 4 bai si garaj. Terenul are o suprafata de 524 mp si beneficiaza de deschidere pe colt de 22 ml si 23,82 ml, un avantaj important care ofera multiple posibilitati de amenajare a curtii – gradina, piscina sau spatiu verde generos. Proprietatea dispune de toate bransamentele zonei realizate (gaz, apa, electricitate, canalizare) si se vinde la alb, exact cum este prezentata in fotografii, oferind libertatea de a fi finisata si amenajata dupa propriul stil. Pretul de vanzare este de 280.000 euro.
Citește mai mult Citește mai puțin
Acceptă animale de companie 1 Garaj Bine întreținut (Bună) Zonă de litoral

Detalii casă

ID anunț: X4K0110FB Copiat! 275259268 Copiat!
Actualizat în: 15 Mai 2026
Tip tranzacție: De vânzare prin agent
Nr. bucătării: 1
Nr. băi: 4
Nr. balcoane / Terase / Logii: 2
Nr. terase: 1
Suprafață terase: 136 mp
Structură rezistență: data_properties.building_structure.BCA
Regim înălțime: P+2E
Modalitate de plată: Cash sau Credit

Utilități

Ușă intrare
PVC
Izolații termice
Exterior
Ferestre cu geam termopan
PVC
Contorizare
Apometre Contor gaz
Utilități
Curent Apă Gaze CATV
Internet
Fibră optică
Amenajare străzi
Asfaltate Iluminat stradal Mijloace de transport în comun
Comision
0%

Certificat energetic:

Clasa energetică: A

Puncte de interes

Mijloace transport
bus-station
Navodari
Stații autobuz aprox. 1311 m
train-station
Statia CFR Năvodari
Stații tren aprox. 1350 m
train-station
fosta gară Năvodari
Stații tren aprox. 1636 m
Școală
school
Scoala Gimnaziala Tudor Arghezi
Școli aprox. 802 m
school
Scoala Nr. 3
Școli aprox. 811 m
school
Gr. sc. Lazar Edeleanu
Școli aprox. 884 m
school
Scoala nr1, Navodari
Școli aprox. 1016 m
Recreere
sports-ground
Teren sportiv
Terenuri sport aprox. 562 m
park
Parcul Ion Dobre
Parcuri aprox. 595 m
restaurant
Diandra
Restaurant aprox. 744 m
supermarket
Kaufland
Supermarket aprox. 1133 m

Detalii despre preț și costuri

Costuri cu achiziția

Fără credit
Credit ipotecar
Noua casă

i

Costuri adiționale mai puțin știute la achiziție: taxe notariale, comisioane etc.

Acces la informații premium după autentificare
Login Gratuit

Proprietăți similare

Casă individuală cu 6 camere în Central
280.000 €
Constanța, Central
6 camere
141 mp
119 mp teren
Casă individuală cu 6 camere în Eforie Nord
305.000 €
Județul Constanța, Eforie Nord
6 camere
210 mp
445 mp teren
Casă individuală cu 5 camere în Năvodari
280.000 €
Județul Constanța, Năvodari
5 camere
179,65 mp
461 mp teren

Detalii de contact

Tomis Top Estate

Viorel Ciangaru Broker Owner

4.80(4 review-uri)

Tomis Top Estate
PRO

Abonează-te la newsletter să fii primul care primește cele mai noi recomandări de proprietăți și sfaturi de la experți.

CONTACT

Creează alertă

Salvează căutarea ca să primești pe email ultimele anunțuri publicate

Case individuale cu 4+ camere de vânzare în Năvodari, Județul Constanța