2

Casa 4 camere 140mp | 0 comision | Otopeni Traian Vuia

360.000 €

Otopeni, Județul Ilfov

Nr. cam.:
4
Sup. utilă:
140 mp
Sup. teren:
370 mp
Tip prop.:
Individuală
  • • Comision 0%
  • • Locație exactă

Descriere casă

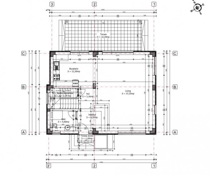
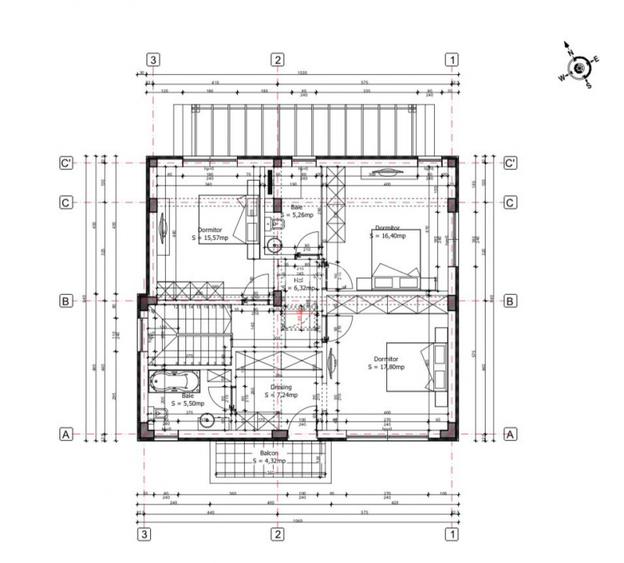
0 Comision. Nu se adauga TVA. Va oferim spre achizitie fara comision o casa individuala noua, superba, cu finisaje si dotari premium. Casa are 4 camere si 140 mp. Casa este localizata in Otopeni pe strada Traian Vuia. Termenul estimat de finalizare: Primavara 2026. Asa cum v-am obisnuit: - toate ofertele Monga Imobiliare sunt fara comision din partea cumparatorului - pentru ca iubim transparenta, toate preturile afisate de Monga Imobiliare includ TVA (daca se aplica). Pretul afisat de noi este intotdeauna pretul final pe care il vei achita. Acceseaza Monga Imobiliare (Monga RO) pentru mai mai multe poze si pentru intreg portofoliul nostru de case si apartamente din Otopeni, Tunari, Balotesti, Corbeanca, Pipera si chiar nordul Bucurestiului. Punctele forte al acestei case sunt numeroase: suprafetele foarte generoase, si locatia in apropiere de transport in comun, Lid, Mega Image, restaurante. In apropiere urmeaza sa se amenajeze un nou parc si un centru educational de stat. Despre spatiu: La parter, accesul se face intr-un vestibul cu spatiu pentru haine. De aici se acceseaza o baie si holul principal. De aici se pot accesa un spati de depozitare, scarile catre etaj si zona de living-dining cu bucatarie deschisa foarte spatioasa (50mp). La etaj avem un dormitor matrimonial cu dressing si baie proprie, inca doua dormitoare si o baie. Utilitati - casa se vinde conectata la toate utilitatile - centrala termica cu incalzire prin pardoseala Despre constructie: - structura si plansee din beton armat Despre locatie: - strada asfaltata - in apropiere Mega, Lidl, Penny, restaurante, spatii comerciale - scoli si gradinite in apropiere de stat si private - zona adiacenta, strada Carpati, va gazdui in curand un nou parc si spatii educationale - transport in comun in apropiere cu acces si catre o viitoare statie de metrou Va asteptam la vizionare pentru a descoperi toate aceste detalii si multe altele ale acestei proprietati. Apeleaza cu incredere la Monga Imobiliare. Suntem alaturi de tine pana la finalizarea tranzactiei si te ajutam sa treci cu incredere si in cunostinta de cauza prin toti pasii necesari. Te putem ajuta in pregatirea documentelor, selectia notarului, obtinerea finantarii, si altele. Te asteptam sa ne contactezi.
Citește mai mult Citește mai puțin
Centrală proprie Încălzire prin pardoseală 2 Parcări

Detalii casă

ID anunț: XFHP1106O Copiat! 274204599 Copiat!
Actualizat în: 19 Februarie 2026
Nr. bucătării: 1
Nr. băi: 3
Nr. balcoane / Terase / Logii: 1
Nr. terase: 1
An construcție: 2026 (Finalizată)
Structură rezistență: Beton
Regim înălțime: P

Utilități

Utilități
Curent Apă Canalizare Gaze
Amenajare străzi
Asfaltate

Disponibilitate proprietate:

imediat

Puncte de interes

Mijloace transport
airport
Aeroportul International Henri Coanda (OTP)
Aeroporturi aprox. 1394 m
airport
Aeroportul Internațional Henri Coandă București (Otopeni)
Aeroporturi aprox. 1482 m
bus-station
Aeroport Henri Coanda Sosiri
Stații autobuz aprox. 1945 m
Școală
kindergarten
Gradinita numarul 1
Gradinițe aprox. 1475 m
school
Liceul Teoretic Ioan Petrus - Corp 2
Școli aprox. 1992 m
Recreere
supermarket
Mega Image Otopeni-Tunari
Supermarket aprox. 264 m
sports-ground
Teren sportiv
Terenuri sport aprox. 1189 m
park
Rond Primaria Otopeni
Parcuri aprox. 1837 m
bar
Espressamente Illy
Bar aprox. 1880 m

Detalii despre preț și costuri

Costuri cu achiziția

Fără credit
15.261 RON
Credit ipotecar
17.902 RON
Noua casă
1.975 RON+ taxe notariale

i

Costuri adiționale mai puțin știute la achiziție: taxe notariale, comisioane etc.

Proprietăți recomandate

Detalii de contact

MONGA

Razvan Ceapa Managing Partner

5.00(3 review-uri)

MONGA
PRO

Abonează-te la newsletter să fii primul care primește cele mai noi recomandări de proprietăți și sfaturi de la experți.

CONTACT

Creează alertă

Salvează căutarea ca să primești pe email ultimele anunțuri publicate

Case individuale cu 4+ camere de vânzare în Otopeni, Județul Ilfov