OMNIA | Case premium P+1+M | Zona 23 August Otopeni | Ansamblu nou exclusiv |

299.000 €

Otopeni, Județul Ilfov

Nr. cam.:
5
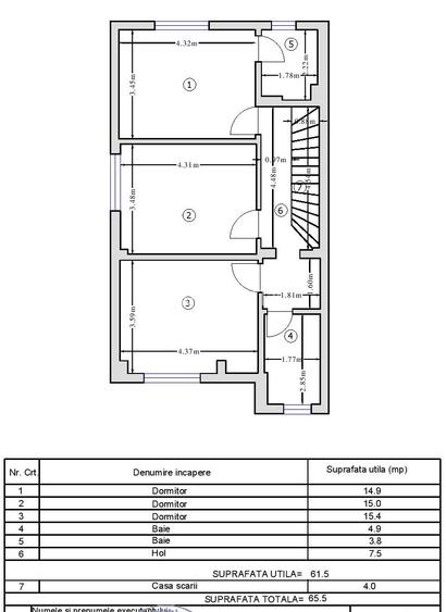
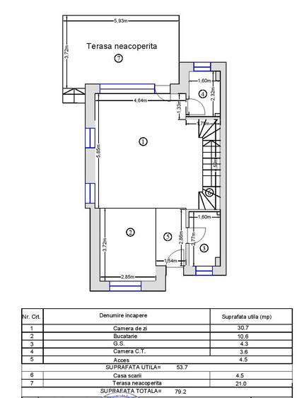
Sup. utilă:
172 mp
Sup. teren:
300 mp
Tip prop.:
Individuală
  • • Comision 0%
  • • Locație aproximativă

Descriere casă

”OMNIA – proprietăți alese”, vă prezintă un ansamblu tip boutique de locuințe individuale cuplate, situat în zona 23 August din Otopeni – una dintre cele mai dinamice și apreciate zone rezidențiale din nordul Capitalei. Beneficiază de conectivitate excelentă, cu acces rapid către Tunari, centrul orașului Otopeni și Șoseaua de Centură București, fiind în același timp aproape de centre comerciale importante, școli și grădinițe. Ansamblul este amplasat stradal, pe o arteră largă, oferind acces facil, spațiu și o senzație aerisită – un avantaj rar întâlnit în noile dezvoltări. Concept & beneficii: - Ansamblu restrâns, cu caracter exclusiv; - Arhitectură modernă, elegantă; - Suprafață utilă generoasă, organizată pe parter + etaj + mansardă; - Spații interioare luminoase, bine proporționate; - Materiale de construcție premium și execuție la standarde înalte; - Compartimentare ideală pentru viața de familie și work-from-home. Proiectul oferă o atmosferă contemporană de tip urban-village, într-o comunitate selectă, formată în ultimii ani din familii tinere și active, care au ales nordul pentru echilibrul dintre liniște, spațiu și acces rapid către oraș. Proprietatea se adresează celor care caută o locuință, dar si o investiție sigură într-o zonă cu dezvoltare accelerată și potențial ridicat de apreciere. ”OMNIA – Proprietăți Alese”: Selectăm proprietăți care reflectă valoare, calitate și poziționare premium.
Citește mai mult Citește mai puțin
Centrală proprie Încălzire prin pardoseală 2 Parcări Renovat

Detalii casă

ID anunț: X41601038 Copiat! 275087307 Copiat!
Actualizat în: 24 Februarie 2026
Nr. bucătării: 1
Nr. băi: 4
Nr. terase: 1
Suprafață terase: 21 mp
Nr. fronturi stradale: 1
Învelitoare acoperiș: Tabla
An construcție: 2025 (Finalizată)
Structură rezistență: Beton
Regim înălțime: P+1E+M

Utilități

Pereți
Faianță Vopsea lavabilă
Podele
Gresie Parchet
Ușă intrare
Metal
Uși interior
Celulare
Izolații termice
Exterior
Ferestre cu geam termopan
PVC
Alte spații utile
WC Serviciu
Utilități
Gaze Curent Canalizare Apă
Internet
Fibră optică
Amenajare străzi
Asfaltate Iluminat stradal Mijloace de transport în comun
Comision
0%

Certificat energetic:

Clasa energetică: A

Vecinătăți:

Mega Image, Penny, Kaufland, restaurante, cafenele, magazine, etc.

Puncte de interes

Mijloace transport
airport
Aeroportul International Henri Coanda (OTP)
Aeroporturi aprox. 1853 m
airport
Aeroportul Internațional Henri Coandă București (Otopeni)
Aeroporturi aprox. 1943 m
train-station
Gara Otopeni
Stații tren aprox. 1984 m
Școală
kindergarten
Gradinita numarul 1
Gradinițe aprox. 1614 m
Recreere
supermarket
Mega Image Otopeni-Tunari
Supermarket aprox. 412 m
sports-ground
Teren sportiv
Terenuri sport aprox. 1741 m

Detalii despre preț și costuri

Costuri cu achiziția

Fără credit
13.169 RON
Credit ipotecar
15.551 RON
Noua casă
1.664 RON+ taxe notariale

i

Costuri adiționale mai puțin știute la achiziție: taxe notariale, comisioane etc.

Proprietăți similare

Casă individuală cu 4 camere în Central
320.000 €
Județul Ilfov, Otopeni
4 camere
150 mp
350 mp teren
Casă individuală cu 4 camere în Central
299.000 € + TVA
Județul Ilfov, Otopeni
4 camere
120 mp
354 mp teren
Casă individuală cu 5 camere în Central
300.000 €
Județul Ilfov, Otopeni
5 camere
180 mp
210 mp teren

Detalii de contact

OMNIA CITY

RADU BONDOCU Manager

OMNIA CITY
PRO

Abonează-te la newsletter să fii primul care primește cele mai noi recomandări de proprietăți și sfaturi de la experți.

CONTACT

Creează alertă

Salvează căutarea ca să primești pe email ultimele anunțuri publicate

Case individuale cu 4+ camere de vânzare în Otopeni, Județul Ilfov