44

OMNIA-Proprietati alese! Casa individuala. Zona verde, langa padure. Ultima.

225.000 €

Otopeni, Județul Ilfov

Nr. cam.:
4
Sup. utilă:
117 mp
Sup. teren:
292 mp
Tip prop.:
Individuală
  • • Comision 0%
  • • Locație aproximativă

Descriere casă

Acolo unde sunt aceste case este padure, natura, inca nu este invinsa 100%. De om. Este vizibila si incantatoare. Emotie. Sunt trei case. Doar trei case...iar in capatul strazii, verdele copacilor, iti aduce aminte ca vrei, poți si locuiesti pe Pamant. (Update... a mai ramas o singura casa, predare la sfarsitul verii 2025) Parcul dendrologic de la Ana Aslan-Institutul Ana Aslan- e un beneficiu evident si te poti bucura de el. Esti privilegiat. Usor accesibil, din DN1, pe strazile Valea Pasarii, Constantin Noica sau Drumul Garii Odaii, drumul pana acasa, poate fi o placere si nu te pune deloc la incercare. Cu aeroportul in apropiere, dorul de vacante mai lungi sau mai scurte, poate fi mai usor domolit. _________________________________________________________________________________________________________ Gata cu povestea, as putea sa scriu mai mult, dar cred ca esti interesat de casa si nu vreau sa-ti pun rabdarea șa incercare. Trei case. Cum am spus. Individuale. Cu teren de 300 mp. Parter si etaj. Ferestre de mansarda. La bai. Noaptea cu cer instelat. Din pat. Zona de zi larga, spatioasa. Are baie, are hol. Bucatarie inchisa. Living mare, cu iesire pe terasa. Suprafetele sunt in planuri. Etajul. Splendid. Suficient. Eficient. Somn usor, priveliste minunata. Curtea va fi amenajata. Cu gazon. Verde, ca albastru nu mai avem. Dezvoltatorul, pasionat, dedicat. Cu experienta. Specializat in amenajari interioare. Atent. Pretentios. Serios, volubil si empatic. Hai sa vezi casele. Daca te identifici cu locul, daca iti vor fi suficiente spatiile, de restul se va ocupa casa. Te va cuceri. Are si cu ce. P.S. despre materiale, despre constructie sau despre finisaje, in sectiunea ”alte detalii” sau la cerere, pe email sau whatsapp. Asta, ca sa nu mai pierzi timpul, sunt multe de spus si ....poate vrei sa vii sa vezi casa. Te astept. Sunt Radu Bondocu, locuiesc in Otopeni si imi ocup timpul vanzand proprietati. Bineinteles...alese. De tine.
Citește mai mult Citește mai puțin
Grădină Curte Centrală proprie Încălzire prin pardoseală 2 Parcări

Detalii casă

ID anunț: X4160102A Copiat! 211673332 Copiat!
Actualizat în: 20 Februarie 2026
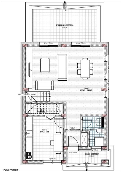
Suprafață construită: 80 mp
Suprafață desfășurată: 140 mp
Nr. bucătării: 1
Nr. băi: 3
Nr. terase: 1
Suprafață terase: 16 mp
Front stradal: 13 m
Învelitoare acoperiș: Tabla
An construcție: 2024 (În construcție)
Structură rezistență: Beton
Regim înălțime: P+1E

Utilități

Destinație
Rezidențial
Pereți
Faianță Vopsea lavabilă
Podele
Parchet Gresie
Ușă intrare
Metal
Uși interior
Celulare
Izolații termice
Exterior
Ferestre cu geam termopan
PVC
Contorizare
Contor gaz
Facilități imobil
Acoperiș
Utilități
Curent Apă Fosa septică Gaze
Internet
Fibră optică
Amenajare străzi
Asfaltate Pietruite
Comision
0%

Certificat energetic:

Clasa energetică: A

Vecinătăți:

INSTITUTUL ANA ASLAN, Therme, etc.

Alte detalii despre preț:

Pretul afisat, este pentru casa finisata integral. Pentru varianta ”la alb”, pretul este de 165000 eur.

Disponibilitate proprietate:

2024.

Puncte de interes

Mijloace transport
bus-station
RATB Aeroport Otopeni Terminal Plecări
Stații autobuz aprox. 1405 m
bus-station
Aeroport Henri Coanda Plecari
Stații autobuz aprox. 1405 m
bus-station
Aeroportul Otopeni-Henri Coanda (OTP)
Stații autobuz aprox. 1508 m
bus-station
Aeroport Henri Coanda Sosiri
Stații autobuz aprox. 1600 m
Recreere
supermarket
Supermarket
Supermarket aprox. 398 m
sports-ground
Teren sportiv
Terenuri sport aprox. 461 m
restaurant
Biker's Club
Restaurant aprox. 500 m
park
Padurea Petresti
Parcuri aprox. 998 m

Detalii despre preț și costuri

Costuri cu achiziția

Fără credit
10.624 RON
Credit ipotecar
12.691 RON
Noua casă
1.286 RON+ taxe notariale

i

Costuri adiționale mai puțin știute la achiziție: taxe notariale, comisioane etc.

Proprietăți recomandate

Detalii de contact

OMNIA CITY

RADU BONDOCU Manager

OMNIA CITY
PRO

Abonează-te la newsletter să fii primul care primește cele mai noi recomandări de proprietăți și sfaturi de la experți.

CONTACT

Creează alertă

Salvează căutarea ca să primești pe email ultimele anunțuri publicate

Case individuale cu 4+ camere de vânzare în Otopeni, Județul Ilfov