10

OMNIA- Case individuale. Faza II. Proiect deosebit. Spatioasă, zona centrala.

265.000 €

Otopeni, Județul Ilfov

Nr. cam.:
4
Sup. utilă:
125 mp
Sup. teren:
240 mp
Tip prop.:
Individuală
  • • Comision 0%
  • • Locație aproximativă
  • • Vizionare prin apel video

Descriere casă

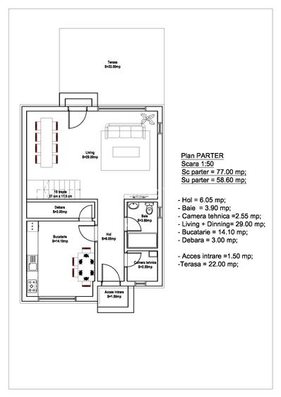
Casă individuala. Ca să stralucesti! De fericire..... Cum asa? Simplu. Odai. Cartier cochet, cu oameni buni si plin de farmec. Magazine, sunt. Gradinite, sunt. Energie, este. Si... ceva mai multa natura. Nu doar beton. Metrou, in curand. Accesibiltate ridicata. Case si prea putine blocuri. Acum. Casa individuala. Asa ne dorim... Care sa ofere spatiu, lumina, siguranta, confort si bucurie. Într-un complex rezidential, bine situat, am inceput sa construim aceste case. Dupa un proiect bine studiat. Nu sunt camere mici, nu sunt ferestre mici, nu este o gradina mica. Este adevarat, totul este gandit sa iti aduca, tot ce poate fi necesar și....incă putin in plus. Casa are, la parter, tot ce iti doresti. Living aerisit, cu iesire pe terasa. Ferestrele largi, amplifica senzatia de spatiu si lasa lumina naturala sa patrunda nestingherita. Bucataria, bine dimensionata si inchisa. Studiul nostru: 80% din cumparatori, doresc acest lucru. Camara de depozitare. Camera tehnica, cu loc pentru centrala, masina de spalat si uscator. Grup sanitar la parter. Etajul. Spatiu pentru toata familia. Trei dormitoare, doua bai, ingrediente pentru o reteta care nu da gres. Dormitor matrimonial cu baie si dressing. Pod. Peste etaj, placa din beton si acces catre un pod...excelent ca spatiu de depozitare. Curtea, nu este mica, nici foarte mare, insa e suficienta, spatiul liber in lateral si terasa din spate, bine intimizate fata de vecini. Loc pentru relaxare, vise si incantare. Pretul. Ei aici intervine serotonina...sau ma rog, orice alt hormon care determina fericirea. Iti creste pulsul, nu? Orice alta casa la acest pret, este cuplata, este duplex, este apartament, sau nu este ... Daca te-ai dezmeticit, te pot asigura, ca visul frumos poate continua. Hai la o vizionare, hai sa vezi cum se construiesc, hai sa vezi unde este cartierul. Hai sa vezi dezvoltatorul si ce a mai construit. Sigur, vei avea o experienta placuta, iar noi iti punem la dispozitie sansa sa cumperi una dintre cele 6 case ce vor avea acest pret. Si nu...nu e Black Friday, e doar anuntul pentru casa ta. Individuala. Cu fericire inclusa!
Citește mai mult Citește mai puțin
Grădină Curte Centrală proprie Încălzire prin pardoseală 2 Parcări

Detalii casă

ID anunț: X4160102V Copiat! 271743501 Copiat!
Actualizat în: 07 Mai 2026
Tip tranzacție: De vânzare prin agent
Suprafață construită: 100 mp
Suprafață desfășurată: 180 mp
Nr. bucătării: 1
Nr. băi: 3
Nr. terase: 1
Suprafață terase: 22 mp
Nr. fronturi stradale: 1
Învelitoare acoperiș: Tabla
Structură rezistență: Beton
Regim înălțime: P+1E
Modalitate de plată: Cash sau Credit

Utilități

Destinație
Rezidențial
Pereți
Faianță Vopsea lavabilă
Podele
Marmură Parchet
Ușă intrare
Metal
Uși interior
Celulare
Izolații termice
Exterior
Ferestre cu geam termopan
PVC
Contorizare
Contor gaz Apometre
Diverse
Scară interioară
Alte spații utile
Dressing Spațiu depozitare
Facilități imobil
Acoperiș
Utilități
CATV Fosa septică Curent Apă
Internet
Fibră optică
Amenajare străzi
Asfaltate Iluminat stradal Mijloace de transport în comun
Comision
0%

Vecinătăți:

Penny MArket Odai

Puncte de interes

Mijloace transport
bus-station
Statia Sat Odai, linia 304
Stații autobuz aprox. 1094 m
bus-station
Statia Amco, linia 783
Stații autobuz aprox. 1167 m
bus-station
Statia I.C.S.I.M, linia 304
Stații autobuz aprox. 1274 m
bus-station
Statia Pasaj Otopeni, linia 149,304
Stații autobuz aprox. 1370 m
Școală
kindergarten
Gradinita cu program prelungit nr. 2 Otopeni
Gradinițe aprox. 702 m
university
Academia Națională de Informații "Mihai Viteazul"
Universități aprox. 1472 m
school
Liceul Teoretic Ioan Petrus - Corp 1
Școli aprox. 1733 m
school
Liceul Teoretic Ioan Petrus - Corp 2
Școli aprox. 1767 m
Recreere
restaurant
Complexul Ambasad'Or
Restaurant aprox. 667 m
sports-ground
Teren sportiv
Terenuri sport aprox. 746 m
park
La Lac
Parcuri aprox. 1746 m
sports-ground
Teren sportiv
Terenuri sport aprox. 1837 m

Istoricul prețurilor

Acces la informații premium după autentificare
Login Gratuit

Detalii despre preț și costuri

Costuri cu achiziția

Fără credit
Credit ipotecar
Noua casă

i

Costuri adiționale mai puțin știute la achiziție: taxe notariale, comisioane etc.

Acces la informații premium după autentificare
Login Gratuit

Proprietăți similare

Casă individuală cu 4 camere în Odăi
264.990 €
Județul Ilfov, Otopeni
4 camere
125 mp
250 mp teren
Casă individuală cu 4 camere în Odăi
279.000 €
Județul Ilfov, Otopeni
4 camere
130 mp
320 mp teren
Casă individuală cu 5 camere în Est
255.000 €
Județul Ilfov, Otopeni
5 camere
135 mp
300 mp teren

Detalii de contact

OMNIA CITY

RADU BONDOCU Manager

OMNIA CITY
PRO

Abonează-te la newsletter să fii primul care primește cele mai noi recomandări de proprietăți și sfaturi de la experți.

CONTACT

Creează alertă

Salvează căutarea ca să primești pe email ultimele anunțuri publicate

Case individuale cu 4+ camere de vânzare în Otopeni, Județul Ilfov