10

Casa de vanzare P+M - Comuna Pantelimon/str. Rascoalei

149.000 €

Pantelimon, Județul Ilfov

Nr. cam.:
3
Sup. utilă:
176,4 mp
Sup. teren:
345 mp
Tip prop.:
Individuală
  • • Comision 0%
  • • Exclusivitate
  • • Locație exactă

Descriere casă

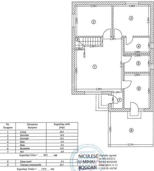
Va oferim spre vanzare o casa pe o strada linistita din Comuna Pantelimon, reper strada Rascoalei. DESCRIERE: An constructie 2025 P+M Suprafata utila 176.4 mp. Suprafata totala 204.4 mp. Amprenta la sol 110 mp. Suprafata teren 345 mp. PARTER: living 30.3 mp , Doua dormitoare 14.9 mp. si 15.2 mp., Doua bai 5.5 mp. si 6.0 mp., Hol 2.6 mp., Casa scarii 3.3 mp. , Terasa 20.7 mp. MANSARDA: Open space - 89.9 mp., Casa scarii 4.0 mp. ID: CP2884417 PRET: 149.000 Euro Comision 0 % Tel.:
Citește mai mult Citește mai puțin
Calorifere

Detalii casă

ID anunț: XBKM1104J Copiat! 275395272 Copiat!
Actualizat în: 02 Aprilie 2026
Tip tranzacție: De vânzare prin agent
Suprafață construită: 110 mp
Suprafață desfășurată: 204.4 mp
Nr. bucătării: 1
Nr. băi: 2
Suprafață terase: 20.7 mp
Învelitoare acoperiș: Tabla
An construcție: 2025 (Finalizată)
Structură rezistență: Cărămidă
Regim înălțime: P+M
Modalitate de plată: Cash sau Credit

Utilități

Izolații termice
Exterior Interior
Ferestre cu geam termopan
PVC
Utilități
Curent Apă Canalizare CATV Gaze Telefon
Internet
Cablu
Amenajare străzi
Iluminat stradal Mijloace de transport în comun Asfaltate
Comision
0%

Disponibilitate proprietate:

Imediat

Puncte de interes

Școală
school
Scoala Generala cu cls. I-VIII nr. 2- Voluntari
Școli aprox. 571 m
kindergarten
Gradinita nr. 1 Voluntari
Gradinițe aprox. 725 m
school
Scoala elementara
Școli aprox. 771 m
kindergarten
Primaria veche
Gradinițe aprox. 1305 m
Recreere
restaurant
Restaurant Chinezesc
Restaurant aprox. 529 m
park
Park-Cartier Negro-Pontes (en)
Parcuri aprox. 625 m
supermarket
METRO Voluntari
Supermarket aprox. 708 m
sports-ground
Teren sportiv
Terenuri sport aprox. 1545 m

Detalii despre preț și costuri

Costuri cu achiziția

Fără credit
Credit ipotecar
Noua casă

i

Costuri adiționale mai puțin știute la achiziție: taxe notariale, comisioane etc.

Acces la informații premium după autentificare
Login Gratuit

Proprietăți similare

Casă individuală cu 4 camere în Est
147.500 €
Județul Ilfov, Pantelimon
4 camere
130 mp
346 mp teren
Casă individuală cu 4 camere în Pantelimon
154.880 €
Județul Ilfov, Pantelimon
4 camere
85 mp
364 mp teren
Casă individuală cu 4 camere în Est
159.000 €
Județul Ilfov, Pantelimon
4 camere
100 mp
345 mp teren

Detalii de contact

REALPLUS ESTATES

Neoland RealPlus Estates Manager

4.08(4 review-uri)

REALPLUS ESTATES
PRO

Abonează-te la newsletter să fii primul care primește cele mai noi recomandări de proprietăți și sfaturi de la experți.

CONTACT

Creează alertă

Salvează căutarea ca să primești pe email ultimele anunțuri publicate

Case individuale cu 3 camere de vânzare în Pantelimon, Județul Ilfov