Vand vila in Pitesti, Cartier Gavana

399.000 €

Găvana, Pitești

Nr. cam.:
9
Sup. utilă:
450 mp
Sup. teren:
985 mp
Tip prop.:
Individuală
  • • Locație exactă

Descriere casă

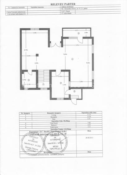
Vand vila in Pitesti, cartier Gavana, situata intr-o zona linistita. Este construita pe un teren de 985 mp, cu deschidere de 19 m si are amprenta la sol de 144 mp. Constructia are demisol, parter, etaj si mansarda. Suprafata construita e de 660 mp si utila de 450 mp. Dispune de 7 dormitoare, un living de 77 mp, o bucatarie, 4 bai si 5 balcoane. este pretabila si pentru gradinita, azil sau after school
Citește mai mult Citește mai puțin
Mobilat Mobilat Grădină Calorifere Centrală proprie Beci 2 Parcări 2 Garaje Bine întreținut (Bună)

Detalii casă

ID anunț: X08L01000 Copiat! 275167042 Copiat!
Actualizat în: 02 Martie 2026
Suprafață construită: 144 mp
Suprafață desfășurată: 660 mp
Nr. bucătării: 2
Nr. băi: 4
Nr. balcoane / Terase / Logii: 5
Nr. terase: 5
Nr. fronturi stradale: 1
Învelitoare acoperiș: Tabla
Structură rezistență: Beton
Regim înălțime: D+P+2E+M

Utilități

Ușă intrare
Metal
Uși interior
Panel
Ferestre cu geam termopan
PVC
Contorizare
Contor gaz Apometre
Bucătărie
Mobilată
Utilități
Gaze Telefon Curent Canalizare Apă
Internet
Fibră optică
Amenajare străzi
Asfaltate
Comision
2 la suta%

Certificat energetic:

Clasa energetică: B

Puncte de interes

Mijloace transport
bus-station
Statia Puturosilor
Stații autobuz aprox. 894 m
bus-station
Kaufland
Stații autobuz aprox. 1011 m
bus-station
Autogara Nord
Stații autobuz aprox. 1015 m
bus-station
Pitesti Nord
Stații autobuz aprox. 1727 m
Școală
school
Liceul Sanitar
Școli aprox. 321 m
school
Liceul Sanitar
Școli aprox. 451 m
school
Scoala Generala nr. 6 Pitesti
Școli aprox. 823 m
school
Scoala Postliceala Carol Davila
Școli aprox. 835 m
Recreere
restaurant
Casa Radulescu
Restaurant aprox. 296 m
park
Parc
Parcuri aprox. 423 m
supermarket
Supermarket Jam Gavana
Supermarket aprox. 456 m
sports-ground
Teren sportiv
Terenuri sport aprox. 779 m

Detalii despre preț și costuri

Costuri cu achiziția

Fără credit
16.594 RON
Credit ipotecar
19.400 RON
Noua casă
2.172 RON+ taxe notariale

i

Costuri adiționale mai puțin știute la achiziție: taxe notariale, comisioane etc.

Proprietăți recomandate

Detalii de contact

Agentia Imobiliara JOHN & CO

Administrator Administrator

Agentia Imobiliara JOHN & CO
PRO

Abonează-te la newsletter să fii primul care primește cele mai noi recomandări de proprietăți și sfaturi de la experți.

CONTACT

Creează alertă

Salvează căutarea ca să primești pe email ultimele anunțuri publicate

Case individuale cu 4+ camere de vânzare în zona Găvana, Pitești