[PRIMARIE] Vila individuala | 5 camere - 3 bai | Teren 300 mp

300.000 €

Popești-Leordeni, Județul Ilfov

Nr. cam.:
5
Sup. utilă:
118,3 mp
Sup. teren:
300 mp
Tip prop.:
Individuală
  • • Comision 0%
  • • Locație aproximativă
  • • Vizionare prin apel video

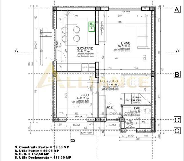
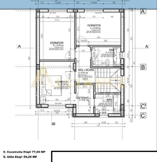
Descriere casă

Alliance Rezidential va ofera spre vanzare o vila individuala in Popesti Leordeni, la aproximativ 500 metri de primaria orasului . Aceasta face parte dintr-un ansamblu de 3 locuinte si dipune de o suprafata utila totala aproximativa de 118.3 mp . Teren aferent : aproximativ 300 mp . Compartimentare : - PARTER : • Bucătărie închisă ; • Living luminos ; • Birou ; • Baie . - ETAJ 1 : • Dormitor matrimonial – 12 mp și baie proprie ; • Dormitor 2 ; • Dormitor 3 ; • Baie principală . Casa se vinde la cheie cu toate finisajele incluse : Centrala proprie, Încălzire prin pardoseală, Tâmplărie PVC Salamander cu geamuri tripan, utilitati (canalizare, apa curenta, gaze, electricitate, fibra optica) . Facilitati in zona : Mijloace de transport in comun ( STB 440,441,480 ), Primarie, Oficiul postal, Sectie politie, scoli - gradinite ( nr.2 - Ioan Badescu ), Mega Image, Banci, Farmacii, etc. Pret vanzare : 300.000 euro, TVA inclus . Se accepta orice modalitate de plata : Credit Cash Imagini cu caracter informativ de la un proiect identic din comuna Berceni . Pentru mai multe detalii si vizionari ma puteti apela la
0729.**** Vezi tot numărul
Alexandru Radu
Citește mai mult Citește mai puțin
Centrală proprie 1 Parcare

Detalii casă

ID anunț: XCSE018H6 Copiat! 275177725 Copiat!
Actualizat în: 03 Martie 2026
Suprafață construită: 118.3 mp
Suprafață desfășurată: 118.3 mp
Nr. bucătării: 1
Nr. băi: 3
Învelitoare acoperiș: Țiglă
An construcție: 2026 (La roșu)
Structură rezistență: Cărămidă
Etaj: Etaj 1 / 1
Regim înălțime: P+1E

Utilități

Destinație
Rezidențial
Pereți
Faianță Vopsea lavabilă Var Humă
Podele
Parchet Gresie
Ușă intrare
Metal
Uși interior
Celulare
Izolații termice
Exterior
Ferestre cu geam termopan
PVC
Utilități
Apă Curent Gaze
Internet
Cablu Fibră optică Wireless
Amenajare străzi
Asfaltate
Comision
0%

Certificat energetic:

Clasa energetică: A

Vecinătăți:

Supermarket, Banca, Autobuz

Puncte de interes

Mijloace transport
bus-station
Prestige
Stații autobuz aprox. 928 m
bus-station
Viilor
Stații autobuz aprox. 931 m
tram-station
ROMPRIM
Stații tramvai aprox. 1614 m
tram-station
ROMPRIM
Stații tramvai aprox. 1681 m
Școală
school
Scoala nr. 2
Școli aprox. 490 m
school
Scoala cu clasele I-VIII nr. 2
Școli aprox. 490 m
school
Scoala nr. 1
Școli aprox. 602 m
school
Liceul Teoretic Radu Popescu
Școli aprox. 628 m
Recreere
park
Parc
Parcuri aprox. 258 m
supermarket
Mega Image
Supermarket aprox. 310 m
restaurant
Casa Teca
Restaurant aprox. 372 m
sports-ground
Teren sportiv
Terenuri sport aprox. 644 m

Detalii despre preț și costuri

Costuri cu achiziția

Fără credit
13.197 RON
Credit ipotecar
15.583 RON
Noua casă
1.668 RON+ taxe notariale

i

Costuri adiționale mai puțin știute la achiziție: taxe notariale, comisioane etc.

Proprietăți similare

Casă individuală cu 5 camere în Central
310.000 €
Județul Ilfov, Popești-Leordeni
5 camere
150 mp
566 mp teren
Casă individuală cu 5 camere în Central
299.000 €
Județul Ilfov, Popești-Leordeni
5 camere
149 mp
140 mp teren
Casă individuală cu 4 camere în Central
270.000 €
Județul Ilfov, Popești-Leordeni
4 camere
100 mp
170 mp teren

Detalii de contact

ALLIANCE REZIDENTIAL IMOBILIARE

Alexandru Radu Consilier Imobiliar

ALLIANCE REZIDENTIAL IMOBILIARE
PRO

Abonează-te la newsletter să fii primul care primește cele mai noi recomandări de proprietăți și sfaturi de la experți.

CONTACT

Creează alertă

Salvează căutarea ca să primești pe email ultimele anunțuri publicate

Case individuale cu 4+ camere de vânzare în Popești-Leordeni, Județul Ilfov