Proprietate specială | Investiție turistică premium sau casă de vacanță de excepție - Valea Zânelor – Porumbacu de Sus, într-una dintre cele mai căutate zone turistice din România
La doar 2 km de celebrul Castel de Lut și Povestea Calendarului, cu acces rapid către Munții Făgăraș, Cascada Bâlea, Cabana Bâlea Lac, Pensiunea & Restaurant Albota – o locație cu poveste, vizibilitate și potențial turistic ridicat
CASĂ / CABANĂ modernă tip A-Frame – arhitectură spectaculoasă
Proiectată de designer, predată la stadiul SEMIFINISAT PREMIUM, oferind libertatea de a personaliza finisajele și sistemul termic după propriul concept.
Înălțime impresionantă ~ 11 m
Vitraje ample, lumină naturală din abundență
Priveliști de vis către natură și lanțul muntos
Liniște, intimitate și conexiune autentică cu peisajul montan
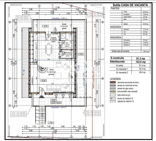
Compartimentare – 3 niveluri funcționale
Parter – 71 mp utili
• Living + bucătărie tip Great Room (62 mp, pe toată înălțimea cabanei)
• Baie – 6 mp
• Spațiu tehnic – 3 mp
Terasă spectaculoasă pe 3 laturi – 52 mp
Etaj 1 – 27,8 mp
• Dormitor – 17,8 mp
• Toaletă serviciu + hol
Etaj 2 – 29,4 mp
• 2 dormitoare (12,6 mp fiecare)
• Hol
• Acces prin scară interioară elicoidală + scară clasică
Subsol – ~150 mp | POTENȚIAL EXCELENT SPA & RELAXARE
Înălțimi între 1,7 – 4 m, ideal pentru:
piscină interioară, saună, jacuzzi
zonă wellness & fitness
salon mic dejun / dining
cinema, gaming, relaxare
(spațiul este pe sol natural – necesită placă de beton pentru finalizare)
Anexă – Foișor 6×4 m
Construcție solidă din beton și cărămidă, termo- și hidroizolată
ideal pentru Tiny House, mansardare sau spațiu tehnic (centrală / pompă de căldură)
Dotări & detalii premium
Încălzire în pardoseală pe toată suprafața
Izolație superioară: vată minerală 20 cm + folie Isover
Structură solidă: stâlpi beton, acoperiș ranforsat
Tâmplărie aluminiu ALUMIL
Fațadă STO WERK, vopsea Opticrill Premium
Șemineu premium Kratki cu horn personalizat Tondach Inspira
Spațiul tehnic este pregătit pentru: centrală pe peleți, GPL, electric sau pompă de căldură
Curte generoasă cu deschidere 40 m la drum
Posibilitate amplasare 3–4 Tiny Houses / căsuțe de camping
ideal pentru micro-complex turistic într-o zonă cu cerere constantă
Unele imagini cu idei de amenajare interioara/finisaje, tiny house, sunt cu titlu de prezentare!
2026: Un avantaj major pentru viitorul proprietar: balustradele interioare și gresia de exterior sunt deja comandate. Acest lucru elimină din start stresul logistic, timpul pierdut cu selecția furnizorilor și, cel mai important, protejează investitorul de fluctuațiile de preț ale materialelor de construcție. Preiei un proiect cu bugetul de finisare deja securizat.
Sibiu Estate – Casa ta, povestea noastră
Sediul central - Timișoara
Bulevardul Victor Babeș nr. 2, 300230, Timișoara, România
Tel: +40.374.40.44.98 / Fax: +40.256.401.179
Email: suport@imobiliare.ro
Luni - Vineri 08:00 - 20:00
Punct de lucru - București: Iride Business Park, Bld. Dimitrie
Pompeiu 9-9A, Clădirea B2B,
020335, Sector 2, București, România
CONTACT
Sediul central - Timișoara
Bulevardul Victor Babeș nr. 2, 300230, Timișoara, România
Tel: +40.374.40.44.98 / Fax: +40.256.401.179
Email: suport@imobiliare.ro
Luni - Vineri 08:00 - 20:00
Punct de lucru - București: Iride Business Park, Bld. Dimitrie
Pompeiu 9-9A, Clădirea B2B,
020335, Sector 2, București, România
Sună acum și cere detalii sau programează o vizionare.
Cere detalii prin email
*
*
*
*
Înainte să pleci...
Ești sigur că ai văzut și aceste proprietăți?
225.000 €
Județul Sibiu, Porumbacu de Sus
8 camere
110 mp
1.180 mp teren
165.000 €
Județul Sibiu, Avrig
4 camere
125 mp
600 mp teren
225.000 €
Județul Sibiu, Porumbacu de Sus
7 camere
310 mp
1.180 mp teren
72.500 €
Județul Sibiu, Porumbacu de Sus
4 camere
80 mp
1.650 mp teren
280.000 €
Județul Sibiu, Avrig
4 camere
143 mp
1.108 mp teren
284.999 €
Județul Sibiu, Porumbacu de Sus
8 camere
284 mp
575 mp teren
Creează alertă
Salvează căutarea ca să primești pe email ultimele anunțuri publicate
Case individuale cu 4+ camere de vânzare în Porumbacu de Sus, Județul Sibiu
Cere detalii prin email
*
*
*
*
Detaliile tale de contact vor fi partajate cu Sibiu Estate
Preț total926.176 RON (181.681 €)
Costuri cu achiziția9.082 RON
Preț de achiziție917.094 RON
Costuri cu achiziția9.082 RON
Comision agenție Întreabă agenţia
Onorariu notarial7.706 RON
Taxă înscriere OCPI1.376 RON
Preț de achiziție917.094 RON
Preț locuință917.094 RON
TVA 0%Inclus în prețul cerut
Cost total151.222 RON (29.664 €)
Avans (15%)137.564 RON
Cost achitat în prima lună2.699 RON
Costuri cu achiziția10.959 RON
Cost achitat în prima lună2.699 RON
Comision analiză dosar
400 RON - 900 RON
Taxă evaluare imobil(până la)
900 RON
Rata lunară (variabilă)4.085 RON
Asigurare anuală imobil917 RON
Arhivă electronică102 RON
Poliță PAD130 RON
Asigurare de viață/lună Costul este variabil. În funcție de banca aleasă, procentul variază între 0.0259% și 0.035% din soldul creditului.
Costuri cu achiziția10.959 RON
Comision agenție Întreabă agenţia
Onorariu notarial7.706 RON
Taxă întabulare OCPI1.376 RON
Autentificare contract credit1.877 RON
Preț de achiziție917.094 RON
Preț locuință917.094 RON
TVA 0%Inclus în prețul cerut
Preț de achiziție917.094 RON
Preț locuință917.094 RON
TVA 0%
Inclus în prețul cerut
Avans minim310.456 RON
Credit pe 30 de ani606.638 RON
Cost achitat în prima lună
Taxa evaluare imobil(până la)
900 RON
Rata lunară (variabilă)4.262 RON
Depozit colateral12.786 RON
Comision de garantare FNGCIMM76 RON
Asigurare anuală imobil917 RON
Poliță PAD130 RON
Tarif arhivă electronică102 RON
Costuri adiționale1.057 RON + taxe notariale
Asigurare viață și complexă (opțională)Costul este variabil. În funcție de banca aleasă, procentul variază între 0.0259% și 0.035% din soldul creditului
Onorariu notarialconform tarif notarial
Taxă întabulare OCPI1.057 RON
i
Toate valorile de mai sus sunt estimative și nu reprezintă în mod obligatoriu costurile exacte pe care le veți primi de la companiile/instituțiile prin care veți încheia tranzacția.