Proiect nou, 6 case individuale, Cluj,Radaia

214.170 €

Rădaia, Județul Cluj

Nr. cam.:
4
Sup. utilă:
120 mp
Sup. teren:
600 mp
Tip prop.:
Casă individuală
  • • Locație aproximativă

Descriere casă

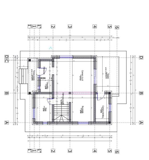
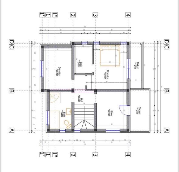
Vă propunem spre vânzare într-un proiect nou de case individuale cu o suprafață utilă de cca 120 mp utili situate pe un teren cu o suprafață între 600 și 650mp. Casele dispun de P+E, oferind la parter livingul deschis împreună cu bucătărie, baie, hol, cameră tehnică și la etaj avem 3 dormitoare o baie la comun și unul din dormitoare este cu baie proprie. Complexul de case este situat într-o zonă ușor circulată, oferind liniște. Pentru mai multe detalii nu ezitați să ne contactați telefonic. La prețul afișat se adaugă tva!!! Id extern: P123059
Citește mai mult Citește mai puțin
Centrală proprie Încălzire prin pardoseală 2 Parcări Bine întreținut (Bună)

Detalii casă

ID anunț: XFUS110AB Copiat! 275384379 Copiat!
Actualizat în: 31 Mai 2026
Tip tranzacție: De vânzare prin agent
Suprafață construită: 150 mp
Nr. bucătării: 1
Nr. băi: 2
Nr. balcoane / Terase / Logii: 1
Nr. terase: 1
An construcție: 2025 (În construcție)
Structură rezistență: Cărămidă
Regim înălțime: P+1E
Modalitate de plată: Cash sau Credit

Utilități

Ușă intrare
PVC
Izolații termice
Exterior
Ferestre cu geam termopan
PVC PVC
Utilități
Curent Apă Canalizare
Comision
2.3%

Puncte de interes

Mijloace transport
bus-station
Gara Suceag
Stații autobuz aprox. 589 m
Școală
school
Scoala cu clasele I_VIII Suceagu
Școli aprox. 1650 m
school
Scoala
Școli aprox. 1682 m
school
Gradinita Suceagu
Școli aprox. 1691 m
Recreere
restaurant
Hotel Sun Garden
Restaurant aprox. 1967 m

Detalii despre preț și costuri

Costuri cu achiziția

Fără credit
Credit ipotecar
Noua casă

i

Costuri adiționale mai puțin știute la achiziție: taxe notariale, comisioane etc.

Acces la informații premium după autentificare
Login Gratuit

Proprietăți similare

Casă individuală cu 4 camere în Jucu
159.500 €
Județul Cluj, Jucu
4 camere
107 mp
900 mp teren
Casă individuală cu 3 camere în Gheorghieni
185.000 €
Județul Cluj, Gheorghieni
3 camere
85 mp
1.563 mp teren
Casă individuală cu 5 camere în Câmpenești
175.000 €
Județul Cluj, Câmpenești
5 camere
115 mp
976 mp teren

Detalii de contact

GREEN CASA IMOBILIARE

Coman Claudiu Master Broker

GREEN CASA IMOBILIARE
PRO

Abonează-te la newsletter să fii primul care primește cele mai noi recomandări de proprietăți și sfaturi de la experți.

CONTACT

Creează alertă

Salvează căutarea ca să primești pe email ultimele anunțuri publicate

Case individuale cu 4+ camere de vânzare în Rădaia, Județul Cluj