Complex turistic complet funcțional | Piscină, restaurant, 1.800 m

1.650.000 €

Rășinari, Județul Sibiu

Nr. cam.:
33
Sup. utilă:
1.300 mp
Sup. teren:
3.200 mp
Tip prop.:
Individuală
  • • Comision 0%
  • • Exclusivitate
  • • Locație exactă

Descriere casă

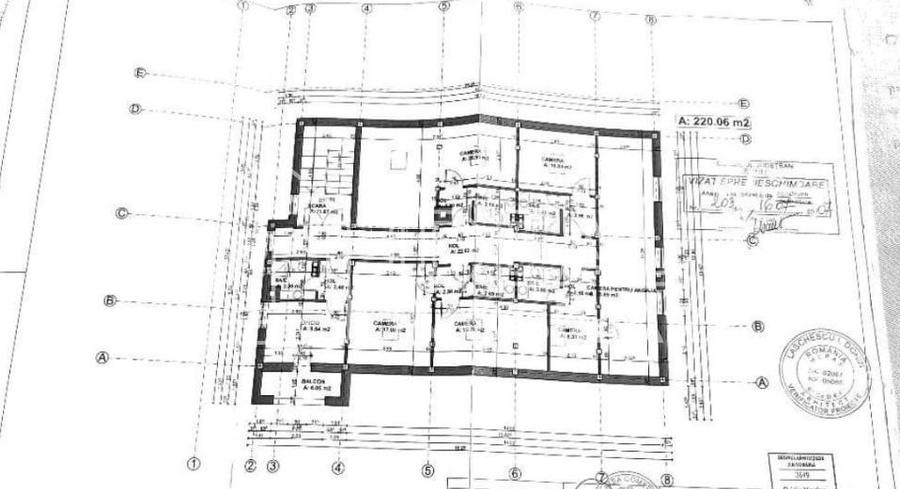
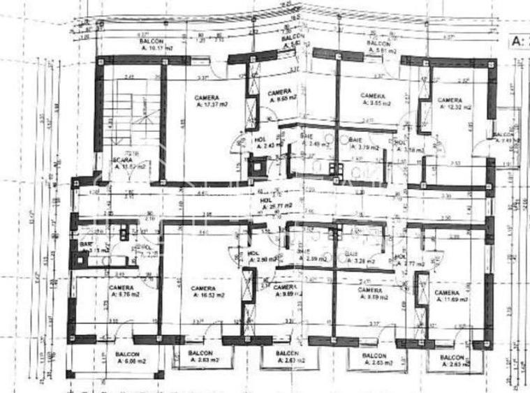
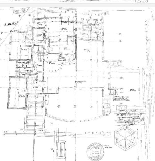
Vă propunem spre vânzare o proprietate turistică de mari dimensiuni, ideală pentru pensiune, hotel boutique, centru de evenimente sau azil de bătrâni, amplasată pe un teren generos de 3.200 mp, cu o suprafață construită de aproximativ 1.800 mp. Structură și compartimentare: -10 apartamente compuse din 2 camere și baie proprie; -9 camere cu baie proprie; -3 camere triple (câte una pe fiecare nivel) -6 camere duble Ea este structurata astfel: Demisol: sală de biliard și ping-pong, sală de conferințe, grup sanitar (2 toalete), pivnita/spatiu de depozitare, spalatorie cu uscatorie, camera tehnica, depozite(spatii de depozitare) si toalete de personal, o incapere mare/spatiu depozitare; Parter: hol de acces, receptie, restaurant cu acces pe terasa; bucatarie complet amenajata( camera frigorifica) cu iesiri pentru aprovizionare, toalete, camera centralei:; Etaj 1: 3 apartamente a cate doua camere si baie proprie, 2 camere duble cu baie, si o camera tripla cu baie, 2 terase mari, cu acces din fiecare incapere, si un balcon; Etaj 2: 3 apartamente a cate doua camere si baie proprie, 2 camere duble cu baie, si o camera tripla cu baie, balcoane, (un apartament nu are acces la balcon) Etaj 3: 3 apartamente a cate doua camere si baie proprie, 2 camere duble cu baie, si o camera tripla cu baie, balcoane (o camera tripla nu are acces la balcon); Mansardă formată din: 3 camere cu baie proprie, un apartament cu doua camere si baie, cameră dedicată personalului cu baie; Facilități și dotări: Restaurant cu bucătărie complet utilată Cameră frigorifică Piscină exterioară (8,5 m x 4,5 m) cu sistem de încălzire prin panouri solare 52 panouri fotovoltaice – 25 kW Post trafo propriu – 62 kW Stație de epurare Apă din sistem forat / fântână Încălzire pe lemne și peleți Construcție solidă din cărămidă cu cadre de beton Acoperiș din tablă Autorizații și funcționalitate: Autorizații PSI Autorizație pentru senzori de fum Clarificare și prezență pe platforme turistice: Infoturist Booking Destinație multiplă: Proprietatea este pretabilă pentru azil de bătrâni, centru de recuperare, pensiune turistică sau unitate mixtă (cazare + evenimente), având infrastructura și autorizațiile necesare pentru funcționare imediată. Preț de vânzare: 1.650.000 € Telefon: Mariana
Citește mai mult Citește mai puțin
Mobilat Lux Grădină Piscină Calorifere Centrală proprie 15 Parcări Zonă de deal / munte Zonă rurală

Detalii casă

ID anunț: XBM4110CG Copiat! 274776518 Copiat!
Actualizat în: 13 Martie 2026
Tip tranzacție: De vânzare prin agent
Suprafață construită: 500 mp
Suprafață desfășurată: 1800 mp
Nr. bucătării: 1
Nr. băi: 27
Nr. balcoane / Terase / Logii: 15
Nr. terase: 2
Suprafață terase: 100 mp
Front stradal: 40.0 m
An construcție: 2007 (Finalizată)
Structură rezistență: Beton
Modalitate de plată: Cash sau Credit

Utilități

Pereți
Faianță Vopsea lavabilă
Podele
Parchet
Ușă intrare
Metal
Uși interior
Lemn
Izolații termice
Exterior
Contorizare
Apometre Contor căldură Contor gaz
Bucătărie
Mobilată Utilată
Electrocasnice
Frigider Hotă Mașină de spălat Mașină spălat vase TV
Diverse
Scară interioară Șemineu Sistem de alarmă
Alte spații utile
Dressing
Facilități imobil
Acoperiș Piscină exterioară Spații agrement
Utilități
Curent Apă Canalizare CATV Gaze Telefon
Internet
Cablu Wireless
Amenajare străzi
Iluminat stradal Mijloace de transport în comun Asfaltate
Comision
0%

Disponibilitate proprietate:

Imediat

Puncte de interes

Mijloace transport
bus-station
Rasinari
Stații autobuz aprox. 1027 m

Proprietăți similare

Casă individuală cu 30 camere în Orașul de Jos
1.589.000 €
Sibiu, Orașul de Jos
30 camere
880 mp
1.010 mp teren
Casă individuală cu 10 camere în Central
1.700.000 €
Sibiu, Central
10 camere
1.285 mp
600 mp teren
Casă individuală cu 3 camere în Ultracentral
1.699.000 €
Sibiu, Ultracentral
3 camere
370 mp
200 mp teren

Detalii de contact

Ideal Imobiliare Sibiu

Mariana Bozesan Broker imobiliar

Ideal Imobiliare Sibiu
PRO

Abonează-te la newsletter să fii primul care primește cele mai noi recomandări de proprietăți și sfaturi de la experți.

CONTACT

Creează alertă

Salvează căutarea ca să primești pe email ultimele anunțuri publicate

Case individuale cu 4+ camere de vânzare în Rășinari, Județul Sibiu