0% COM Casa individuala pe parter | Recas

135.000 €

Recaș, Județul Timiș

Nr. cam.:
4
Sup. utilă:
87 mp
Sup. teren:
351 mp
Tip prop.:
Individuală
  • • Comision 0%
  • • Exclusivitate
  • • Locație aproximativă

Descriere casă

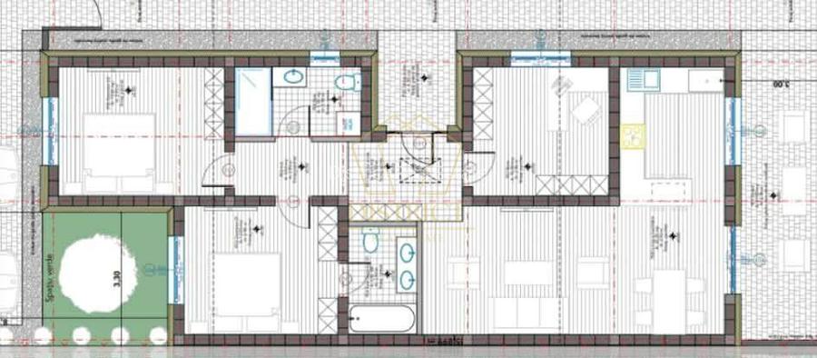
District Real Estate va prezinta spre vanzare 2 case individuale in Recas, mai exact pe strada Uranus. Casele se afla intr-o zona linistita, in plina dezvoltare si se preteaza unei familii cu 1-2 copii. In prezent se lucreaza la case si vor fi predate la cheie anul acesta. Casa se desfasoara pe o suprafata utila de 87 mp și este amplasata pe un teren de 351mp. Confortul termic se realizeaza prin pardoseala, cu ajutorul centralei proprii. Compartimentarea se prezinta astfel: - Hol intrare - Living open-space cu bucataria - Dormitor 1 cu baie proprie - Dormitor 2 - Dormitor 3 - Baie cu cada si geam - Terasa - Pod Mai multe detalii: - Clasa energetica A! - Izolatie exterioara cu polistiren 15cm - Constructie din caramida - Acoperis cu tigla - Incalzire in pardoseala - Utilitati: Apa, curent, gaz, canalizare, fibra optica, drum pietruit, iluminat stradal. Pretul este de 135.000 euro la cheie! Oferim consultanta si solutii financiare in vederea obtinerii unui credit imobiliar avantajos, cu ajutorul colaboratorilor nostri. Pentru vizionari si alte detalii va stam la dispozitie.
Citește mai mult Citește mai puțin
Nemobilat Curte Centrală proprie Încălzire prin pardoseală 3 Parcări

Detalii casă

ID anunț: XD7L111IC Copiat! 275231371 Copiat!
Actualizat în: 09 Martie 2026
Suprafață desfășurată: 150 mp
Nr. bucătării: 1
Nr. băi: 2
Nr. terase: 1
Învelitoare acoperiș: Țiglă
An construcție: 2026 (În construcție)
Structură rezistență: Cărămidă

Utilități

Pereți
Faianță Vopsea lavabilă
Podele
Gresie Parchet
Ușă intrare
PVC
Uși interior
Celulare
Izolații termice
Exterior
Ferestre cu geam termopan
PVC
Contorizare
Apometre Contor gaz
Facilități imobil
Acoperiș
Utilități
Curent Apă Canalizare CATV Fosa septică Gaze
Amenajare străzi
Pietruite
Comision
0%

Certificat energetic:

Clasa energetică: A

Disponibilitate proprietate:

Imediat

Puncte de interes

Mijloace transport
tram-station
Bulevardul Sudului
Stații tramvai aprox. 237 m
tram-station
Statie B-dul Sudului Tv9
Stații tramvai aprox. 290 m
trolleybus-station
Statie B-dul Sudului T16
Stații troleibuz aprox. 318 m
bus-station
Hotel Lido
Stații autobuz aprox. 328 m
Școală
kindergarten
Gradinita Program Prelungit Nr. 28
Gradinițe aprox. 570 m
school
Liceul Waldorf - atelier practic
Școli aprox. 573 m
kindergarten
Gradinita nr. 11
Gradinițe aprox. 700 m
university
Centrul de Igiena U.M.F.
Universități aprox. 1453 m
Recreere
sports-ground
Teren sportiv
Terenuri sport aprox. 62 m
park
Helios Sport Club
Parcuri aprox. 71 m
supermarket
Billa
Supermarket aprox. 365 m
public-square
Piata Aron Cotrus
Piețe publice aprox. 1350 m

Detalii despre preț și costuri

Costuri cu achiziția

Fără credit
7.539 RON
Credit ipotecar
9.225 RON
Noua casă
828 RON+ taxe notariale

i

Costuri adiționale mai puțin știute la achiziție: taxe notariale, comisioane etc.

Proprietăți similare

Casă individuală cu 4 camere în Sânmihaiu Român
135.000 €
Județul Timiș, Sânmihaiu Român
4 camere
96 mp
400 mp teren
Casă individuală cu 4 camere în Fabric
144.900 €
Timișoara, Fabric
4 camere
145 mp
542 mp teren
Casă individuală cu 4 camere în Giroc
130.000 €
Județul Timiș, Giroc
4 camere
145 mp
592 mp teren

Detalii de contact

District Real Estate

Leonard Leucuta Consultant Imobiliar

District Real Estate
PRO

Abonează-te la newsletter să fii primul care primește cele mai noi recomandări de proprietăți și sfaturi de la experți.

CONTACT

Creează alertă

Salvează căutarea ca să primești pe email ultimele anunțuri publicate

Case individuale cu 4+ camere de vânzare în Recaș, Județul Timiș