3

1/2 Duplex Sacalaz P+E,4Camere,2 Bai,Proiect Modern

185.000 €

Săcălaz, Județul Timiș

Nr. cam.:
4
Sup. utilă:
101 mp
Sup. teren:
300 mp
Tip prop.:
Individuală
  • • Locație aproximativă

Descriere casă

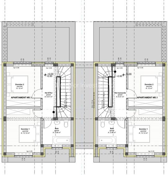
1/2 Duplex Sacalaz,cu Regim de Inaltime Parter+Etaj , Termen de Finalizare luna Martie 2026 - suprafata construita / utila de 148/101 mp cu o terasa acoperita de 10 mp plus o terasa neacoperita 20mp - teren de 300 mp cu Front Stradal de 10m - detalii constructive : ziduri exterioare si interioare din caramida porotherm, termoizolata exterior,polistiren de 10 cm, placa beton,acoperis terasa . - compartimentare: - parter : hol acces, bucatarie cu living open space,un dormitor/birou,o baie,camera tehnica, terasa acoperita =etaj : Hol acces, 2 Dormitoare,o Baie,Terasa Neacoperita e, loc de - detalii AMENAJARE interioara : parchet laminat, gresie, faianta, ferestre cu tamplarie PVC si geam Tripan usa PVC la intrare, usi interioare noi, vopsea lavabila, corpuri sanitare noi, incalzire pardoseala - CENTRALA termica PROPRIE Detalii suplimentare : teren imprejmuit, poarta acces auto si poarta acces pietonal, acoperis tip terasa - dispune de urmatoarele utilitatI (apa retea, gaz, fosa septica, curent), drumul de acces fiind pietruit Detalii pret : Pretul solicitat de proprietar este de 185.000 Euro la Cheie + (Comision Agentie) Se accepta si varianta de achizitionare prin intermediul unui credit bancar. Time for Investment a luat nastere din dorinta de a te ajuta sa-ti gasesti locuinta mult dorita si pentru ati fi alaturi pe tot parcursul de achizitie. Suntem o echipa tanara, dinamica dar si eficienta. Experienta ne permite sa facem lucrurile putin altfel oferind servicii complete, si ne ajuta sa ne regasim in cele sase criterii care ne definesc munca 1.Promptitudine Stim cat de important este timpul, suntem la dispozitia ta in cel mai scurt timp. 2.Atentia la detalii -Suntem atenti la criteriile clientului si le comparam cu piata actuala 3.Eficienta -Vizionam doar proprietatiile pliabile clientului 4.Baza de date Completa -Informam constant clientul in legatura cu ofertele din baza de date proprie si actualizata 5.Profesionalism - Oferim consultanta juridica, financiar bancara si va punem la dispozitie toate elementele tehnice 6.Suntem alaturi pana la final -Va impunem la primarie cat si la utilitati (gaz,curent) If youre planing to Invest, Call us… And we’ll do the rest !!!
Citește mai mult Citește mai puțin
Nemobilat Grădină Curte Centrală proprie Încălzire prin pardoseală 3 Parcări

Detalii casă

ID anunț: XCE4110AS Copiat! 271469305 Copiat!
Actualizat în: 12 Mai 2026
Tip tranzacție: De vânzare prin agent
Suprafață construită: 90 mp
Suprafață desfășurată: 148 mp
Nr. bucătării: 1
Nr. băi: 2
Nr. terase: 2
Suprafață terase: 20 mp
Front stradal: 10.0 m
An construcție: 2025 (Finalizată)
Structură rezistență: Cărămidă
Modalitate de plată: Cash sau Credit

Utilități

Pereți
Faianță Vopsea lavabilă
Podele
Gresie Parchet
Ușă intrare
PVC
Uși interior
Celulare
Izolații termice
Exterior
Contorizare
Apometre Contor gaz
Electrocasnice
TV
Diverse
Scară interioară
Facilități imobil
Acoperiș
Utilități
Curent Apă Canalizare CATV Fosa septică Gaze Telefon
Internet
Cablu Wireless
Amenajare străzi
Iluminat stradal Mijloace de transport în comun Asfaltate
Comision
standard

Vecinătăți:

Shopping:
-Profi,Lidl
Educatie:
-Scoala Gimnaziala Sacalaz, Scoala I-VIII Beregsau Mare
-Gradinita Sacalaz
Spatii recreere:
-Parcul Sacalaz
Autobuze:
-M43

Disponibilitate proprietate:

Martie 2026

Puncte de interes

Mijloace transport
bus-station
Sacalaz
Stații autobuz aprox. 508 m
Școală
school
Scoala Gimnaziala Sacalaz
Școli aprox. 590 m
Recreere
supermarket
Profi Loco
Supermarket aprox. 526 m
sports-ground
Teren sportiv
Terenuri sport aprox. 646 m
sports-ground
Teren sportiv
Terenuri sport aprox. 677 m
park
Parc
Parcuri aprox. 717 m

Istoricul prețurilor

Acces la informații premium după autentificare
Login Gratuit

Detalii despre preț și costuri

Costuri cu achiziția

Fără credit
Credit ipotecar
Noua casă

i

Costuri adiționale mai puțin știute la achiziție: taxe notariale, comisioane etc.

Acces la informații premium după autentificare
Login Gratuit

Proprietăți similare

Casă individuală cu 5 camere în Săcălaz
177.990 €
Județul Timiș, Săcălaz
5 camere
140 mp
501 mp teren
Casă individuală cu 4 camere în Săcălaz
188.000 €
Județul Timiș, Săcălaz
4 camere
110 mp
502 mp teren
Casă individuală cu 7 camere în Săcălaz
179.000 €
Județul Timiș, Săcălaz
7 camere
370 mp
911 mp teren

Detalii de contact

Time For Investment

Andrei Porumb Consultant Imobiliar

Time For Investment
PRO

Abonează-te la newsletter să fii primul care primește cele mai noi recomandări de proprietăți și sfaturi de la experți.

Feedback apel

CONTACT

Creează alertă

Salvează căutarea ca să primești pe email ultimele anunțuri publicate

Case individuale cu 4+ camere de vânzare în Săcălaz, Județul Timiș