LOCALIZARE:
Acest imobil este situat in Brasov, in zona Dambul Morii.
COMPARTIMENTARE:
Cu regim de inaltime P+E+M, vila este impartita cadastral in 3 apartamente, avand urmatoarea compartimentare:
APARTAMENT 1 (PARTER), are destinatia de birouri, avand acces separat:
- holul de acces;
- doua birouri;
- bucatarie;
- baie, dotata cu aerisire naturala si cabina de dus;
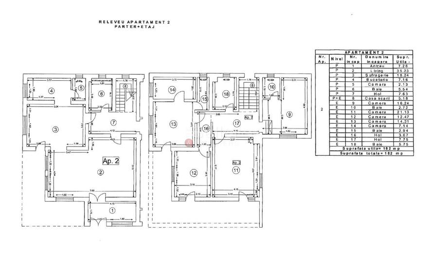
APARTAMENT 2, este inclus in circuitul turistic, avand toate avizele necesare, precum si certificat de clasificare cu 3 stele:
PARTER:
- holul de acces;
- living-ul, care se intinde pe o suprafata generoasa, avand acces la zona de dining;
- bucataria, aceasta fiind mobilata si dotata integral;
- zona depozitare alimente;
- baia, cu aerisire naturala si cabina de dus;
ETAJ:
Alocat zonei de noapte, acesta detine:
- 4 dormitoare, 2 dintre ele cu baie proprie, iar celelalte fiind deservite de o baia ce este amplasata pe hol, toate avand acces la terasa;
- terasa generoasa, cu o priveliste deosebita spre Masivul Postavarul si Vf. Piatra Mare;
APARTAMENT 3 (MANSARDA), cu acces separat este compus din:
- holul de acces;
- 2 dormitoare, ambele beneficiind de acces la terasa;
- baia, cu aerisire naturala si cada;
- o camera de zi, ce poate fi folosita ca spatiu de relaxare si hobby;
- bucataria, mobilata si dotata complet, in aceasta fiind integrata si o camara;
- terasa generoasa, cu o priveliste deosebita spre Masivul Postavarul si Vf. Piatra Mare;
DETALII TEHNICE:
- constructie realizata pe cadre din beton armat, din caramida, cu termosistem BCA;
- acoperiș țiglă Bramac;
- centrala termica pe lemne 96 kw;
- centrala termica pe gaz 40 kw, Viesmann Vitodens 100;
- vase stocare A.R 1800 L;
- sistem dedurizator apă;
- puț forat la 70 m;
- fosă septică 6000l.
DOTARI:
- curte cu perisagistica realizata, cu loc de joaca pentru copii, avand o suprafata de 576 mp;
- zona de barbeque;
- magazie de lemne;
- parcare pavata in curte, pentru aproximativ 4-5 masini;
Tranzactionarea proprietatii se va face cu mobilierul aferent prezentei ofertari.
Aceasta proprietate poate fi achizitionata atat pentru locuinta, cat si in scop investitional, aceasta fiind deja introdusa in circuitul turistic.
IMPREJURIMI:
Imobilul este situat intr-o zona retrasa de vile, la doar 15 minute distanta de Centrul Vechi al Brasovului.
FORMA ACHIZITIONARE: Se accepta plata prin accesare credit.
NOTA:
Informatiile prezentate reflecta situatia reala a proprietatii, fara a constitui o oferta contractuala.
Aceste date au fost obtinute verbal, de la titularul de drept al imobilului.
Structura acestei prezentari nu poate fi reprodusa, fara acordul scris al The Seller and Partners.
Citește mai mult
Citește mai puțin
Mobilat Mobilat
Curte
Calorifere
Centrală proprie
5 Parcări
Zonă de deal / munte
Sediul central - Timișoara
Bulevardul Victor Babeș nr. 2, 300230, Timișoara, România
Tel: +40.374.40.44.98 / Fax: +40.256.401.179
Email: suport@imobiliare.ro
Luni - Vineri 08:00 - 20:00
Punct de lucru - București: Iride Business Park, Bld. Dimitrie
Pompeiu 9-9A, Clădirea B2B,
020335, Sector 2, București, România
CONTACT
Sediul central - Timișoara
Bulevardul Victor Babeș nr. 2, 300230, Timișoara, România
Tel: +40.374.40.44.98 / Fax: +40.256.401.179
Email: suport@imobiliare.ro
Luni - Vineri 08:00 - 20:00
Punct de lucru - București: Iride Business Park, Bld. Dimitrie
Pompeiu 9-9A, Clădirea B2B,
020335, Sector 2, București, România
Sună acum și cere detalii sau programează o vizionare.
Nu rata ocazia să afli mai multe!
Sună acum și cere detalii sau programează o vizionare.
Cere detalii prin email
*
*
*
*
Înainte să pleci...
Ești sigur că ai văzut și aceste proprietăți?
510.000 €
Județul Brașov, Săcele
10 camere
322 mp
796 mp teren
539.000 €
Județul Brașov, Săcele
8 camere
321,99 mp
630 mp teren
299.000 €
Județul Brașov, Săcele
4 camere
186 mp
800 mp teren
575.000 €
Județul Brașov, Săcele
5 camere
240 mp
577 mp teren
355.000 €
Județul Brașov, Săcele
5 camere
195 mp
700 mp teren
365.000 €
Județul Brașov, Săcele
4 camere
240 mp
960 mp teren
Creează alertă
Salvează căutarea ca să primești pe email ultimele anunțuri publicate
Case individuale cu 4+ camere de vânzare în Săcele, Județul Brașov
Cere detalii prin email
*
*
*
*
Detaliile tale de contact vor fi partajate cu The Seller & Partners
Preț total2.875.492 RON (564.342 €)
Costuri cu achiziția22.124 RON
Preț de achiziție2.853.368 RON
Costuri cu achiziția22.124 RON
Comision agenție Întreabă agenţia
Onorariu notarial17.844 RON
Taxă înscriere OCPI4.280 RON
Preț de achiziție2.853.368 RON
Preț locuință2.853.368 RON
TVA 0%Inclus în prețul cerut
Cost total458.254 RON (89.936 €)
Avans (15%)428.005 RON
Cost achitat în prima lună4.635 RON
Costuri cu achiziția25.614 RON
Cost achitat în prima lună4.635 RON
Comision analiză dosar
400 RON - 900 RON
Taxă evaluare imobil(până la)
900 RON
Rata lunară (variabilă)12.710 RON
Asigurare anuală imobil2.853 RON
Arhivă electronică102 RON
Poliță PAD130 RON
Asigurare de viață/lună Costul este variabil. În funcție de banca aleasă, procentul variază între 0.0259% și 0.035% din soldul creditului.
Costuri cu achiziția25.614 RON
Comision agenție Întreabă agenţia
Onorariu notarial17.844 RON
Taxă întabulare OCPI4.280 RON
Autentificare contract credit3.490 RON
Preț de achiziție2.853.368 RON
Preț locuință2.853.368 RON
TVA 0%Inclus în prețul cerut
Preț de achiziție2.853.368 RON
Preț locuință2.853.368 RON
TVA 0%
Inclus în prețul cerut
Avans minim2.247.027 RON
Credit pe 30 de ani606.341 RON
Cost achitat în prima lună
Taxa evaluare imobil(până la)
900 RON
Rata lunară (variabilă)4.260 RON
Depozit colateral12.780 RON
Comision de garantare FNGCIMM238 RON
Asigurare anuală imobil2.853 RON
Poliță PAD130 RON
Tarif arhivă electronică102 RON
Costuri adiționale2.993 RON + taxe notariale
Asigurare viață și complexă (opțională)Costul este variabil. În funcție de banca aleasă, procentul variază între 0.0259% și 0.035% din soldul creditului
Onorariu notarialconform tarif notarial
Taxă întabulare OCPI2.993 RON
i
Toate valorile de mai sus sunt estimative și nu reprezintă în mod obligatoriu costurile exacte pe care le veți primi de la companiile/instituțiile prin care veți încheia tranzacția.