5

Com 0% | Casă individuală - DN1 la 2 min | 4 dormitoare | 185 mp utili

348.500 €

Săftica, Județul Ilfov

Nr. cam.:
5
Sup. utilă:
185 mp
Sup. teren:
480 mp
Tip prop.:
Casă individuală
  • • Comision 0%
  • • Locație exactă

Descriere casă

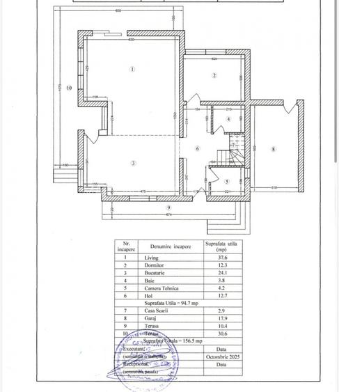
Descoperă confortul unei locuințe moderne, construită cu materiale de calitate superioară, situată într-o zonă liniștită și strategică din Săftica — aproape de București, DN1 și Aeroportul Otopeni. Detalii proprietate: - Teren: 480 mp - Amprentă la sol: 139 mp - Suprafață utilă totală: 292,10 mp - Casă individuală, cu regim de înălțime P+1 - 4 dormitoare spațioase - Living generos cu bucătărie open space - 4 terase ideale pentru relaxare - Loc auto acoperit - Curte amenajată, cu spațiu verde și alei pavate Avantaje: - Construcție solidă, realizată din materiale premium - Compartimentare inteligentă și luminoasă - Poziție excelentă, cu acces rapid către București și aeroport Ideală pentru o familie care caută liniște, confort și proximitate față de oraș Localizare: Săftica – zonă rezidențială în dezvoltare, cu străzi asfaltate și vecinătăți civilizate. Contact: pentru detalii suplimentare și programarea unei vizionări, te rog să mă contactezi.
Citește mai mult Citește mai puțin
Nemobilat Grădină Centrală proprie Încălzire prin pardoseală 3 Parcări Bine întreținut (Bună)

Detalii casă

ID anunț: XG3M1100F Copiat! 271729083 Copiat!
Actualizat în: 17 Martie 2026
Nr. bucătării: 1
Nr. băi: 3
Nr. terase: 4
Suprafață terase: 80.59 mp
An construcție: 2025 (Finalizată)
Regim înălțime: P+1E

Utilități

Pereți
Vopsea lavabilă Faianță
Podele
Parchet Gresie
Ferestre cu geam termopan
PVC
Utilități
Curent Apă Canalizare Gaze
Amenajare străzi
Asfaltate Mijloace de transport în comun
Comision
0%

Puncte de interes

Școală
school
scoala
Școli aprox. 617 m
school
Scoala nr. 1 - Balotesti
Școli aprox. 1970 m
kindergarten
Gradinisa cu program prelungit nr.1 - Balotesti
Gradinițe aprox. 1979 m
Recreere
supermarket
Geo Supermarket
Supermarket aprox. 956 m
park
Padurea Saftica
Parcuri aprox. 1274 m
restaurant
Tara Motilor
Restaurant aprox. 1305 m

Detalii despre preț și costuri

Costuri cu achiziția

Fără credit
14.873 RON
Credit ipotecar
17.466 RON
Noua casă
1.917 RON+ taxe notariale

i

Costuri adiționale mai puțin știute la achiziție: taxe notariale, comisioane etc.

Proprietăți recomandate

Detalii de contact

MAISON LUXE COLLECTION

Mihai Ulmet Broker Owner REALTOR

MAISON LUXE COLLECTION
PRO

Abonează-te la newsletter să fii primul care primește cele mai noi recomandări de proprietăți și sfaturi de la experți.

CONTACT

Creează alertă

Salvează căutarea ca să primești pe email ultimele anunțuri publicate

Case individuale cu 4+ camere de vânzare în Săftica, Județul Ilfov