Detalii RELEVANTE oferta
Proprietatea se vinde la ALB ( fara gresie,faianță,parchet și corpuri sanitare în bai)
- casa individuala in Sanandrei ,cu regim de inaltime Parter + Pod, finalizata in Mai 2026
- suprafata construita / utila de 125/100mp plus terasa de 15 mp.
- teren de 400 mp, cu front stradal de 15m.
- detalii constructive : ziduri exterioare si interioare din caramida porotherm, termoizolata exterior, acoperis de tigla.
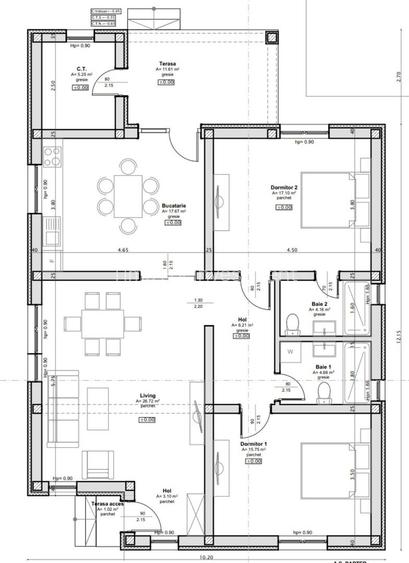
- compartimentare:
parter : hol acces, bucatarie, loc de luat masa, camera de zi, 2 dormitor, spatiu depozitare,doua bai, terasa
Pod: spatiu depozitare
- detalii AMENAJARE interioara : ferestre cu tamplarie PVC si geam Tripan, usa PVC la intrare, usi interioare noi, vopsea lavabila, incalzire Pardosea
- CENTRALA termica PROPRIE
Detalii suplimentare : teren imprejmuit, poarta acces auto si poarta acces pietonal,
Terasa este spatioasa,, acoperis din tigla,
- dispune de toate utilitatile (apa, gaz, canalizare, curent), drumul de acces fiind asfaltat cablu tv, internet fibra
Detalii pret :
Pretul solicitat de proprietar este de 155.000Eur, negociabil
Se accepta si varianta de achizitionare prin intermediul unui credit bancar.
Time for Investment a luat nastere din dorinta de a te ajuta sa-ti gasesti locuinta mult dorita si pentru ati fi alaturi pe tot parcursul de achizitie. Suntem o echipa tanara, dinamica dar si eficienta.
Experienta ne permite sa facem lucrurile putin altfel oferind servicii complete, si ne ajuta sa ne regasim in cele sase criterii care ne definesc munca
1.Promptitudine
Stim cat de important este timpul, suntem la dispozitia ta in cel mai scurt timp.
2.Atentia la detalii
-Suntem atenti la criteriile clientului si le comparam cu piata actuala
3.Eficienta
-Vizionam doar proprietatiile pliabile clientului
4.Baza de date Completa
-Informam constant clientul in legatura cu ofertele din baza de date proprie si actualizata
5.Profesionalism
- Oferim consultanta juridica, financiar bancara si va punem la dispozitie toate elementele tehnice
6.Suntem alaturi pana la final
-Va impunem la primarie cat si la utilitati (gaz,curent)
If youre planing to Invest,
Call us…
And we’ll do the rest !!!
Vecina in partea de N cu Dumbravita , partea de est cu Timisoara fiind una din cele mai vechi asezari din Banat, comuna se afla la 8 km de intrarea in oras , in partea de N-V fiind aliatul cetatii Timisoara inca de la inceput.
In ultimii ani ca fiecare localitate periurbana populatia este in ascensiune mai accentuat in ultimul an. Utilitatiile nu au intraziat sa apara iar comuna se mandreste cu toate utilitatiile mai putin canalizarea care este montata in o parte mare din sat urmand si racordarea.
Complex sportiv, restaurante, cabinete medicale , veterinare si accesul relativ rapid in oras sunt plusurile cu care se mandreste comuna momentan.
Citește mai mult
Citește mai puțin
Nemobilat
Grădină
Curte
Centrală proprie
Încălzire prin pardoseală
3 Parcări
Zonă rurală
Sediul central - Timișoara
Bulevardul Victor Babeș nr. 2, 300230, Timișoara, România
Tel: +40.374.40.44.98 / Fax: +40.256.401.179
Email: suport@imobiliare.ro
Luni - Vineri 08:00 - 20:00
Punct de lucru - București: Iride Business Park, Bld. Dimitrie
Pompeiu 9-9A, Clădirea B2B,
020335, Sector 2, București, România
CONTACT
Sediul central - Timișoara
Bulevardul Victor Babeș nr. 2, 300230, Timișoara, România
Tel: +40.374.40.44.98 / Fax: +40.256.401.179
Email: suport@imobiliare.ro
Luni - Vineri 08:00 - 20:00
Punct de lucru - București: Iride Business Park, Bld. Dimitrie
Pompeiu 9-9A, Clădirea B2B,
020335, Sector 2, București, România
Sună acum și cere detalii sau programează o vizionare.
Cere detalii prin email
*
*
*
*
Înainte să pleci...
Ești sigur că ai văzut și aceste proprietăți?
164.990 €
Județul Timiș, Sânandrei
4 camere
130 mp
350 mp teren
173.000 €
Județul Timiș, Sânandrei
5 camere
118 mp
460 mp teren
155.000 €
Județul Timiș, Sânandrei
4 camere
140 mp
340 mp teren
109.900 €
Județul Timiș, Sânandrei
3 camere
100 mp
540 mp teren
169.900 €
Județul Timiș, Sânandrei
5 camere
118 mp
460 mp teren
229.000 €
Județul Timiș, Sânandrei
4 camere
110 mp
668 mp teren
Creează alertă
Salvează căutarea ca să primești pe email ultimele anunțuri publicate
Case individuale cu 3 camere de vânzare în Sânandrei, Județul Timiș
Cere detalii prin email
*
*
*
*
Detaliile tale de contact vor fi partajate cu Time For Investment
Preț total797.745 RON (156.614 €)
Costuri cu achiziția8.222 RON
Preț de achiziție789.523 RON
Costuri cu achiziția8.222 RON
Comision agenție Întreabă agenţia
Onorariu notarial7.038 RON
Taxă înscriere OCPI1.184 RON
Preț de achiziție789.523 RON
Preț locuință789.523 RON
TVA 0%Inclus în prețul cerut
Cost total130.993 RON (25.716 €)
Avans (15%)118.429 RON
Cost achitat în prima lună2.572 RON
Costuri cu achiziția9.992 RON
Cost achitat în prima lună2.572 RON
Comision analiză dosar
400 RON - 900 RON
Taxă evaluare imobil(până la)
900 RON
Rata lunară (variabilă)3.517 RON
Asigurare anuală imobil790 RON
Arhivă electronică102 RON
Poliță PAD130 RON
Asigurare de viață/lună Costul este variabil. În funcție de banca aleasă, procentul variază între 0.0259% și 0.035% din soldul creditului.
Costuri cu achiziția9.992 RON
Comision agenție Întreabă agenţia
Onorariu notarial7.038 RON
Taxă întabulare OCPI1.184 RON
Autentificare contract credit1.770 RON
Preț de achiziție789.523 RON
Preț locuință789.523 RON
TVA 0%Inclus în prețul cerut
Preț de achiziție789.523 RON
Preț locuință789.523 RON
TVA 0%
Inclus în prețul cerut
Avans minim183.373 RON
Credit pe 30 de ani606.150 RON
Cost achitat în prima lună
Taxa evaluare imobil(până la)
900 RON
Rata lunară (variabilă)4.259 RON
Depozit colateral12.777 RON
Comision de garantare FNGCIMM66 RON
Asigurare anuală imobil790 RON
Poliță PAD130 RON
Tarif arhivă electronică102 RON
Costuri adiționale930 RON + taxe notariale
Asigurare viață și complexă (opțională)Costul este variabil. În funcție de banca aleasă, procentul variază între 0.0259% și 0.035% din soldul creditului
Onorariu notarialconform tarif notarial
Taxă întabulare OCPI930 RON
i
Toate valorile de mai sus sunt estimative și nu reprezintă în mod obligatoriu costurile exacte pe care le veți primi de la companiile/instituțiile prin care veți încheia tranzacția.