3

Direct Dezvoltator/Predare Mai 2025/Credit

185.000 €

Sânpetru, Județul Brașov

Nr. cam.:
4
Sup. utilă:
110 mp
Sup. teren:
405 mp
Tip prop.:
Individuală
  • • Locație exactă

Descriere casă

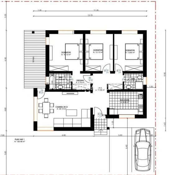
Vă propunem spre vânzare casa single pe parter, situata in Cartierul Regina Maria ( intr-e Sanpetru si Bod ) Casa se preda la cheie cu toate finisajele incluse . Termen de predare estimat luna Mai 2025. Posibilitate sa va personalizati locuinta dupa bunul plac , se ofera anumite bugete pentru fiecare etapa ( gresie,faianta ,sanitare etc.) Detalii generale: Suprafață teren: 405 mp. Suprafață construită: 126 mp. Suprafață utilă: 110 mp. Compartimentare: Parter: Antreu, bucătărie decomandata, living cu acces la terasa din lateralul casei, si o baie de servici 3 dormitoare, dintre care cel matrimonial cu baie proprie. Acces în pod, care poate fi folosit ca spațiu de depozitare. Dotări: -Incalzire in pardoseala. -Casa se preda la cheie, cu finisaje incluse în preț ( posibilitatea de personalizare a interiorului). Izolație polisteren de 10 cm. Curte amenajată cu gazon. Curte pavată. Utilități: curent, put forat, fosa septica biodegradabila. În imediata apropiere se află: parc, grădiniță, școală, cafenele, cu acces facil la transportul public în orice direcție a orașului. Contact: - Alexandru Bolotovici
Citește mai mult Citește mai puțin

Detalii casă

ID anunț: XF4U1107P Copiat! 256510337 Copiat!
Actualizat în: 27 Decembrie 2025
Suprafață construită: 126 mp
Suprafață desfășurată: 126 mp
Nr. bucătării: 1
Nr. băi: 2
Nr. terase: 1
Suprafață terase: 10 mp
Învelitoare acoperiș: Țiglă
An construcție: 2025 (În construcție)
Structură rezistență: Cărămidă
Regim înălțime: P

Utilități

Destinație
Rezidențial
Utilități
Curent Apă Canalizare CATV Gaze Telefon
Internet
Cablu
Amenajare străzi
Iluminat stradal Mijloace de transport în comun Asfaltate
Comision
standard

Disponibilitate proprietate:

Imediat

Detalii despre preț și costuri

Costuri cu achiziția

Fără credit
9.257 RON
Credit ipotecar
11.155 RON
Noua casă
1.083 RON+ taxe notariale

i

Costuri adiționale mai puțin știute la achiziție: taxe notariale, comisioane etc.

Proprietăți recomandate

Detalii de contact

MEGAPOLIS Brasov

Bolotovici Alexandru Manager

MEGAPOLIS Brasov
PRO

Abonează-te la newsletter să fii primul care primește cele mai noi recomandări de proprietăți și sfaturi de la experți.

CONTACT

Creează alertă

Salvează căutarea ca să primești pe email ultimele anunțuri publicate

Case individuale cu 4+ camere de vânzare în Sânpetru, Județul Brașov