1

Direct Dezvoltator | Stil Clasic | Utilități | Achitare Eșalonată

270.000 €

Sânpetru, Județul Brașov

Nr. cam.:
4
Sup. utilă:
135 mp
Sup. teren:
500 mp
Tip prop.:
Individuală
  • • Locație aproximativă

Descriere casă

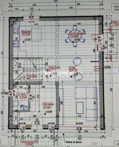
Casă individuală modernă – proiect premium în zona Rezervației Lempeș, Sânpetru Vă propunem spre vânzare o casă individuală deosebită, situată într-o zonă exclusivistă din Sânpetru, în apropierea Rezervației Naturale Lempeș. Proiectul are termen de predare în luna Martie 2026 și beneficiază de un design modern și finisaje premium. Prețul include TVA 21%. Există posibilitatea de achitare eșalonată, direct la dezvoltator. Detalii proprietate: - Teren: 500 mp - Suprafață construită: 171 mp - Suprafață utilă: 137 mp Compartimentare: - Parter: antreu, dressing, bucătărie, zonă de dining, living cu acces la terasa din spatele casei - Etaj: 3 dormitoare (unul cu dressing propriu și balcon), baie de serviciu, dressing suplimentar, acces la pod (spațiu de depozitare) Dotări și beneficii - Predare la cheie, cu finisaje incluse în preț (posibilitate de personalizare) - Încălzire în pardoseală atât la parter, cât și la etaj - Acoperiș din țiglă - Porți automatizate cu telecomandă - Balcon cu sticlă securizată - Utilități complete: gaz, curent, apă, canalizare, fibră optică, iluminat stradal Pentru mai multe detalii și programarea unei vizionări: – Alexandru Bolotovici
Citește mai mult Citește mai puțin
2 Parcări

Detalii casă

ID anunț: XF4U110AL Copiat! 271816437 Copiat!
Actualizat în: 04 Februarie 2026
Tip tranzacție: De vânzare prin agent
Suprafață construită: 100 mp
Suprafață desfășurată: 170 mp
Nr. bucătării: 1
Nr. băi: 2
Nr. balcoane / Terase / Logii: 1
Suprafață terase: 20 mp
Învelitoare acoperiș: Țiglă
An construcție: 2024 (În construcție)
Structură rezistență: Cărămidă
Regim înălțime: P+1E
Modalitate de plată: Cash sau Credit

Utilități

Destinație
Rezidențial
Utilități
Curent Apă Canalizare CATV Gaze Telefon
Internet
Cablu
Amenajare străzi
Iluminat stradal Mijloace de transport în comun Asfaltate

Disponibilitate proprietate:

Imediat

Puncte de interes

Recreere
sports-ground
Teren sportiv
Terenuri sport aprox. 1551 m
park
Pădure
Parcuri aprox. 1573 m
restaurant
Hotel Bielmann
Restaurant aprox. 1580 m
park
Parc
Parcuri aprox. 1621 m

Istoricul prețurilor

Acces la informații premium după autentificare
Login Gratuit

Detalii despre preț și costuri

Costuri cu achiziția

Fără credit
Credit ipotecar
Noua casă

i

Costuri adiționale mai puțin știute la achiziție: taxe notariale, comisioane etc.

Acces la informații premium după autentificare
Login Gratuit

Proprietăți similare

Casă individuală cu 5 camere în Sânpetru
249.000 €
Județul Brașov, Sânpetru
5 camere
210 mp
1.167 mp teren
Casă individuală cu 4 camere în Sânpetru
254.000 €
Județul Brașov, Sânpetru
4 camere
126 mp
525 mp teren
Casă individuală cu 6 camere în Sânpetru
278.000 €
Județul Brașov, Sânpetru
6 camere
240 mp
600 mp teren

Detalii de contact

MEGAPOLIS Brasov

Bolotovici Alexandru Manager

MEGAPOLIS Brasov
PRO

Abonează-te la newsletter să fii primul care primește cele mai noi recomandări de proprietăți și sfaturi de la experți.

CONTACT

Creează alertă

Salvează căutarea ca să primești pe email ultimele anunțuri publicate

Case individuale cu 4+ camere de vânzare în Sânpetru, Județul Brașov