Predare Imediata / Finisaje Incluse / Utilitati

215.000 €

Sânpetru, Județul Brașov

Nr. cam.:
4
Sup. utilă:
125 mp
Sup. teren:
465 mp
Tip prop.:
Individuală
  • • Locație exactă

Descriere casă

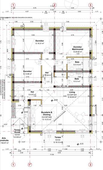
Vă propunem spre vânzare un complex format din 4 case individuale, situate într-o zonă foarte bună a comunei Sânpetru, la poalele Dealului Lempes. Termen estimat de predare: Aprilie 2026. Se percepe plata în 3 etape: 20% la semnarea antecontractului, 20% la începerea lucrărilor de finisaje interioare și exterioare, iar 60% la intabulare, inclusiv prin credit ipotecar. ( individual se pot discuta modalitati de plata personalizate ) Detalii generale: Suprafață teren: 465 mp. Suprafață construită: 162 mp. Suprafață utilă: 125 mp. Suprafata terasa 16 mp. Compartimentare: Parter: Antreu, baie de serviciu, bucătărie open space cu living, cu acces la terasa din fata casei. 3 dormitoare, dintre care cel matrimonial cu baie proprie. Dressing spatios. Acces în pod, care poate fi folosit ca spațiu de depozitare. Dotări: Casele se predau la cheie, cu finisaje incluse în preț (există posibilitatea de personalizare a interiorului). Încălzire prin pardoseală în toată casa. Acoperiș cu țiglă ceramică. Izolație polisteren de 10 cm.. Gard din șipcă metalică. Curte pavată. Utilități: Gaz, curent, apă, fibră optică, canalizare. Contact: - Alexandru Bolotovici
Citește mai mult Citește mai puțin

Detalii casă

ID anunț: XF4U110BB Copiat! 274299355 Copiat!
Actualizat în: 20 Ianuarie 2026
Suprafață construită: 140 mp
Suprafață desfășurată: 162 mp
Nr. bucătării: 1
Nr. băi: 2
Nr. terase: 1
Suprafață terase: 16 mp
Învelitoare acoperiș: Țiglă
An construcție: 2026 (Finalizată)
Structură rezistență: Cărămidă

Utilități

Utilități
Curent Apă Canalizare CATV Gaze Telefon
Internet
Cablu
Amenajare străzi
Iluminat stradal Mijloace de transport în comun Asfaltate

Disponibilitate proprietate:

Imediat

Puncte de interes

Recreere
sports-ground
Teren sportiv
Terenuri sport aprox. 1141 m
restaurant
Hotel Bielmann
Restaurant aprox. 1162 m
park
Pădure
Parcuri aprox. 1727 m
park
Loc de joaca
Parcuri aprox. 1805 m

Detalii despre preț și costuri

Costuri cu achiziția

Fără credit
10.281 RON
Credit ipotecar
12.306 RON
Noua casă
1.235 RON+ taxe notariale

i

Costuri adiționale mai puțin știute la achiziție: taxe notariale, comisioane etc.

Proprietăți recomandate

Detalii de contact

MEGAPOLIS Brasov

Bolotovici Alexandru Manager

MEGAPOLIS Brasov
PRO

Abonează-te la newsletter să fii primul care primește cele mai noi recomandări de proprietăți și sfaturi de la experți.

CONTACT

Creează alertă

Salvează căutarea ca să primești pe email ultimele anunțuri publicate

Case individuale cu 4+ camere de vânzare în Sânpetru, Județul Brașov