Laminorului I Casa de vanzare I Parter + Pod I 124 mp I Curte I Parcare

234.900 €

Bucureștii Noi, București

Nr. cam.:
4
Sup. utilă:
124 mp
Sup. teren:
300 mp
Tip prop.:
Individuală
  • • Comision 0%
  • • Locație aproximativă

Descriere casă

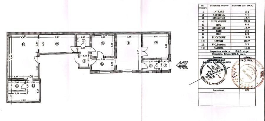
Va prezentam o casa individuala, Parter+Pod, spatioasa, cu 4 camere, situata intr-o zona linistita, aproape de statia de metrou Laminorului. Proprietatea are o suprafata utila de 124.5 mp si este amplasata pe un teren de 300 mp, cu o amprenta la sol de 150 mp. Construita in 1971 si renovata complet in 2009, casa beneficiaza de urmatoarele imbunatatiri: - Izolatie termica exterioara cu polistiren 10 cm - Instalatii sanitare si electrice inlocuite - Acoperis nou din tabla metalica si izolat corespunzator (vata minerala) - Ferestre termopan din PVC - Pereti tencuiti cu plasa (exterior plasa metalica) - Pod pentru depozitare - Centrala termica proprie pentru eficienta energetica - Aparate aer conditionat Casa este compartimentata astfel: doua dormitoare, doua bai, doua livinguri, bucatarie si camara. De asemenea, dispune de un mic beci util pentru depozitare si o debara suplimentara. Curtea este amenajata si include spatiu de relaxare, multiple locuri de parcare si vegetatie. Proprietatea este partial mobilata si este pregatita pentru noii proprietari. Pentru detalii nu ezitati sa ne contactati! COMISION 0
Citește mai mult Citește mai puțin
Mobilat Parțial mobilat Grădină Curte Aer condiționat Calorifere Centrală proprie Beci 2 Parcări Renovat Bine întreținut (Bună)

Detalii casă

ID anunț: XCCE01000 Copiat! 255709650 Copiat!
Actualizat în: 09 Martie 2026
Suprafață construită: 150 mp
Suprafață desfășurată: 124 mp
Nr. bucătării: 1
Nr. băi: 2
Front stradal: 10 m
Învelitoare acoperiș: Tabla
An construcție: 1970 (Finalizată)
Structură rezistență: Beton
Regim înălțime: P

Utilități

Destinație
Rezidențial Comercial Birouri De vacanță
Pereți
Faianță Vopsea lavabilă
Podele
Parchet Gresie
Ușă intrare
Metal PVC
Uși interior
PVC
Izolații termice
Exterior
Ferestre cu geam termopan
PVC
Contorizare
Apometre Contor căldură Contor gaz
Bucătărie
Mobilată
Alte spații utile
Spațiu depozitare WC Serviciu
Facilități imobil
Acoperiș Interfon
Utilități
Curent Apă Canalizare CATV Telefon Telefon internațional
Internet
Cablu Fibră optică
Servicii imobil
Supraveghere video
Amenajare străzi
Asfaltate Betonate Mijloace de transport în comun Iluminat stradal
Comision
0%

Certificat energetic:

Clasa energetică: B

Vecinătăți:

Metrou Laminorului, Straulesti, Parc Bazilescu, Baneasa, Damaroaia

Puncte de interes

Mijloace transport
metro-station
Laminorului (M4)
Stații metrou aprox. 81 m
bus-station
Laminorului
Stații autobuz aprox. 158 m
tram-station
Laromet
Stații tramvai aprox. 163 m
train-station
Gara - Halta Pajura - zisa si Triaj
Stații tren aprox. 1799 m
Școală
kindergarten
Gradinita de copii nr.47
Gradinițe aprox. 260 m
school
Gradinita Nr. 47
Școli aprox. 263 m
kindergarten
Gradinita Nr. 47
Gradinițe aprox. 270 m
school
Camin Scoala Generala Nr. 181
Școli aprox. 465 m
Recreere
cafe
Cafe Bar
Cafenea aprox. 79 m
supermarket
CRIS-TIM
Supermarket aprox. 220 m
sports-ground
Teren sportiv
Terenuri sport aprox. 586 m
park
Parc
Parcuri aprox. 593 m

Detalii despre preț și costuri

Costuri cu achiziția

Fără credit
10.964 RON
Credit ipotecar
13.073 RON
Noua casă
1.337 RON+ taxe notariale

i

Costuri adiționale mai puțin știute la achiziție: taxe notariale, comisioane etc.

Proprietăți recomandate

Detalii de contact

Fasthomes

Bogdan Paicu

Fasthomes

Abonează-te la newsletter să fii primul care primește cele mai noi recomandări de proprietăți și sfaturi de la experți.

CONTACT

Creează alertă

Salvează căutarea ca să primești pe email ultimele anunțuri publicate

Case individuale cu 4+ camere de vânzare în zona Bucureștii Noi, Sector 1