6

Vanzare Vila de exceptie - Domenii

2.590.000 €

Domenii, București

Nr. cam.:
13
Sup. utilă:
800 mp
Sup. teren:
470 mp
Tip prop.:
Individuală
  • • Locație exactă

Descriere casă

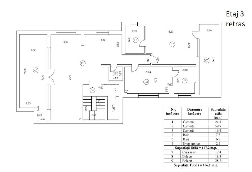
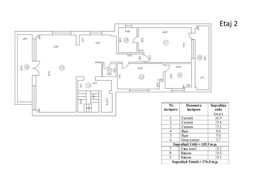
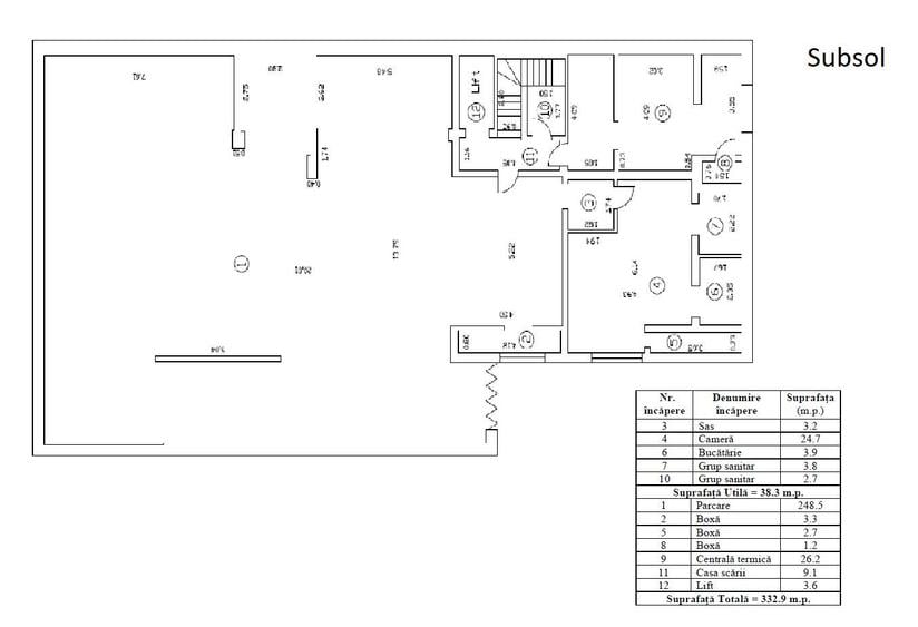
Ned Com Imobiliare va propune spre vanzare un imobil impresionant situat in una din cele mai prestigioase zona ale Capitalei, zona Domenii. Vila este construita in anul 2012, si compusa din subsol, parter, doua etaje si etajul 3 retras*. ,,cu Lift. Se desfasoara pe suprafata (construita) desfasurata de 1126mp si masoara aproximativ 135mp utili pe nivel, respectiv 175mp totali (inclusiv balcoane) pe nivel. Se poate vinde si fiecare etaj,separat. La subsol avem suprafata de 332mp, ce cuprinde parcarea dedicata de 250mp si alte spatii administrative. La parter avem un spatiu de aproape 60mp open space, o baie si alte doua camere, in mare parte destinate momentan spatiului de birou. La etajul 1, se pastreaza acelasi format, in schimb camera open space este inchisa si gasim aici si un balcon. Pe acest nive, mai gasim si un apartament de 2 camere cu terasa si baie. Nivelurile 1, 2 si 3 au fiecare cate 3 grupuri sanitare. La al doilea nivel gasim o zona mare open space 72mpu, cu terasa, precum si alte doua camere cu acces la o alta terasa si grupuri sanitare, iar nivelul al 3-lea ofera un apartament de 3 camere cu doua terase mai mare fata de celelalte niveluri (47mp in total). * un etaj retras reprezinta un etaj cu suprafetele exterioare - spre ex. balcoane sau terase - mai spatioase, si cu suprafetele interioare - camere etc - mai restranse, fata de etajele inferioare
Citește mai mult Citește mai puțin
Lux Curte Aer condiționat Calorifere Centrală proprie 12 Parcări 1 Garaj

Detalii casă

ID anunț: X5U411017 Copiat! 274033496 Copiat!
Actualizat în: 04 Aprilie 2026
Suprafață construită: 185 mp
Suprafață desfășurată: 1126 mp
Nr. bucătării: 1
Nr. băi: 9
Nr. balcoane / Terase / Logii: 6
Front stradal: 15.0 m
Învelitoare acoperiș: Țiglă
An construcție: 2012 (Finalizată)
Structură rezistență: Beton
Regim înălțime: S+P+2E

Utilități

Jaluzele
Verticale
Pereți
Faianță Tapet Vopsea lavabilă
Podele
Gresie Mochetă Parchet
Ușă intrare
Metal
Uși interior
Lemn Sticlă
Izolații termice
Exterior
Ferestre cu geam termopan
PVC
Contorizare
Apometre Contor căldură Contor gaz
Bucătărie
Mobilată Utilată
Electrocasnice
Aragaz Frigider Hotă Mașină de spălat TV
Diverse
Senzor de fum
Alte spații utile
Dressing WC Serviciu
Facilități imobil
Acoperiș Lift Spații agrement
Utilități
Curent Apă Canalizare CATV Gaze Telefon
Internet
Cablu Wireless
Servicii imobil
Supraveghere video
Amenajare străzi
Iluminat stradal Mijloace de transport în comun Asfaltate
Comision
standard

Vecinătăți:

Manastirea Casin, Parcul Herastrau, Aviatorilor

Disponibilitate proprietate:

Imediat

Puncte de interes

Mijloace transport
tram-station
Statie Tramvai 41 - Casin
Stații tramvai aprox. 313 m
bus-station
Statia Piata Domenii, linia 205, 300, 282, N118, 20, 24, 42, 45
Stații autobuz aprox. 356 m
metro-station
Metrorex. Stația Grivița (M4)(2000)
Stații metrou aprox. 1199 m
trolleybus-station
Statie Caraiman 65, 97, 86
Stații troleibuz aprox. 1241 m
Școală
school
Liceul Nicolae Iorga
Școli aprox. 280 m
school
Liceul Teoretic "Nicolae Iorga"
Școli aprox. 291 m
university
Universitatea De Stiinte Agronomice Si Medical Veterinare
Universități aprox. 389 m
kindergarten
Gradinita nr. 222
Gradinițe aprox. 492 m
Recreere
supermarket
Mega Image Domenii Non-Stop
Supermarket aprox. 313 m
sports-ground
FRR
Terenuri sport aprox. 401 m
park
Parc
Parcuri aprox. 449 m
public-square
Piata Montreal
Piețe publice aprox. 866 m

Proprietăți recomandate

Detalii de contact

Ned Com Imobiliare

Cristiana Nicorici Consilier Imobiliar

Ned Com Imobiliare
PRO

Abonează-te la newsletter să fii primul care primește cele mai noi recomandări de proprietăți și sfaturi de la experți.

CONTACT

Creează alertă

Salvează căutarea ca să primești pe email ultimele anunțuri publicate

Case individuale cu 4+ camere de vânzare în zona Domenii, Sector 1