52

Vila Istorica, inchiriata, Dorobanti Capitale

1.250.000 €

Dorobanți, București

Nr. cam.:
9
Sup. utilă:
277 mp
Sup. teren:
197 mp
Tip prop.:
Individuală
  • • Locație aproximativă

Descriere casă

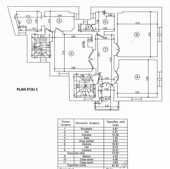
Va prezentam spre vanzare o vila situata in inima exclusivistului cartier Dorobanti Capitale din Bucuresti - o vila istorica ce dateaza din anii 1940 si care a fost meticulos renovata in anul 2005. Aceasta proprietate impresionanta, cu functiune mixta de birouri si rezidenta, este o adevarata reprezentanta a elegantei clasice si a rafinamentului modern. Cu o suprafata utila de 277 metri patrati, vila este dispusa pe patru niveluri: subsol, parter, etajul 1 si mansarda. Imobilul este compartimenat in 9 camere, 4 grupuri sanitare, 2 bucatarii, 2 scari de acces, 3 intrari, balcoane si numeroase spatii de depozitare la subsol. Datorita conceptului sau , etajele pot fi utilizate in mod separat, oferind oportunitati variate de utilizare, fie pentru a crea un spatiu de birouri si intalniri, fie pentru a crea o locuinta confortabila si relaxanta. Un avantaj considerabil il reprezinta posibilitatea de parcare pentru doua masini in curtea proprietatii, oferindu-va confort si accesibilitate intr-o zona unde spatiul de parcare este adesea o comoara rara. Cu o locatie privilegiata in cartierul Dorobanti Capitale, aveti acces la cele mai exclusiviste magazine, restaurante rafinate si facilitati de inalta calitate, intretinand un stil de viata pe masura. In momentul de fata imobilul este inchiriat si incaseaza o chirie lunara de 5000 euro/luna. Proprietar persoana fizica, nu se percepe TVA.
Citește mai mult Citește mai puțin
Aer condiționat Centrală proprie 2 Parcări 2 Parcări / Garaje / Parcări subterane

Detalii casă

ID anunț: X5CV11030 Copiat! 63099457 Copiat!
Actualizat în: 24 Martie 2026
Tip tranzacție: De vânzare prin agent
Nr. băi: 3
Nr. balcoane / Terase / Logii: 1
Front stradal: 15 m
An construcție: 1940 (Finalizată)
Structură rezistență: Beton
Regim înălțime: D+P+1E+M
Modalitate de plată: Cash sau Credit

Utilități

Pereți
Vopsea lavabilă
Podele
Parchet Marmură
Ușă intrare
Metal
Uși interior
Lemn
Ferestre cu geam termopan
Lemn
Contorizare
Apometre Contor gaz
Bucătărie
Mobilată Utilată
Diverse
Telecomandă poartă garaj
Alte spații utile
Spațiu depozitare Dressing WC Serviciu Anexe Dependințe
Facilități imobil
Videointerfon
Utilități
Curent Apă Canalizare Gaze CATV
Amenajare străzi
Asfaltate Betonate Iluminat stradal
Comision
standard

Vecinătăți:

Piata Victoriei, Piata Dorobanti

Disponibilitate proprietate:

imediat

Puncte de interes

Mijloace transport
bus-station
Sfintii Voievozi
Stații autobuz aprox. 78 m
tram-station
Piata Buzesti
Stații tramvai aprox. 366 m
metro-station
Metrorex. Piata Victoriei 1/2 (M1) , (M2)
Stații metrou aprox. 449 m
trolleybus-station
Statia Piata Romana linii : 79,86
Stații troleibuz aprox. 799 m
Școală
school
Liceul George Enescu
Școli aprox. 39 m
school
Liceul de muzică George Enescu
Școli aprox. 46 m
university
Universitatea Nationala de Arte Bucuresti (facultatea de arte decorative si design)
Universități aprox. 298 m
kindergarten
Gradinita Smiley
Gradinițe aprox. 777 m
Recreere
sports-ground
Teren sportiv
Terenuri sport aprox. 284 m
supermarket
Mega Image
Supermarket aprox. 757 m
mall
"METROPLIS CENTER"
Mall aprox. 954 m
hypermarket
Intrarea in caminele C si D din grozavesti
Hipermarket aprox. 1908 m

Proprietăți similare

Casă individuală cu 9 camere în Dorobanți
1.250.000 €
București, Dorobanți
9 camere
275 mp
197 mp teren
Casă individuală cu 15 camere în Dorobanți
1.275.000 €
București, Dorobanți
15 camere
640 mp
191 mp teren
Casă individuală cu 12 camere în Dorobanți
1.300.000 €
București, Dorobanți
12 camere
440 mp
196 mp teren

Detalii de contact

PLATINUM Real Estate & Arhitecture

Raluca Nicolae Broker Owner

PLATINUM Real Estate & Arhitecture
PRO

Abonează-te la newsletter să fii primul care primește cele mai noi recomandări de proprietăți și sfaturi de la experți.

CONTACT

Creează alertă

Salvează căutarea ca să primești pe email ultimele anunțuri publicate

Case individuale cu 4+ camere de vânzare în zona Dorobanți, Sector 1