9

VILA SPLENDIDA DE VANZARE // LIVING DE 75 MP // 100 MP TERASE

1.350.000 €

Floreasca, București

Nr. cam.:
8
Sup. utilă:
484,53 mp
Sup. teren:
179,08 mp
Tip prop.:
Individuală
  • • Locație aproximativă
  • • Vizionare prin apel video

Descriere casă

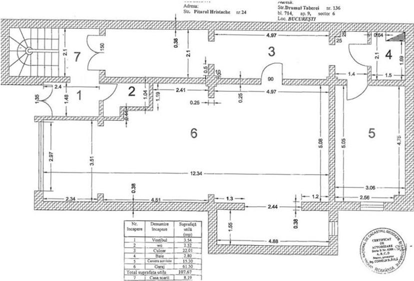
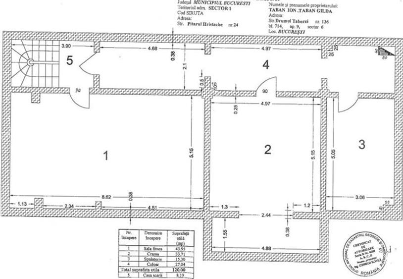
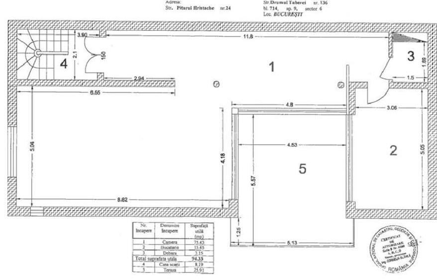
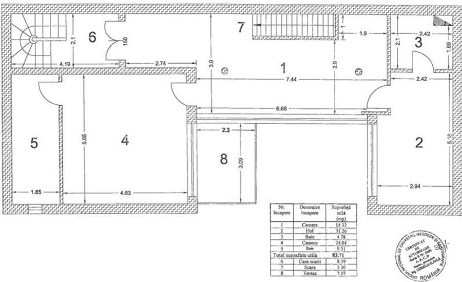
Neocasa va recomanda o proprietate foarte bine amplasata - vila de vanzare in zona Dorobanti, pe o strada linistita in apropiere de Piata Dorobanti. Aceasta vila are o suprafata utila de 484.53mp la care se adauga casa scarii, 2 balcoane si 2 terase. Regimul de inaltime este S+P+3, iar compartimentarea este realizata astfel: SUBSOL - 2 camere pentru depozitare, camera tehnica, spalatorie PARTER - garaj, 2 bai, hol cu spatii de depozitare, dormitor ETAJ 1 - living + dining de 75mp, bucatarie si camara, terasa de 26mp ETAJ 2 - 2 dormitoare fiecare cu baie proprie, hol spatios + balcon de 7mp ETAJ 3 - 1 dormitor, 1 baie, 1 bucatarie ce poate fi transformata in dormitor, zona de living . De la etajul 3 se poate accesa o terasa generoasa care ofera o panorama superba asupra imobilelor cu o arhitectura deosebita din Dorobanti. Garajul este situat la parter si ofera posibilitatea de a parca 3 masini. Datorita locatiei si arhitecturii deosebite, vila este potrivita atat pentru destinatie rezidentiala, cat si pentru reprezentanta diplomatica sau in scop comercial (firma de consultanta, clinica medicala)
Citește mai mult Citește mai puțin
Mobilat Aer condiționat Centrală proprie 3 Parcări

Detalii casă

ID anunț: X71S110FI Copiat! 257402460 Copiat!
Actualizat în: 19 Mai 2026
Tip tranzacție: De vânzare prin agent
Suprafață construită: 570 mp
Suprafață desfășurată: 570 mp
Nr. bucătării: 2
Nr. băi: 5
Nr. balcoane / Terase / Logii: 2
Nr. terase: 2
Suprafață terase: 80 mp
Nr. fronturi stradale: 1
Front stradal: 9.58 m
Învelitoare acoperiș: Tabla
An construcție: 2000 (Finalizată)
Structură rezistență: Altele
Etaj: Etaj 3 / 3
Regim înălțime: S+P+3E
Modalitate de plată: Cash sau Credit

Utilități

Destinație
Birouri
Jaluzele
Orizontale
Pereți
Faianță Vopsea lavabilă
Podele
Parchet Gresie Marmură
Ușă intrare
Metal
Uși interior
Lemn
Izolații termice
Exterior
Ferestre cu geam termopan
Aluminiu
Contorizare
Apometre Contor gaz
Bucătărie
Utilată Mobilată
Electrocasnice
Aragaz Hotă Frigider Cuptor microunde Hotă Mașină de spălat
Diverse
Șemineu Scară interioară Telecomandă poartă garaj
Alte spații utile
WC Serviciu
Utilități
Apă Curent Gaze Canalizare
Internet
Fibră optică
Amenajare străzi
Asfaltate

Vecinătăți:

Scoala/gradinita, Restaurant/pub, Piata, Benzinarie, Trafic Pietonal, Supermarket, Banca, Zona comerciala, Autobuz

Puncte de interes

Mijloace transport
bus-station
Statia Liceul Ion Luca Caragiale, linia 131, 182, 330, 331, 335, N113, 301
Stații autobuz aprox. 194 m
tram-station
Calea Dorobantilor
Stații tramvai aprox. 437 m
metro-station
Metrorex. Stația Ștefan cel Mare (M1)(1989)
Stații metrou aprox. 645 m
trolleybus-station
Statia Calea Dorobantilor; Liniile:79, 86,
Stații troleibuz aprox. 1049 m
Școală
school
Liceul Alexandru Vlahuta + Scoala 15 (en)
Școli aprox. 181 m
school
Scoala nr. 15
Școli aprox. 182 m
kindergarten
Gradinita cu program normal si prelungit Happy Kids
Gradinițe aprox. 200 m
university
Universitatea Atenaeum
Universități aprox. 718 m
Recreere
park
Parc
Parcuri aprox. 256 m
sports-ground
Teren sportiv
Terenuri sport aprox. 279 m
supermarket
Mega Image
Supermarket aprox. 331 m
mall
"METROPLIS CENTER"
Mall aprox. 512 m

Istoricul prețurilor

Acces la informații premium după autentificare
Login Gratuit

Proprietăți similare

Casă individuală cu 6 camere în Dorobanți
1.400.000 €
București, Dorobanți
6 camere
250 mp
200 mp teren
Casă individuală cu 6 camere în Iancu Nicolae
1.350.000 €
București, Iancu Nicolae
6 camere
321 mp
796 mp teren
Casă individuală cu 7 camere în Iancu Nicolae
1.249.400 €
București, Iancu Nicolae
7 camere
336 mp
1.200 mp teren

Detalii de contact

NEOCASA REAL ESTATE SOLUTIONS

Suport Clienti Consultant Imobiliar

NEOCASA REAL ESTATE SOLUTIONS
PRO

Abonează-te la newsletter să fii primul care primește cele mai noi recomandări de proprietăți și sfaturi de la experți.

CONTACT

Creează alertă

Salvează căutarea ca să primești pe email ultimele anunțuri publicate

Case individuale cu 4+ camere de vânzare în zona Floreasca, Sector 1